
Thông tin công trình
Chủ đầu tư: Chị Hải, Hải Phòng
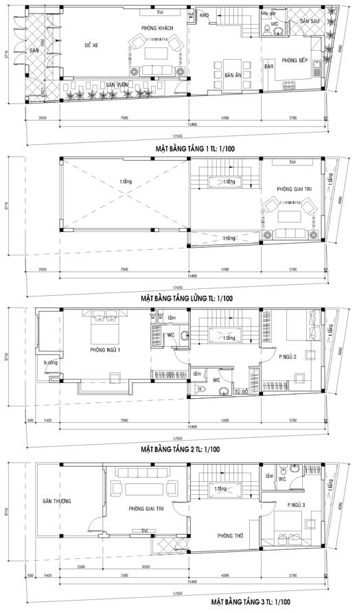
Quy mô xây dựng: nhà phố 6m với chiều dài 20m, xây dựng nhà phố 1 trệt 3 lầu.
Hạng mục thực hiện; Thiết kế kiến trúc
Tác giả: Team design Kiến Trúc Việt
Thiết kế nhà phố mặt tiền 6m dài 20m 4 tầng tại Hải Phòng

Xu hướng thiết kế nhà phố đơn giản, hiện đại rất được ưa chuộng vì nó giải quyết được nhiều vấn đề như chi phí, diện tích, tính thẩm mỹ, đáp ứng nhiều công năng sử dụng khác nhau. Các tông màu trung tính, nhẹ nhàng như trắng, vàng kem, xám, màu pastel được sử dụng nhiều cho phần nền của ngôi nhà.

Thiết kế nhà phố mặt tiền 6m dài 20m 4 tầng tại Hải Phòng mái ngói hiện đại – Nội thất phòng ngủ hiện đại trẻ trung tầng 1
Các gam màu đậm, gây ấn tượng mạnh như màu đỏ, da cam, xanh lam,… dành cho các chi tiết trang trí làm nổi bật không gian sống. Một ngôi nhà phố đẹp, thu hút được sự chú ý của mọi người đòi hỏi có sự gắn kết chặt chẽ tới từng chi tiết giữa nội và ngoại thất. Một yếu tố mang tính quyết định tới vẻ đẹp của ngôi nhà chính là màu sơn và việc phối màu với tường và trần nhà sao cho thật hài hoà. Chủ nhà cũng cần quan tâm đến việc lựa chọn nội thất cho cho hài hoà với kiến trúc tổng thể.

Thiết kế nhà phố mặt tiền 6m dài 20m 4 tầng mái ngói hiện đại – Nội thất phòng ngủ hiện đại trẻ trung tầng 2




Thiết kế nhà phố mặt tiền 6m dài 20m 4 tầng mái ngói hiện đại – Nội thất phòng ngủ cổ điển snag trọng tầng 3

Thiết kế nhà phố mặt tiền 6m dài 20m 4 tầng Hải Phòng – Nội thất phòng ngủ cổ điển snag trọng tầng 3

Thiết kế nhà phố mặt tiền 6m dài 20m 4 tầng tại Hải Phòng – Nội thất phòng ngủ cổ điển snag trọng tầng 3
Team design Kiến Trúc Việt.
…………………………………………………………………………………………………….
CÔNG TY TNHH MTV XD & TTNT KIẾN TRÚC VIỆT
Thiết kế Nhà – Thầu Xây dựng – Thi công nội thất – Trang trí thiết kế văn phòng
Hotline: 0918 243 364 – 0914 243 364
Email: cuongarchi@yahoo.com.vn
www.kientrucviet.com.vn
XEM THÊM CÁC DỰ ÁN NHÀ ỐNG RỘNG 6M CỦA KIẾN TRÚC VIỆT
Nhà 6m mặt tiền
Mẫu nhà phố 6mx20m 4 tầng 120m2
Mẫu nhà phố 6m 3 tầng xây dựng 1,2 tỷ Thanh Hóa
Nhà phố mặt tiền 6m 3 tầng tại Quy Nhơn sang trọng
Nhà mặt phố 6m Bình Dương
Mẫu nhà phố 6m 4 tầng Củ Chi
Thiết kế nhà phố 6m*20m Hóc Môn
Thiết kế kiến trúc nhà phố 6m*17m
Thiết kế nhà phố 6m 3 tầng quận 12
Nhà phố cao tầng 6×18
Thiết kế nhà phố 6m mái ngói 1 trệt 2 lầu
Kiến trúc nhà phố 6mx20m 3 tầng
Mẫu thiết kế nhà 6mx20m
Mẫu nhà 6mx20m 1 trệt 1 lầu
nhà phố 2 mặt tiền ngang 6m dài 16m
Mặt tiền nhà ngang 6m 3 tầng mái ngói
Biệt thự phố 6mx12m
Thiết kế nhà 6m với 1 trệt 4 tầng mái ngói
Share:
















