
Thiết kế nhà phố 6m*20m Hóc Môn với không gian kiến trúc rộng lớn với trần thạch cao và hành lang kéo dài luôn khiến chúng ta choáng ngợp. kiến trúc sơ bộ cho nhà 4 tầng – nhà 1 trệt 3 tầng.
NỘI DUNG TÓM TẮT
Thiết kế nhà phố 6m*20m Hóc Môn 4 tầng
Bản vẽ
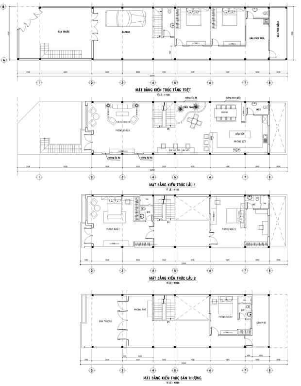
Ngôi nhà được hình thành duyên dáng ngay khu đô thị mới huyện Hóc Môn, nhà phố với Diện tích nhà 6m*20m, được xây dựng 1 trệt 3 lầu với 3 phòng ngủ, kiến trúc rất phù hợp với gia đình nhỏ. Khối kiến trúc mái nhà rất được ưa chuộng trong năm 2015 và đến ngày hôm nay. Kiến trúc bố trí tầng trệt là 1 gara xe và 2 phòng ngủ phụ. tất cả không gian sinh hoạt chính tại tầng lầu 1 và lầu 2.

Không gian học tập làm việc tại tầng trệt
Tầng trệt được gia chủ yêu cầu Kiến Trúc Sư bố trí góc học tập và làm việc. Không gian giếng trời được trang trí vườn khô trong nhà sinh động và ấn tượng.

Phòng khách – bếp

Trong ý niệm của người Việt, bếp luôn là không gian được coi trọng của ngôi nhà. Xuất hiện trong rất nhiều các câu chuyện dân gian, các ông Táo, bà Táo luôn được nhắc đến chứng tỏ mức độ quan trọng của gian bếp trong tổng thể không gian ngôi nhà. Với ngôi nhà Việt hiện nay, vai trò của gian bếp càng trở nên quan trọng hơn. Không chỉ là nơi để các bà nội trợ bày tỏ sự khéo léo, đảm đang, bếp còn là chốn thể hiện nét văn hóa ẩm thực của từng gia đình, cũng như mức độ tiện nghi của một ngôi nhà, “lối sống” và “đẳng cấp” của gia chủ.

Phòng ngủ

Xu hướng màu sắc mạnh mẽ kết hợp với kiến trúc nội thất hướng về thiên nhiên luôn mang đến cho chúng ta một không gian sống thật thoải mái và dễ chịu cho ngôi nhà đẹp 6m – nhà phố 4 tầng

nhưng điều này không phải lúc nào cũng cần thiết. Nếu phòng ngủ nhỏ bé, bạn hoàn toàn có thể bỏ qua bàn/tủ đầu giường. Thay vào đó, bố trí tủ quần áo bên cạnh giường ngủ. Kết quả tạo nên cách bố trí sang trọng, không hề lộn xộn.

Tích hợp đồng thời ngăn kéo ẩn và kệ mở, món nội thất này cung cấp rất nhiều không gian để trưng bày cũng như che giấu đồ đạc của bạn. Sự tương phản giữa các chi tiết hiện đại với giấy dán tường nữ tính thật sự đáng yêu.

Nhà phố 6mx20m 4 tầng Hóc Môn – Phối cảnh mặt tiền với cầu thang bên ngoài cho lối lên phòng làm việc và phòng sinh hoạt chung
Team design Kiến Trúc Việt.
…………………………………………………………………………………………………….
CÔNG TY TNHH MTV XD & TTNT KIẾN TRÚC VIỆT
Thiết kế Nhà – Thầu Xây dựng – Thi công nội thất – Trang trí thiết kế văn phòng
Hotline: 0918 243 364 – 0914 243 364
Email: cuongarchi@yahoo.com.vn
www.kientrucviet.com.vn
XEM THÊM CÁC DỰ ÁN NHÀ PHỐ 6M CỦA KIẾN TRÚC VIỆT
Mẫu nhà mặt tiền 6m
Mẫu nhà phố 6mx20m 4 tầng Thủ Đức
Mẫu nhà phố 6m 3 tầng xây dựng 1,2 tỷ Thanh Hóa
Nhà phố mặt tiền 6m 3 tầng sang trọng
Nhà mặt phố 6m Bình Dương
Mẫu nhà phố 6m 4 tầng
Nhà phố mặt tiền 6m mái ngói 4 tầng
Thiết kế kiến trúc nhà phố 6m*17m
Thiết kế nhà phố 6m 3 tầng quận 12
Nhà phố cao tầng 6×18
Thiết kế nhà phố 6m mái ngói 1 trệt 2 lầu
Kiến trúc nhà phố 6mx20m 3 tầng
Mẫu thiết kế nhà 6mx20m
Mẫu nhà 6mx20m 1 trệt 1 lầu
nhà phố 2 mặt tiền ngang 6m dài 16m
Mặt tiền nhà ngang 6m 3 tầng mái ngói
Biệt thự phố 6mx12m
Thiết kế nhà 6m với 1 trệt 4 tầng mái ngói
Share:
















