
Thiết kế kiến trúc nhà phố 6m*17m 4 tầng
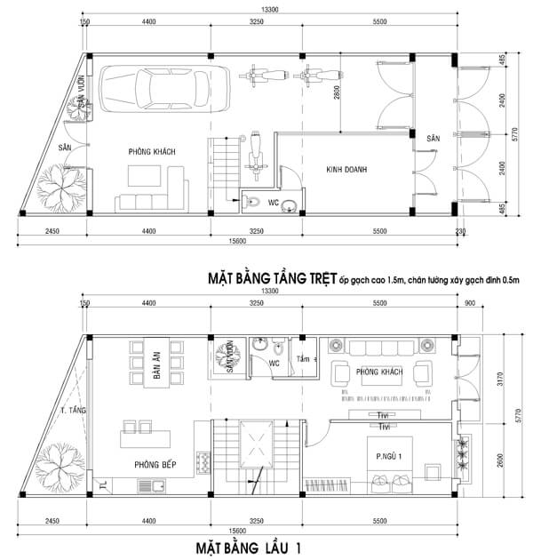
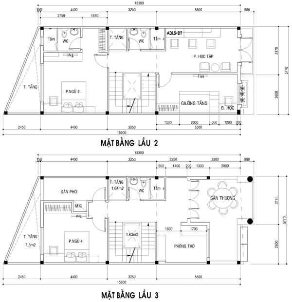
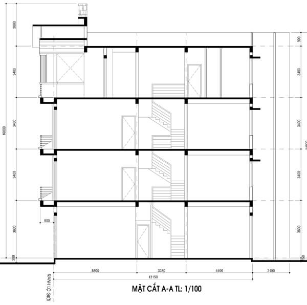
Bản vẽ



Phòng khách
Phòng khách là nơi thường được dùng cho nhiều mục đích, từ việc gặp gỡ sum họp gia đình đến việc cả nhà ngồi lại bên nhau cùng giải trí, xem ti vi hoặc quay quần trò chuyện sau bữa cơm gia đình.

Nếu có thể, nên bố trí các loại đèn tuýp được giấu trên trần hắt xuống hoặc treo đèn ở tường để hắt ngược lên trần nhằm tránh các nguồn sáng bị phản chiếu với gương hoặc màn hình ti vi gây chói mắt.
Khi bố trí sofa hoặc tủ kệ… trong phòng khách, đừng quên khoảng cách từ chổ ngôi xem phải cách TV từ 3 – 5 lần tương ứng với diện tích màn hình TV để tránh những ảnh hưởng không tốt đến thị lực, đặc biệt là bệnh khúc xạ mắt ở các thành viên nhí của gia đình.


Phòng ngủ
Phòng ngủ là nơi bạn phải trải qua ít nhất 7 – 8 tiếng mỗi ngày để nghỉ ngơi., Lấy lại sức khỏe sau một ngày làm việc vất vả. Vì thế việc bố trí nội thất trong căn phòng nhỏ này sao cho gia chủ có được một giấc ngủ êm ái là một điều rất quan trọng và cần thiết! Nên để những vật dụng liên quan đến công việc như : Laptop, điện thoại, Ipad… cách xa giường ngủ vì từ trường ở đây sẽ rất gây hại cho sức khỏe..


Không nên chọn giường tủ có quá nhiều tủ kệ vì nó sẽ dễ bám bụi và gây ảnh hưởng đến đường hô hấp cảu chúng ta.. Thay vào đó 1 tủ đầu giường cất giữ đồ nữ trang, mỹ phẫm… sẽ là một lựa chọn lý tưởng.

Trong xu hướng nội thất gia đình hiện đại, yếu tố chăm sóc sức khỏe và tinh thần được đề cao trong không gian phòng tắm – nơi mà ta có thể thả lỏng cơ thể cảm xúc, đồng thơi trải nghiệm cảm giác thư giãn sảng khoái. Không phải bất kỳ một ngôi nhà hay căn hộ nào được sở hữu một không gian phòng tắm rộng rãi tiện nghi, nhưng ai cũng có thể nghĩ đến việc tận hưởng cảm giác như Spa ngay tại phòng tắm của nhà mình bằng những “bí quyết” đơn giản.

Nếu không có điều kiện để trang bị nội thất phòng tắm cao cấp, bạn có thể chọn tinh dầu thơm hoặc sữa tắm…Nhưng có một thứ bạn tuyệt đối không nên “ tiết kiệm” là việc trang bị một máy tắm nước nóng Spa. Nghe có vẻ lạ nhưng một chiếc máy tắm nước nóng thong thường chỉ có thể giúp bạn thay đổi nhiệt độ của nước cho phù hợp với thời tiết hay đơn thuần, nó chỉ có thể giúp bạn cảm thấy dễ chịu và tiết kiệm thời gian nấu nước để tắm.


Team design Kiến Trúc Việt.
…………………………………………………………………………………………………….
CÔNG TY TNHH MTV XD & TTNT KIẾN TRÚC VIỆT
Thiết kế Nhà – Thầu Xây dựng – Thi công nội thất – Trang trí thiết kế văn phòng
Hotline: 0918 243 364 – 0914 243 364
Email: cuongarchi@yahoo.com.vn
www.kientrucviet.com.vn
XEM THÊM CÁC DỰ ÁN NHÀ PHỐ 6M CỦA KIẾN TRÚC VIỆT
Thiết kế nhà mặt tiền 6m
Mẫu nhà phố 6mx20m 4 tầng 120m2 Thủ Đức
Mẫu nhà phố 6m 3 tầng 1,2 tỷ Thanh Hóa
Nhà phố mặt tiền 6m 3 tầng Quy Nhơn sang trọng
Nhà mặt phố 6mx20m 4 tầng Bình Dương
Mẫu nhà phố rộng 6m dài 20m 4 tầng Củ Chi
Nhà phố mặt tiền 6m mái ngói 4 tầng Hải Phòng
Thiết kế nhà phố 6m*20m Hóc Môn
Thiết kế nhà phố 6m 3 tầng quận 12
Nhà phố cao tầng 6×18
Thiết kế nhà phố 6m mái ngói 1 trệt 2 lầu
Kiến trúc nhà phố 6mx20m 3 tầng
Mẫu thiết kế nhà 6mx20m
Mẫu nhà 6mx20m 1 trệt 1 lầu
nhà phố 2 mặt tiền ngang 6m dài 16m
Mặt tiền nhà ngang 6m 3 tầng mái ngói
Biệt thự phố 6mx12m
Thiết kế nhà 6m với 1 trệt 4 tầng mái ngói
Share:
















