
Mỗi một công thiết kế chúng tôi rồi chú trọng đến công trình hướng đến người sử dụng. Với thiết kế nhà 5×20 4 tầng có tầng hầm và thang máy này được chú trọng về không gian khoản xanh và nhiều không gian giếng trời. Phần kiến trúc và diện mạo bên ngoài đều đáp ứng được mong muốn của người chồng và Vợ gia chủ của ngôi nhà này. Còn về nội thất và mọi thứ bên trong thỏa mãn những tiêu chí công năng mà các thành viên trong gia đình đề ra.
NỘI DUNG TÓM TẮT
Thông tin công trình
Chủ đầu tư: Anh Thái
Địa chỉ công trình: Quận 2, HCM
Hạng mục công trình: Thiết kế kiến trúc nhà phố mặt tiền 5m, thiết kế nội thất và giám sát tác giả
Diện tích xây dựng: Thiết kế nhà 5×20 4 tầng, 1 trệt 3 lầu có tầng hầm và thang máy
Thiết kế nhà 5×20 có tầng hầm và thang máy Quận 2
Thiết kế nhà 5×20 4 tầng có tầng hầm và thang máy
Hình thức kiến trúc nhà 5×20 4 tầng sử dụng những đường nét và hình khối nhẹ nhàng thanh tao với tông màu trắng, các ô cửa là bài toán về tăng sự đối lưu khí cho các không gian bên trong, đồng thời có những góc nhìn đẹp từ bên trong cũng như tạo thêm điểm cộng cho công trình từ vị trí phía láng giềng nhìn sang.

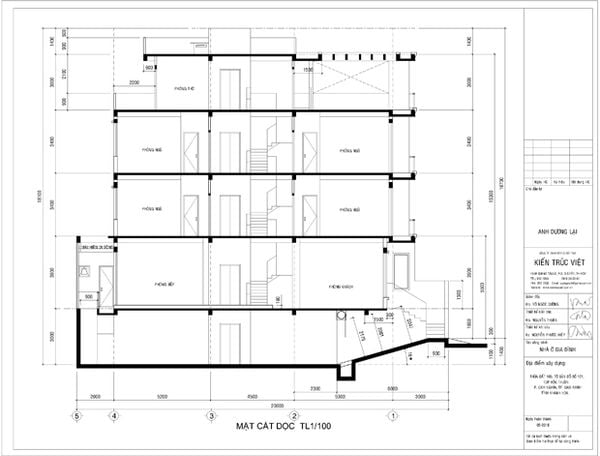
Mặt cắt dọc bố trí không gian Thiết kế nhà 5×20 có tầng hầm và thang máy.
Phòng khách

Nội thất không gian tầng trệt phòng sinh hoạt và không gia bếp liên thông phòng ăn – Thiết kế nhà 5×20 có tầng hầm và thang máy, Quận 2.

Phong cách nổi thất sang trọng cao cấp với tính năng không gian nội thất đặc biệt chú trọng đến tính năng tiện nghi, với các chi tiết được xử lý để đem lại tiện ích tối đa cho người sử dụng.
Phòng bếp

Không gian nội phòng bếp và phòng ăn – Thiết kế nhà 5×20 có tầng hầm và thang máy, Quận 2

Góc cận canh view nhìn cho lối thang máy cho gia đình.

Do nhu cầu chủ nhà có sử dụng thang máy nên phần bao che của toàn bộ trục thang được ốp vật liệu gạch trắng cao cấp nhầm giảm sự nặng nề của không gian mang lại sự dễ chịu cho người nhìn khi đứng ở không gian bếp.
Phòng ngủ

Không gian nội thất phòng ngủ đặc biệt chú trọng đến tính tiện nghi, với các chi tiết trang trí được xử lý đem lại tiện ích tối đa cho người dùng.

View nội thất không gian phòng ngủ 2 – Thiết kế nhà 5×20 có tầng hầm và thang máy, Quận 2

Góc kệ trang trí ti vi kết hợp không gian làm việc nho bên trong phòng ngủ.

Nội thất không gian phòng ngủ 2 tại tầng lầu 2.

Thiết kế nhà 5×20 có tầng hầm và thang máy, Quận 2

Không gian phòng ngủ với đầy đủ tính năng và đầy đủ tiện nghi.

Nội thất phòng ngủ master – Thiết kế nhà 5×20 có tầng hầm và thang máy, Quận 2

Nội thất phòng ngủ master – Thiết kế nhà 5×20 có tầng hầm và thang máy.
Các không gian bên trong ngôi nhà 5×20 có tầng hầm và thang máy rất thuận lợi về công năng, nhằm đáp ứng một cách tốt nhất những nhu cầu của chủ nhà như: Không gian bếp rộng và khu vực ăn rộng, phòng khách với khoảng trần cao, nội thất cao cấp, các không gian phòng ngủ rộng, phòng giải trí đa năng… Với kinh nghiệm của người thiết kế thì điều ấy không phải là một thách thức và hoàn toàn nằm trong tầm kiểm soát.

Mọi chi tiết tư vấn vui lòng liên hệ:
CÔNG TY TNHH MTV XD & TTNT KIẾN TRÚC VIỆT
Thiết kế Nhà – Thầu Xây dựng – Thi công nội thất – Trang trí thiết kế văn phòng
VPGD: P602, Lô A1, Sunny Plaza, 110 a Phạm Văn Đồng, p3, GV, HCM
Xưởng thi công nội thất; 438/6 Nguyễn Văn Quá, Q12, HCM
Hotline: 0918 243 364 – 0914 243 364
Email: cuongarchi@yahoo.com.vn
www.kientrucviet.com.vn
XEM THÊM CÁC DỰ ÁN NHÀ PHỐ 5M CỦA KIẾN TRÚC VIỆT
Thiết kế nhà phố 5m ngang và dài 20m 3 tầng tại Dĩ An Bình Dương
Nhà mặt phố ngang 5m dài 20m 4 tầng với 1 trệt 2 lầu và 1 sân thượng
Nhà mặt tiền 5m dài 14m 1 trệt 3 lầu Quận 8
Nhà phố mặt tiền 5m 3 tầng Bình Dương
Nhà phố lệch tầng mặt tiền 5m xây dựng 3 tầng
Nhà phố 5mx16m 2 mặt tiền 1 trệt 3 lầu Phan Thiết
Nhà phố mặt tiền 5m 4 tầng Quận 12
Mẫu nhà phố 5m 4 tầng quận 3
Nhà đẹp mặt tiền 5m chiều dài 20m 1 trệt 3 lầu Hải Phòng
Thiết kế nhà phố 5m 1 lửng 4 tầng
Thiết kế nhà 5m 3 tầng Bình Thạnh
Thiết kế nhà 5mx16m 4 tầng quận 3
Nhà phố 5mx16m 3 tầng mái ngói
Thiết kế nhà phố 5mx16m 4 tầng kiến trúc bán cổ điển
Mặt bằng kiến trúc nhà phố 5mx12m 60m2 Quận 2
Thiết kế nhà phố hiện đại 5×20 4 tầng 100m2 quận Bình Tân
Thiết kế và xin phép xây dựng nhà phố 5mx20m
Mẫu nhà phố 5mx15m xây dựng 4 tầng Quận 3
Thiết kế nhà 5m 3 lầu 4 phòng ngủ 1 phòng khách 1 phòng bếp và 1 phòng thờ
Bản vẽ thiết kế nhà rộng 5m dài 16m 1 trệt 3 tầng
Thiết kế nhà phố 5mx15m 1 trệt 1 lầu tại Biên Hòa
Thiết kế nhà phố 5mx18m 4 tầng Bình Dương
Thiết kế nhà phố hiện đại 5mx18m 4 tầng tại quận Tân Bình
Thiết kế nhà 5×20 4 tầng Đắk Lắk
Share:
















