NỘI DUNG TÓM TẮT
- Tổng quan dự án shophouse nhà phố liền kề 5×20
- Mậu nhà Khu dân cư An Sương, Quận 12 với 46 dãy nhà phố liền kề 5 tầng 5×20
- Mặt bằng thiết kế kiến trúc dẫy nhà phố liền kề 5 tầng 5×20 phong cách Tân Cổ Điển
- Mặt cắt nhà ống 5 tầng 5×20 thiết kế nhà liền kề tại khu dân cư ngay chợ An Sương, Quận 12.
- Tổng quan mặt bằng dự án chuẩnbị mở bán của dự án nhà phố liền kề shophouse 5×20 thiết kế và xây dựng 5 tầng với chủ đầu tư dự án này chính là dự án trọng điểm và cũng là dự án lớn nhất tại Quận 12 hiện nay. Với quy mô 46 căn nhà phố shophouse liền kề được quy hoạch ngay khu dân cư và khu chợ mới An Sương. Định vị khách hàng cao cấp nên sự đầu tư về hình ảnh cho đến chất lượng công trình sẽ được chăm chút từng hạng mục.
Tổng quan dự án shophouse nhà phố liền kề 5×20
Tổng quan mặt bằng dự án chuẩn bị mở bán của dự án nhà phố liền kề shophouse 5×20 thiết kế và xây dựng 5 tầng với chủ đầu tư dự án này chính là dự án trọng điểm và cũng là dự án lớn nhất tại Quận 12 hiện nay. Với quy mô 46 căn nhà phố shophouse liền kề được quy hoạch ngay khu dân cư và khu chợ mới An Sương.

Ngoài các công trình kiến thiết kế nhà phố riêng rẻ, thiết kế nhà phố 5 tầng với ngang 5m dài 20 trong bộ dự án sản phẩm đã hoàn thành cho khách hàng hơn 100 mẫu. Thử thách mới cho team kiến trúc sư của chúng tôi lần này chính là thiết kế kiến trúc nhà 5 tầng với dự án nhà liền kê trong chuỗi dự án đầu tư xây dựng bán của một doanh nhân thành đạt trẻ. Khác với các công trình nhà ở đơn lẻ, kiến trúc nhà liền kề đòi hỏi yếu tố “ Nhìn mà không nhàm chán” vì đâu đó khái niệm giớng nhau là yếu tốt bắt buộc cho dự án nhà liền kề cho trong dự án xin phép xây dựng và mở bán của chủ đầu tư.
Mậu nhà Khu dân cư An Sương, Quận 12 với 46 dãy nhà phố liền kề 5 tầng 5×20

Dãy nhà phố liền kề 5 tầng 5×20, khu dân cư ngay chợ An Sương, Quận 12.

Tổng quan dự án nhà liền kế 5 tầng mái ngói Tân cổ điện trắng xanh mảng ngói

Thiết kế kiến trúc nhà phố liền kề 5 tầng với tầng 2 tầng kinh doanh và 3 tầng là không gian để ở. Mặt tiền kiến trúc phải đi xu hướng chung nhiều người thích thì việc ra giỏ hàng để bán mới thành công. Nắm bắt được xu hướng thị trường, đối tượng khách hàng mà chủ đầu tư hướng đến với mức chi phí cho mỗi căn dao động từ 4,5 tỷ đến 5,5 tỷ Kiến Trúc Sư đã có nhiều giải pháp về hướng ngoại thất làm sao thu hút và đánh và đúng nhu cầu của khách hàng tiềm năng sao cho chị phí họ bỏ ra là sự hợp lý và không gian bên trong hợp lý từng chi tiết nhỏ. Để làm được điều này đòi hỏi sự trải nghiệm và kinh nghiệm thực tế của Kiến Trúc Sư, từ việc bố trí từng không gian chính, không gian phụ, sân trước hay sân sau cũng sẽ được cân đối từ quy định quy hoạch, quy định cao độ tầng, quy định lộ giới cho phép để hoàn chỉnh từ bản vẽ sơ phát mặt bằng kiến trúc cho đến hoàn thiện mặt tiền cho dự án nhà liền kế 5 tầng này.
https://kientrucviet.com.vn/blogs/tu-van/mau-nha-pho-5m-x-20m-xay-dung-3-lau

Nhà phố liền kề 5×20 với thiết kế xây dựng 5 tầng sang trọng đẳng cấp

Thiết kế nhà liền kế 5 tầng với diện tích sàn 100m2 ngang 5m và dài 20m được lấy ý tưởng từ sự kết hợp hoàn hảo giữa việc chắt lọc tinh hoa từ thực tế các khu đô thị, các khu phố trên thành phố đã thanh công để chắc lọc đường nét chung và chúng tôi đã đưa ra nhiều giải pháp từ kiến trúc hiện đại, kiến trúc cổ điển cho đến kiến trúc đa màu sắc. Và sau đây là bảng mặt bằng cũng như bản phối màu ngoại thất cho nhà phố liền kế 5 tầng được chủ đầu tư thích từ team ý tưởng của Kiến Trúc Việt
Mặt bằng thiết kế kiến trúc dẫy nhà phố liền kề 5 tầng 5×20 phong cách Tân Cổ Điển


Mặt bằng trệt nhà ống 5×20 với không gian chính làkinh doanh shop/ Văn phòng

Mặt bằng tầng lửng cho nhà ống 5 tầng 5×20 với thiết kế không gian vẫn là kinh doanh/ shop/ văn phòng.

Mặt bằng tầng lầu 1, lâu2 được bố trí phòng riêng chó thể làm phòng sinh hoạt riêng hoặc không gian riêng tùy vào từng nhu cầu chức năng củagia chủ.

Mặt bằng tầng thượng tầng 5 cho nhà ống 5×20 được bố trí phòng bếp, phòng sinh hoạt, sân phơi và sân vườn ngoàitrời ở tầng thượng. Nếu doanh nghiệp thuê hết ngăn căn thì nơi đây chính là không gian ăn trưa, nghỉ ngơi thư giản tám chuyện cho nhân viên saunhững giờ làm căng thẳng. Sự tính toán kỹ từngchi tiết sẽ hạn chế sự bất cập trong quá trình cho thuê hay sử dụng của gia chủ.

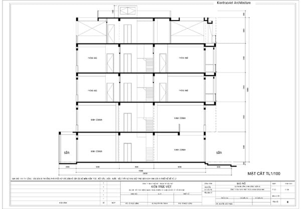
Mặt cắt nhà ống 5 tầng 5×20 thiết kế nhà liền kề tại khu dân cư ngay chợ An Sương, Quận 12.

Tổng quan mặt bằng dự án chuẩnbị mở bán của dự án nhà phố liền kề shophouse 5×20 thiết kế và xây dựng 5 tầng với chủ đầu tư dự án này chính là dự án trọng điểm và cũng là dự án lớn nhất tại Quận 12 hiện nay. Với quy mô 46 căn nhà phố shophouse liền kề được quy hoạch ngay khu dân cư và khu chợ mới An Sương. Định vị khách hàng cao cấp nên sự đầu tư về hình ảnh cho đến chất lượng công trình sẽ được chăm chút từng hạng mục.
Mặt bằng tầng trệt và tầng 1 là không gian linh hoạt cho việc sẽ ở hoặc cho thuê riêng từng nhãn hàng. Mặt bằng từ tầng 2 đến tầng 3 và sân thượng sẽđược ngăn phòng với không gian sinh hoạt riêng. Loại hình nhà ở kết hợp kinh doanh được chủ đầu tư tính toán rất chu toàn. Gia chủ có thể mở văn phòng làm việc tại gia mà không ảnh hưởng đến việc sinh hoạt riêng ở các tầng lầu trên. Tầng trệt sân trước 3 m và sân sau 2m theo quy dịnh mật độ chung của dự án. Do đó mình sẽ không có mặt tiền trực tiếp như các dự án nhà ở khác, nhưng bù lại mình sẽ có khoản sân rất rộng và thoáng. Sẽ thích hoạt cho các hoạt động kinh doanh về giáo dục, office hơn và nhà hàng quán ăn.
Thiết kế mặt bằng nhà liền kề thì đòi hỏi kiến trúc sẽ giống nhau từng chi tiết nhỏcho đến màu sắc và họa tiết trang trí bên ngoài. Cửa thì gia chủ có thể thay đổi theo sở thích. Còn bố cục và nội thất bên trong sẽ được biến hóa đa màu sắc của từng gia chủ.

Vậy một số câu hỏi mà nhiều gia chủ đặt ra chi phí hoàn thiện cho nhà giao thô mua từ dự án này là khoảng bao nhiêu? Như mình chia sẽ thì mức hoàn thiện bao gồm vật tư và nhân công hoàn thiện khoảng 2tr/m2 tùy vào vật liệu hoàn thiện, thấp nhất cũng phải từ 1,2tr/m2. Ví dụ nhà liền kế này 4,5 tầng với 1 sàn 100m2 tổng diện tích 450m2 dự trù hoàn thiện lại căn nhà khoảng 540tr cho đến 800 triệu hơn tùy vào vật liệu hoàn thiện như gách ốp, thiết bị vệ sinh, thiết bị chiếu sáng, thiết bị điều hòa, vật liệu sơn, hệ thống trần thạch cao….. Hãy liên hệ ngay với Kiến Trúc Việt để nhận tư vấn dự toán chi phí, vớiđội ngủ thợ chuyên nghiệp và đã hoàn thiện nhiều dự án nhà phố và căn hộ giao thô, chúng tôi sẽ mang lại cho gia chủ sự hài lòng về chất lượng và dịch vụ.
Ngoại thất nhà phố liền kề 5 tầng phong cách hiện đại được bàn giao:
1.Hoàn thiện kết cấu khung
2.Hoàn thành hệ thống điện nước
3.Hoàn thiện thô vàtrang trí ốp lát mặt tiền như bản vẽ
- Xây gạch ngăn không gian
Đặc điểm kiến trúc nhà phố liền kế 5 tầng phong cách Tân cổ điển mái ngói xanh:
- Toàn bộ trần bê tông vữa hoạc trần thạch cao, sơn hoàn thiện
- Toàn bộ tường gạch tô vữa và sơn hoàn thiện
- Cửa chính thép vân gỗ, khóa điện tử
- Cửa các phòng trong nhà gỗ công nghiệp
- Hệ thống cửa sổ khung nhôm và kính ghép an toàn
- Hệ thống cửa nhôm cuốn cho cửa trước tầng 1
Để nhận dự toàn hoàn thiện nội thất cho nhà phố/ cănhộ giao thô quý gia chủ liên hệ ngay chúng tôi để được tư vấn chi tiết từng hạng mục với chi phí hợp lý và luôn có giám sát quản lý công trình 24/04
Liên hệ ngay chúng tôi nhé:
Bản quyền tác giả: Cty TNHH MTVT Xây Dựng & TTNT Kiến Trúc Việt
Mọi hành vi sao chép bản quyền phải được sự đồng ý cho phép của Kiến Trúc Việt.
Hotline tư vấn kiến trúc và báo giá thiết kế, nội thất: 0918243364 – 0914243364
………………………………………………………………………………………..
Kiến Trúc Việt – Khơi nguồn sáng tạo ngôi nhà bạn…
Kiến Trúc nhà phố/ Biệt thự : Mang đến những ý tưởng thiết kế đầy sáng tạo, không chỉ phù hợp với môi trường Việt Nam mà còn cập nhật xu hướng thế giới. Cung cấp những giải pháp nhà ở đúng nhu cầu, thị hiếu và ngân sách của mỗi khách hàng.
Xây dựng Nhà phố/ Biệt thự: Không ngừng tìm tòi nghiên cứu, đầu tư phát triển công nghệ và vật liệu mới phù hợp xu hướng than thiện với môi trường. Xây dựng đội ngũ nhân viên nhiệt huyết nhằm đem lại nhưng trải nghiệm tuyệt với nhất cho khách hàng.
Thi công nội thất Căn hộ/ Nhà phố/ Biệt thự/ Văn phòng: Chúng tôi tin rằng mọi người đều có tổ ấm của riêng mình, một nơi để cảm nhận chính mình. Một ngôi nhà phù hợp với cá tính của bạn và gia đình, tạo ra một không gian dễ chịu và thoải mái. Một nơi tách biệt với thế giới bên ngoài, một nơi để thể hiện cá tính và sở thích của chủ nhân ngôi nhà. Sự ấm áp sẽ lan tỏa đến mọi người, dù khả năng kinh tế như thế nào. Đó là lý do tại sao chúng tôi muốn giúp bạn “Biến ngôi nhà thành tổ ấm”.
…………………………………………………………………………………………………….
CÔNG TY TNHH MTV XD & TTNT KIẾN TRÚC VIỆT
Thiết kế Nhà Phố – Thầu Xây dựng – Thi công nội thất – Trang trí thiết kế văn phòng
Hotline: 0918 243 364 – 0914 243 364
Email: cuongarchi@yahoo.com.vn
www.kientrucviet.com.vn
XEM THÊM CÁC DỰ ÁN NHÀ PHỐ 5 TẦNG CỦA KIẾN TRÚC VIỆT
Hồ sơ thiết kế nhà 5 tầng 95m2
Nhà ống 5 tầng 4mx12m Quận 3 có hầm và thang máy
Mẫu nhà phố 5 tầng 5×20 có thang máy Long Thành
Tư vấn chi tiết bố trí nhà 5 tầng 60m2 có thang máy dân dụng
Nhà ống 5 tầng 4×11 Quận 7
Tư vấn thiết kế nhà phố chữ L ngang 6,6m và dài 20m hợp lý mọi không gian
Kiến trúc nhà phố văn phòng 4 lầu có thang máy 8×11
Mẫu nhà phố 5 tầng ngang 6m và dài 9m
Kiến trúc nhà 5 tầng 6×18
Gói thiết kế và xây dựng nhà 5 tầng 4×15 với 1,5 tỷ
Giải pháp nhà 5 tầng 4mx20m có thang máy
Mẫu nhà phố 5 tầng ngang 6m và dài 9m
Tư vấn kiến trúc nhà 5 tầng 8×6 Quy Nhơn
Nhà 5 tầng 5mx20m phong cách hiện đại
Thiết kế thi công xây dựng nhà phố 5 tầng quận 2
Thiết kế nhà 5 tầng 5×20 dự án shophouse KDC An Sương Quận 12
Thiết kế nhà 5 tầng góc hai mặt tiền
Thiết kế Nhà 5 lầu làm văn phòng
Thiết kế và xây nhà phố 5 tầng 56m2
Kiến trúc khách sạn 5 tầng ngang 8m
Nhà ống 5 tầng ngang 4m và dài 26m có tầng hầm và thang máy
Share:
















