Kiến trúc nhà ống 5 tầng hiện đại mái ngói cách điệu với chiều ngang nhà 6m và chiều dài 9m. Điều mà gia chủ cảm nhận được ở ngôi nhà này chính là một không gian tiện nghi với cây xanh, màu sắc và đồ đạc nội thất định hình một lối sống trẻ hơn, vui hơn. Mà nghĩ cho cùng, sống trẻ và sống vui luôn là điều mà người ta tìm kiếm.


Kiến tạo chất lượng và khẳng định uy tín trong lĩnh vực thiết kế kiến trúc và xây dựng. Trong chặng đường 12 năm hình thành và phát triển của Kiến Trúc Việt, Ngành xây dựng và Thiết kế Kiến Trúc luôn được coi là minh chứng cho thành công và uy tín của toàn hệ thống. Kiến Trúc Việt đã tạo ra những công trình đòi hỏi sự chỉnh chu, hoàn hảo về chất lượng xây dựng và cả những công trình thiết kế kiến trúc đòi hỏi sự tỉ mỉ và tính thẩm mỹ cao. Với hàng trăm công trình chất lượng ở nhiều lĩnh vực khác nhau, Kiến Trúc Việt đã đem lại nhiều thiện cảm, tín nhiệm từ quý gia chủ gần xa, ghi dấu cấn vững chắc trong ngành suốt chặng đườnghình thành và phát triển.
Mặt bằng bố trí không gian ngôi nhà ngang 6m và dài 9m
Ngôi nhà với diện tích không vuông vứt, vát chéo ớphần khu mặt tiền ngôi nhà, bố trí không gian tầng 1 gồm phần sân để xe, vườn xanh và tiếp vào không gian chính ngôi nhà chính là phòng khách và không gian liên thông phòng ăn kế bên không gian phòng ăn, không gian khá nhỏ nhưng phảibố trí thêm 1 nhà vệ sinh ở trệt theo mong muốn của gia chủ.
NỘI DUNG TÓM TẮT
Mặt bằng tầng lửng là một phòng ngủ và khoảng thông tâng được thiết kế để hoàn công theo quy định mật độ và sau này sẽ che lại để thành một không gian phòng ở riêng biệt.
Mặt bằng tầng 2 hay còn gọi lầu 1 với 2 phòng ngủ master và hai tolet riêng biệt. Mặc dù hạn chế về chiều dài ngôi nhà nhưng được ưu điểm và chiều ngang nên kiến trúc sư đã có giải pháp đáp ứng được việc bố trí 2 phòng ngủ với 2 tolet riêng. Không gian mỗi phòng ngủ rất thông thoáng và đạt hiệu quả cao trong quá trình sử dụng. Việc bố trí không gian liên thông giữa tủ quần áo và phòng tắm là điểm nhấn cho căn phòng này. Gia chủ rất hài lòng với sự bố trí cho không gian sinh hoạt riêng cho căn nhà nhỏ dưới 60m2 với chiều ngang nhạ,6m và dài chỉ có 9m.

Mặt bằng tầng thượng hay gọi tầng 5 với 1 không gian phòng ngủ và 1 phòng thờ. Vẫn là bài toán thiết kế kiến trúc bố trí vừa để xin phép xây dựng được và cách tính toán có thể xây dựng bổ sung theo nhu cầu sau khi hoàn công công trình. Để đáp ứng được nhu cầu như thế này thì đòi hỏi Kiến trúc sư sẽ phải tính toán chi tiết từkếtcấu cho đếncách bố trí vách tường sauchohợp lý và tinh tế nhất. Vẫn đảm bảo quá trình xây dựng để ở và hoàn công được mà còn đảm bảo có thể biến tấu thêm không gian sau khi hoàn thành thủ tục hoàn công. Vấn đề nhiều gia chủ gặp phải đó chính là mật độ xây dựng cho phép.

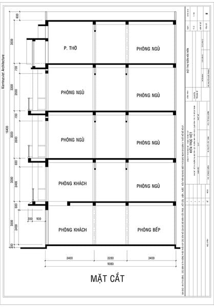
Mặt cắt thiết kế nhà ngang 5,6m dài 9m xây dựng 5 tầng

Mẫu nhà phố ngang 6mx9m 5 tầng

Mẫu nhà phố ngang 6mx9m 5 tầng

Mẫu nhà phố ngang 6mx9m 5 tầng

Nhà phố 5.6mx9m, 5 tầng
Chủ đâu tư: Anh Bằng
Địa chỉ xây dựng: p. Thạch Mỹ Lợi, Quận 2, HCM
Team thiế kế: Chủ trì Võ Ngọc Cường, Triển khai Minh Thuận
Nhìn từ bên ngoài, ngôi nhà là một khối kiến trúc đơn giản, gây ấn tưởng bợi những ô cửa, ban công nhỏ và phần mái. Cảm giản của chúng ta khi bước vàobên trong ngôi nhà đó là là một không gian thoáng rộng và trẻ trung. Có lẽ, cùng với việc tổ chức không gian hợp lý để hóa giải cảm giác chật chội của ngôi nhà diện tích nhỏ thì vận dụng màu sắc chính là sự thành công của người thiết kế.Vợ chồng chủ nhân tin tưởng, và nhóm thiết kế cũng nghĩ rằng mình cần phải thay đổi để tạo nên sự khác biệt trong cách làm, trong cảquan điểm về màu sắc liên quan đến lứa tuổi của người sử dụng không gian. Điều mà gia chủ cảm nhận được ở ngôi nhà này chính là một không gian tiện nghi với cây xanh, màu sắc và đồ đạc nội thất định hình một lối sống trẻ hơn, vui hơn. Mà nghĩ cho cùng, sống trẻ và sống vui luôn là điều mà người ta tìm kiếm.
Hình ảnh minh họa cho không gian nội thất với nguồn năng lượng từ màu sắc.

Không gian phòng bếp và phòng ăn liên thông


Nội thất phòng ngủ bố mẹ



Nội thất phòng ngủ tinh tế đơn giản.

Nội thất phòng thờ
DỊCH VỤ THIẾT KẾ NHÀ Ở CAO CẤP
Kiến Trúc Việt là công ty chuyên tư vấn thiết kế quán cafe, chúng tôi đã và đang thực hiện nhiều dự án thiết kế Nhà ở cao tầng, có hầm có thang máy với nhiều phong cách khác nhau từ đơn giản, hiện đại cho đến phong cách thiết kế vintage, phong cách thiết kế công nghiệp, industrial, thiết kế nhả phố cao tầng/ Biệt thự với 2 mặt tiền, 3 mặt tiền, thiết kế quán cafe sân vườn, cafe máy lạnh hoặc kết hợp nhiều loại hình. Đội ngũ thiết kế sáng tạo, giàu kinh nghiệm, tư vấn nhiệt tình, báo giá thiết kế nhanh chóng, chi phí thiết kế phù hợp chất lượng sản phẩm dịch vụ mang lại.
…………………………………………………………………………………………………….
CÔNG TY TNHH MTV XD & TTNT KIẾN TRÚC VIỆT
Thiết kế Nhà Phố – Thầu Xây dựng – Thi công nội thất – Trang trí thiết kế văn phòng
Hotline: 0918 243 364 – 0914 243 364
Email: cuongarchi@yahoo.com.vn
www.kientrucviet.com.vn
XEM THÊM CÁC DỰ ÁN NHÀ PHỐ 5 TẦNG CỦA KIẾN TRÚC VIỆT
Hồ sơ thiết kế nhà 5 tầng 95m2
Nhà ống 5 tầng 4mx12m Quận 3 có hầm và thang máy
Mẫu nhà phố 5 tầng 5×20 có thang máy Long Thành
Tư vấn chi tiết bố trí nhà 5 tầng 60m2 có thang máy dân dụng
Nhà ống 5 tầng 4×11 Quận 7
Tư vấn thiết kế nhà phố chữ L ngang 6,6m và dài 20m hợp lý mọi không gian
Kiến trúc nhà phố văn phòng 4 lầu có thang máy 8×11
Mẫu nhà phố 5 tầng ngang 6m và dài 9m
Kiến trúc nhà 5 tầng 6×18
Gói thiết kế và xây dựng nhà 5 tầng 4×15 với 1,5 tỷ
Giải pháp nhà 5 tầng 4mx20m có thang máy
Mẫu nhà phố 5 tầng ngang 6m và dài 9m
Tư vấn kiến trúc nhà 5 tầng 8×6 Quy Nhơn
Nhà 5 tầng 5mx20m phong cách hiện đại
Thiết kế thi công xây dựng nhà phố 5 tầng quận 2
Thiết kế nhà 5 tầng 5×20 dự án shophouse KDC An Sương Quận 12
Thiết kế nhà 5 tầng góc hai mặt tiền
Thiết kế Nhà 5 lầu làm văn phòng
Thiết kế và xây nhà phố 5 tầng 56m2
Kiến trúc khách sạn 5 tầng ngang 8m
Nhà ống 5 tầng ngang 4m và dài 26m có tầng hầm và thang máy
Share:


















