.
.
.

Nhà phố mặt tiền 5m 3 tầng Bình Dương

Ý tưởng bố trí kiến trúc nhà phố mặt tiền 5m 3 tầng xây dựng 1 trệt 2 lầu và 1 sân thượng với 4 phòng ngủ chính và các không gian phụ khác chủ đầu tư tại Bình Dương

Nhà phố mặt tiền 5m 3 tầng
kiến trúc nhà phố mặt tiền 5m 3 tầng xây dựng 1 trệt 2 lầu và 1 sân thượng

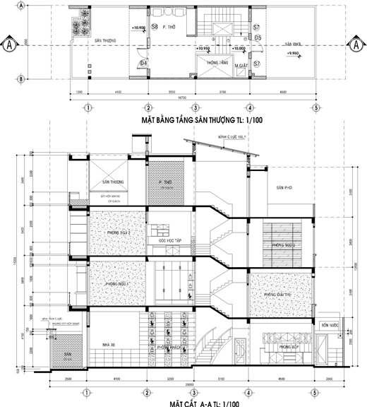
Mặt bằng bố trí nhà phố mặt tiền 5m 3 tầng

Cuộc sống hiện đại và nhu cầu về tiện nghi ăn ở ngày càng tăng cao, đã kéo theo chiều cao của các ngôi nhà làm mất đi tính quân bình. Vì thế, mặt đứng khối nhà được kiến trúc sư nghiên cứu để “kéo” chiều cao hiện đại kia về lại thật gần gũi với hình dáng xưa vốn có, đồng thời tránh được cái nóng hướng tây gay gắt.

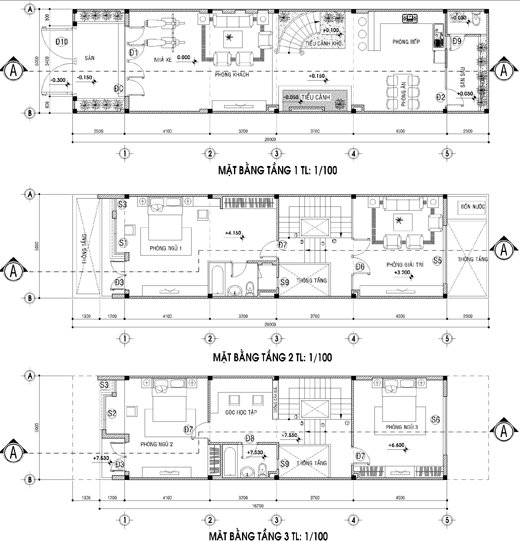
  • Tầng trệt nhà được dành toàn bộ cho việc buôn bán, cầu thang đặt cuối nhà dẫn lên không gian ở riêng.
  • Từ tầng lầu 1 trở lên, giải pháp lệch tầng tạo thêm sự sinh động cho các không gian phòng bếp, phòng khách, các phòng ngủ.
  • Ô cầu thang trở thành điểm nhấn chính của ngôi nhà với ánh sáng thiên nhiên chan hòa từ trên xuống.

mặt bằng nhà phố mặt tiền 5m 3 tầng

mặt bằng bố trí nhà phố mặt tiền 5m 3 tầng

Nội thất nhà phố mặt tiền 5m 3 tầng tại Bình Dương

Hai màu sắc chủ đạo là trắng và vàng sáng được chọn, để vừa phù hợp với mạng Kim của hai vợ chồng chủ tiệm bánh mang tên Hoàng Mai và cũng trùng hợp với sắc màu của hoa mai miền Nam tươi thắm – quả là “nhất cử lưỡng tiện”! Nhưng ngôi nhà sẽ trọn vẹn ý nghĩa hơn, nếu như các tác giả thiết kế đưa được “nét Bình Dương” vào bên trong nhà, thay vì chỉ dừng lại ở việc xử lý mặt đứng phía trước.

nhà phố mặt tiền 5m 3 tầng
Nhà phố mặt tiền 5m 3 tầng xây dựng 1 trệt 2 lầu và 1 sân thượng. 

Bếp ăn

Không gian bếp – ăn, nơi mọi người mỗi bữa quây quần bên nhau, có vẻ được “ưu ái” nhất trong nhà. Từ bếp, nữ chủ nhân có thể vừa nấu nướng vừa bao quát tầm nhìn ra phòng khách phía trước. Một chút phá cách khi kiến trúc sư đưa một nhánh tủ bếp treo bằng dây cáp, và kệ bếp lò được đỡ bằng kính cường lực, tạo cảm giác như một console vững chắc và đầy ngẫu hứng.

bếp ăn nhà phố mặt tiền 5m 3 tầng

Phòng ngủ

phòng ngủ nhà phố mặt tiền 5m 3 tầng

phòng ngủ nhà phố mặt tiền 5m 3 tầng bình dương

Phòng khách

phòng khách nhà phố mặt tiền 5m 3 tầng

phòng bếp nối liền phòng khách

cầu thang nhà phố mặt tiền 5m 3 tầng

phòng khách nhà phố mặt tiền 5m 3 tầng

Team design Kiến Trúc Việt.
…………………………………………………………………………………………………….

CÔNG TY TNHH MTV XD & TTNT KIẾN TRÚC VIỆT

Thiết kế Nhà – Thầu Xây dựng – Thi công nội thất – Trang trí thiết kế văn phòng

Hotline: 0918 243 364 – 0914 243 364

Email: cuongarchi@yahoo.com.vn

www.kientrucviet.com.vn

XEM THÊM CÁC DỰ ÁN NHÀ PHỐ 5M CỦA KIẾN TRÚC VIỆT

Mẫu nhà phố hiện đại 5m
Thiết kế nhà phố 5m ngang và dài 20m 3 tầng tại Dĩ An Bình Dương
Nhà mặt phố ngang 5m dài 20m 4 tầng với 1 trệt 2 lầu và 1 sân thượng
Nhà mặt tiền 5m dài 14m 1 trệt 3 lầu Quận 8
Nhà phố mặt tiền 5m 3 tầng Bình Dương
Nhà phố lệch tầng mặt tiền 5m xây dựng 3 tầng
Nhà phố 5mx16m 2 mặt tiền 1 trệt 3 lầu Phan Thiết
Nhà phố mặt tiền 5m 4 tầng Quận 12
Mẫu nhà phố 5m 4 tầng quận 3
Nhà đẹp mặt tiền 5m chiều dài 20m 1 trệt 3 lầu Hải Phòng
Thiết kế nhà phố 5m 1 lửng 4 tầng
Thiết kế nhà 5m 3 tầng Bình Thạnh
Thiết kế nhà 5mx16m 4 tầng quận 3
Nhà phố 5mx16m 3 tầng mái ngói
Thiết kế nhà phố 5mx16m 4 tầng kiến trúc bán cổ điển
Mặt bằng kiến trúc nhà phố 5mx12m 60m2 Quận 2
Thiết kế nhà phố hiện đại 5×20 4 tầng 100m2 quận Bình Tân
Thiết kế và xin phép xây dựng nhà phố 5mx20m
Mẫu nhà phố 5mx15m xây dựng 4 tầng Quận 3
Thiết kế nhà 5m 3 lầu 4 phòng ngủ 1 phòng khách 1 phòng bếp và 1 phòng thờ
Bản vẽ thiết kế nhà rộng 5m dài 16m 1 trệt 3 tầng
Thiết kế nhà phố 5mx15m 1 trệt 1 lầu tại Biên Hòa
Thiết kế nhà phố 5mx18m 4 tầng Bình Dương
Thiết kế nhà 5×20 4 tầng có tầng hầm và thang máy Quận 2
Thiết kế nhà phố hiện đại 5mx18m 4 tầng tại quận Tân Bình
Thiết kế nhà 5×20 4 tầng Đắk Lắk

Click to rate this post!
[Total: 0 Average: 0]

Share:

Để lại một bình luận

Email của bạn sẽ không được hiển thị công khai. Các trường bắt buộc được đánh dấu *