Kiến Trúc Việt sẽ biến ước mơ của bạn về một “Tổ ấm Xanh, Văn minh” trở thành hiện thực.với hơn 10 năm kinh nghiệm trong Kiến Trúc nhà ở. Kiến Trúc Việt lấy cảm hứng cũng chính là điềm đam mê để nhóm kiến trúc sư trẻ tài năng Dịch vụ chúng tôi cung cấp them chốt bao gồm: Thiết kế/ Xây dựng/ Hoàn thiện nội thất. Mời bạn đọc cùng xem dự án thiết kế nhà phố 3 tầng 5mx23m tại Long An.

XEM THÊM: Mẫu nhà 3 tầng hiện đại
Thông tin công trình
Chủ đầu tư: Anh Trí
Địa chỉ xây dựng: Đức Hòa- Long An
Bản quyền thiết kế : www.kientrucviet.com.vn
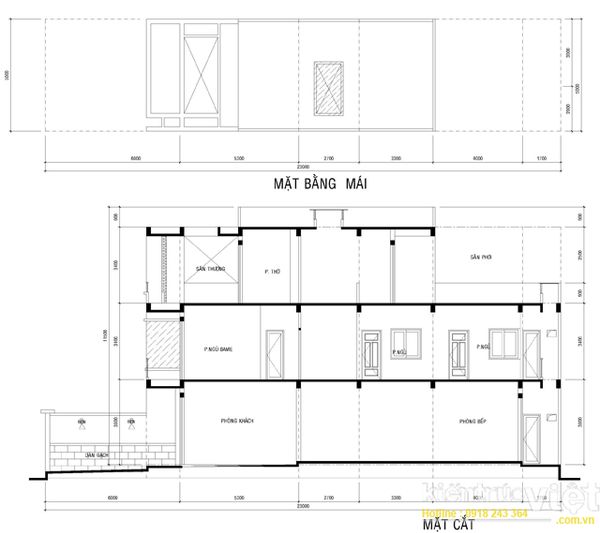
Mặt bằng bố trí nhà phố 3 tầng 5×23 phong cách kiến trúc đương đại
Mặt bằng tầng 1 được bố trí không gian cho phòng sinh hoạt, phòng khách, bếp và phòng ăn liên thông, sân trước gara oto và xe máy với hai lớp cửa chính, cửa cuốn và lớp cửa sắt cho cửa cổng, lớp cửanhôm kính cho phòng sinhhoạt chính. Không gian bếp và phòng ăn mở thông thoáng lấy sáng tự nhiên nhờ khoản sân sau được Kiến Trúc Sư tư vấn chừa ra khoản hơn 1 m, có thểbố trí khu vườn nhỏ hay thác nước cho khu vườn nhỏ ở sân sau này. Chính khoản sân này giúp chúng ta bỏ đi sự bức tức những bức tường thô cứng, tạo một cảm giác thoáng và thoải mái cho bà nội trợ khi ở không gian bếp này.

Tầng 2 với ngang nhà 5m và dài 23m: thì bố trí 3 phòng ngủ trên 1 tầng lầu khá thông thoáng cho từng không gian. Tolet dùng riêng cho phòng ngủ master của bố mẹ. Với lối thang đi vẫn có một khoản thông thống đệm trước khi vào từng phòng ngủ riêng.

Tầng 3 hay gọi tầng thượng cho nhà phố 3 tầng ngang nhà 5m: được bố trí chính là sân vườn và phòng thờ sân trước với hai khoản sân lớn có thể tổ chức cácbuổi tiệc sinh hoạt cuối tuần ấm áp và thoáng mát với đại gia đình
Nhà phố 3 tầng diện tích 5×23 nhà anh Trí với dự toán ngân sách cho phần hoàn thiện thô 850 triệu và chi phí dự toán hoàn thiện cả công trình chưa gồm nội thất là 1,3 tỷ. Gói nội thất nhà thô thi công theo bản vẽ nội thất dưới đây do Kiến Trúc Việt thiết kế và hoàn thiện nội thất là khoan 300 triệu.
Mẫu nội thất nhà phố 3 tầng ngang 5mx23m













Tại sao chọn Kiến Trúc Việt để tư vấn thiết kế kiến trúc và nội thất dù bạn ở thành phố hay ở ngoại tỉnh
- Chúng tôi tự hào về các sản phẩm kiến trúc hài hòa thỏa mản nhu cầu của từng gia chủ từ phong cách hiện đạicho đến cổ điển sang trọng. Bên cạnh đó là sự thẩu hiểu chuyên môn kỹ thuật nên có nhiều tư vấn giải pháp hay đến quý khách và nhà thầu riêng của chủ nhà, đối với khách hàng ở xa việc tư vấn hỗ trợ từ xa nhiệt tình của kỹ sư Kiến Trúc Việt cũng mang đế sự an tâm cho gia chủ. Ngoài ra bản vẽ Kiến Trúc Việt mang đến cho gia chủ luôn được chỉnh chu và hoàn thiện từng chi tiết nhỏ như cam kết.
- Toàn bộ hồ sơ thiết kế công năng các phòng và kiến trúc đều được tư vấn hợp theo Phong thủy và tuổi của chủ đầu tư. Kích thước các phòng, chiều cao nhà và kích thước cửa đều theo kích thước phong thủy.
Thời gian triển khai bản vẽ với các công trình ở tỉnh thành như thế nào?
- Giai đoạn 1: Đối với các dự án thiết kế ở tỉnh thì sau thời gian chốt hợp đồng thiết kế thì trong 2 đến 3 ngày Kiến Trúc Sư sẽ gởi bản vẽ ý tưởng bố trí mặt bằng, mặt cắt để cùng nhau trao đổi chỉnh sửa phương án.
- Giai đoạn 2: Triển khai bản vẽ 3D nội thất Sau khi chỉnh sửa hoàn thiện phương án trong vòng 7 ngày vẽ gởi bản vẽ 3D ngoại thất và nội thất
- Giai doạn 3: Triển khai bản vẽ kỹ thuật chi tiết thi công khoảng 10 ngày đến 15 ngày tùy vào khối lượng của dự án
Hồ sơ bản vẽ hoàn chỉnh gồm những gì
CHI TIẾT HỒ SƠ THIẾT KẾ KIẾN TRÚC BAO GỒM
- Bản vẽ chi tiết hồ sơ kiến trúc và phối cảnh ngoại thất 3D
- Bản vẽ chi tiết nội thất, phối cảnh nội thất 3D
- Bản vẽ kết cấu công trình (Móng, tường dầm, sàn)
- Bản vẽ hệ thống ME (Điện – Nước – Điều hòa – Thông gió – An ninh…)
- Dự toán công trình: chi tiết chi phí xây dựng – Tổng mức đầu tư
- Toàn bộ hồ sơ thiết kế công năng các phòng và kiến trúc đều được tư vấn hợp theo Phong thủy và tuổi của chủ đầu tư. Kích thước các phòng, chiều cao nhà và kích thước cửa đều theo kích thước phong thủy.
Hãy liên hệ ngay với Kiến Trúc Sư!.
Kiến Trúc Việt sẽ biến ước mơ của bạn về một “Tổ ấm Xanh, Văn minh” trở thành hiện thực.
với hơn 10 năm kinh nghiệm trong Kiến Trúc nhà ở. Kiến Trúc Việt lấy cảm hứng cũng chính là điềm đam mê để nhóm kiến trúc sư trẻ tài năng Dịch vụ chúng tôi cung cấp them chốt bao gồm:
- Thiết kế kiến trúc nhà phố hiện đại
- Thiết kế kiến trúc nhà tân cổ điển
- Thiết kế biệt thự cổ điển
- Thiết kế biệt thự phố
- Thiết kế biệt thự vườn
- Thiết kế nhà ở cao tầng
- Thiết kế công trình Shophouse, Apartment Studio, Khách sạn mini, Office
Những công trình mẫu nhà đẹp có thể bạn quan tâm
- Mẫu nhà phố 3 tầng
- Mẫu nhà phố 4 tầng
- Mẫu nhà phố 5 tầng
- Mẫu nhà phố mặt tiền 4m
- Mẫu nhà phố mặt tiền 5m
- Mẫu nhà phố mặt tiền 6m
- Mẫu biệt thự phô 2 tầng
Bản quyền tác giả: Cty TNHH MTVT Xây Dựng & TTNT Kiến Trúc Việt
Mọi hành vi sao chép bản quyền phải được sự đồng ý cho phép của Kiến Trúc Việt.
Hotline tư vấn kiến trúc và báo giá thiết kế, nội thất: 0918243364 – 0914243364
………………………………………………………………………………………..
Kiến Trúc Việt – Khơi nguồn sáng tạo ngôi nhà bạn…
Kiến Trúc nhà phố/ Biệt thự : Mang đến những ý tưởng thiết kế đầy sáng tạo, không chỉ phù hợp với môi trường Việt Nam mà còn cập nhật xu hướng thế giới. Cung cấp những giải pháp nhà ở đúng nhu cầu, thị hiếu và ngân sách của mỗi khách hàng.
Xây dựng Nhà phố/ Biệt thự: Không ngừng tìm tòi nghiên cứu, đầu tư phát triển công nghệ và vật liệu mới phù hợp xu hướng than thiện với môi trường. Xây dựng đội ngũ nhân viên nhiệt huyết nhằm đem lại nhưng trải nghiệm tuyệt với nhất cho khách hàng.
Thi công nội thất Căn hộ/ Nhà phố/ Biệt thự/ Văn phòng: Chúng tôi tin rằng mọi người đều có tổ ấm của riêng mình, một nơi để cảm nhận chính mình. Một ngôi nhà phù hợp với cá tính của bạn và gia đình, tạo ra một không gian dễ chịu và thoải mái. Một nơi tách biệt với thế giới bên ngoài, một nơi để thể hiện cá tính và sở thích của chủ nhân ngôi nhà. Sự ấm áp sẽ lan tỏa đến mọi người, dù khả năng kinh tế như thế nào. Đó là lý do tại sao chúng tôi muốn giúp bạn “Biến ngôi nhà thành tổ ấm”.
……………………………………………………………………………………….
CÔNG TY TNHH MTV XD & TTNT KIẾN TRÚC VIỆT
Thiết kế Nhà Phố – Thầu Xây dựng – Thi công nội thất – Trang trí thiết kế văn phòng
VPGD: P602, Lô A1, Sunny Plaza, 110 a Phạm Văn Đồng, p3, GV, HCM
Xưởng thi công nội thất; 438/6 Nguyễn Văn Quá, Q12, HCM
Hotline: 0918 243 364 – 0914 243 364
Email: cuongarchi@yahoo.com.vn
www.kientrucviet.com.vn
XEM THÊM CÁC DỰ ÁN NHÀ PHỐ 3 TẦNG CỦA KIẾN TRÚC VIỆT
Nhà phố 3 tầng 80m2
Nhà phố 3 tầng 70m2 5m
Nhà 3 tầng mái ngói hai mặt tiền
Nhà phố 3 tầng 4,5m
Nhà phố 3 tầng 4mx16m
Thiết kế nhà phố 3 tầng 6mx20m
Nhà phố 3 tầng 4mx18m
Nhà phố 3 tầng 70m2
Nhà phố 3 tầng 5mx23m tại Long An
Kiến trúc nhà 3 tầng 4m
Xây nhà 3 tầng 900 triệu
Bản vẽ nhà 3 tầng 8m
Nhà phố 3 tầng 5mx16m
Nhà phố 3 tầng Bình Dương
Nhà phố 3 tầng ngang 6m
Nhà phố 3 tầng biệt thự
Nhà 3 tầng mặt tiền 7m dài 10m
Nhà phố 3 tầng 6mx30m hai mặt tiền
Nhà phố 3 tầng 5×18 lệch tầng
Share:
















