
Xem thêm:
Các kiểu nhà 2 tầng đẹp hiện nay
NỘI DUNG TÓM TẮT
Thông tin công trình
| Chủ đầu tư | Chị Ngọc, Thủ Đức |
| Quy mô xây dựng | Nhà phố 2 tầng ngang 4m với chiều dài 20m |
| Hạng mục thực hiện | Thiết kế kiến trúc, Xin phép xây dựng, Hoàn thiện nhà. |
| Tác giả | Team design Kiến Trúc Việt |
Thiết kế nhà phố 2 tầng 4mx20m Thủ Đức
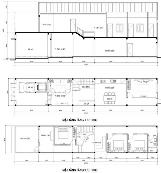
Mặt bằng bố trí nhà nhỏ xinh 4×20
Nhà phố 4m, xây dựng 2 tầng ( 1 trệt 1lầu ), Kiến trúc sư đã xử lý khéo léo, đơn giản theo dạng mở, không ngăn cách, tạo nên điểm nhấn cho nhà.

Nội thất nhà phố 2 tầng 4mx20m

Nhà phố 4m, xây dựng 2 tầng – Tham khảo không gian tại tầng trệt






…………………………………………………………………………………………..
CÔNG TY TNHH MTV XD & TTNT KIẾN TRÚC VIỆT
Thiết kế Nhà Phố – Thầu Xây dựng – Thi công nội thất – Trang trí thiết kế văn phòn
VPGD: P602, Lô A1, Sunny Plaza, 110 a Phạm Văn Đồng, p3, GV, HCM
Xưởng thi công nội thất; 438/6 Nguyễn Văn Quá, Q12, HCM<
Hotline: 0918 243 364 – 0914 243 364
Email: cuongarchi@yahoo.com
XEM THÊM CÁC DỰ ÁN NHÀ PHỐ 2 TẦNG CỦA KIẾN TRÚC VIỆT
Nhà phố 2 tầng 9mx16m Bình Dương
Thiết kế nhà 2 tầng 6mx24m
Mẫu nhà 2 tầng 72m2
Thiết kế nhà 2 tầng biệt thự 7mx16m
Mẫu nhà 2 tầng ngang 8m dài 20m
Nhà 2 tầng 20mx5m
Thiết kế nhà 2 tầng Bình Dương
Biệt thự phố 2 tầng 7×14
Thiết kế nhà 2 tầng mái ngói 5mx15m
Nhà 2 tầng 20mx5m mái ngói quận Thủ Đức
Nhà nhỏ 2 tầng 6mx20m Thanh Hóa
Giải pháp nhà 2 tầng xây dựng 800 triệu Bạc Liêu
Nhà liền kề 2 tầng ngang 5m
Nhà 2 tầng mái ngói 7mx20m
Nhà phố 2 tầng 4mx20m Bình Dương
Nhà phố 2 tầng 4mx13m Bình Dương
Nhà phố 2 tầng 8mx16m Hóc Môn
Nhà phố 2 tầng 6mx24m Buôn Mê Thuột
Share:
















