.
.
.

Kiến trúc nhà phố 6 tầng 4mx 25m văn phòng kết hợp căn hộ cho thuê

Kiến trúc nhà phố văn phòng kết hợp căn hộ cho thuê 6 lầu

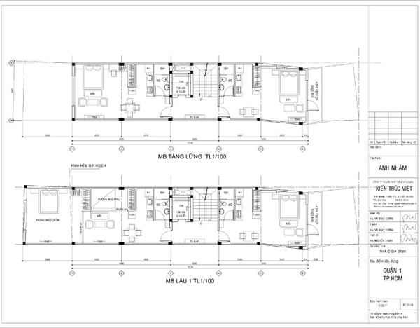
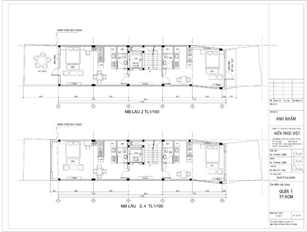
Mặt bằng Kiến trúc nhà phố 6 tầng với nhu cầu xây dựng văn phòng kết hợp căn hộ cho thuê, Diện tích nhà 4mx 25m, xây dựng 6 lầu. Dự án tiêu biểu sẽ hình thành trong năm 2020. Với nhu cầu gia chủ là dự án nhà phố văn phòng cho thuê kết hợp căn hộ cho thuê.

Với diện tích ngang nhà 4m và chiều dài 25m, nhu cầu gia chủ là xây dựng một công trình kiến trúc cao tầng để cho thuê. Như mặt bằng trệt và lầu 1 là cho thuê văn phòng, xây dựng cao tầng với thiết kế các phòng ở riêng biệt để gia chủ cho thuê. các phòng ở khoảng từ 12m2 đến 16m2 với đầy đủ tiện nghi và trang trí khá ấn tượng để giữ chân khách thuê.

Mặt bằng Kiến trúc nhà phố văn phòng kết hợp căn hộ cho thuê, Diện tích nhà 4mx 25m

Kiến trúc nhà phố văn phòng kết hợp căn hộ cho thuê

Kiến trúc nhà phố văn phòng kết hợp căn hộ cho thuê

Kiến trúc nhà phố văn phòng kết hợp căn hộ cho thuê

Kiến trúc nhà phố văn phòng kết hợp căn hộ cho thuê

Kiến trúc nhà phố văn phòng kết hợp căn hộ cho thuê

Kiến trúc nhà phố văn phòng kết hợp căn hộ cho thuê

Kiến trúc nhà phố văn phòng kết hợp căn hộ cho thuê

Kiến trúc nhà phố văn phòng kết hợp căn hộ cho thuê

Kiến trúc nhà phố văn phòng kết hợp căn hộ cho thuê

Kiến trúc nhà phố văn phòng kết hợp căn hộ cho thuê

Kiến trúc nhà phố văn phòng kết hợp căn hộ cho thuê

Kiến trúc nhà phố văn phòng kết hợp căn hộ cho thuê

Kiến trúc nhà phố văn phòng kết hợp căn hộ cho thuê – Phương án 1 về phố cảnh mặt tiền cho nhà phố căn hộ cho thuê cao 6 tầng.

Kiến trúc nhà phố văn phòng kết hợp căn hộ cho thuê

Kiến trúc nhà phố văn phòng kết hợp căn hộ cho thuê – Phương án 2 về phố cảnh mặt tiền cho nhà phố căn hộ cho thuê cao 6 tầng.

Với nhu cầu gia chủ cần kiến trúc mặt tiền phong phú mới mẻ và hiện đại, không đi theo phong cách cổ điển hiện đại. Kiến trúc nhà phố 6 lầu này đáp ứng nguyện vọng gia chủ về sự tinh tế, đa phong cách, tận dụng tối đa diện tích là không có ban công. Bảng nội thất cho từng không gian sẽ được Kiến Trúc Việt trình bày trong tháng 1.2018.

Với hơn 10 năm kinh nghiệp trong lĩnh vực thiết kế kiến trúc nhà phố/ kiến trúc văn phòng cao tầng/ Kiến trúc nhà phố kết hợp kinh doanh/ Kiến Trúc Biệt Thự… Mỗi sản phẩm đều được đầu tư khá nhiều về sự sáng tạo mới mẻ, ứng dụng các vật liệu mới trong ngành nội thất để mang đến cho gia chủ một sản phẩm hoàn hảo nhất và phù hợp với mong muốn của mình nhất.

Mọi tư vấn báo giá thiết kế và xây dựng vui lòng liên hệ

Gđ. KTS Võ Ngọc Cường 0918243364

Tp. Kinh doanh: Trần Trinh 0914243364

Email: cuongarchi@yahoo.com.vn & trinhmarketing10@gmail.com

……………………………………………………………………………………….

CÔNG TY TNHH MTV XD & TTNT KIẾN TRÚC VIỆT

Thiết kế Nhà – Thầu Xây dựng – Thi công nội thất – Trang trí thiết kế văn phòng

VPGD: P602, Lô A1, Sunny Plaza, 110 a Phạm Văn Đồng, p3, GV, HCM

Xưởng thi công nội thất; 438/6 Nguyễn Văn Quá, Q12, HCM

Hotline: 0918 243 364 – 0914 243 364

Email: cuongarchi@yahoo.com.vn

www.kientrucviet.com.vn

Click to rate this post!
[Total: 0 Average: 0]

Share:

Để lại một bình luận

Email của bạn sẽ không được hiển thị công khai. Các trường bắt buộc được đánh dấu *