
Với mỗi gia đình, nhu cầu sống và hưởng thụ sẽ khác nhau nên khái niệm vừa và đủ trong các không gian sống vì vậy cũng chỉ được hiểu một cách tương đối. Nhưng đối với những người làm thiết kế, để giải bài toán Vừa và Đủ ấy lại là một quá trình tương tác, tìm hiểu và tư vấn. Chỉ được xem là thành công khi người chủ nhà mới thấy hài lòng với mọi thứ: Đủ các không gian sinh hoạt gia đình, Vừa với nhu cầu và Tương xứng với khoảng đầu tư xây dựng. Mẫu nhà 2 tầng 72m2 này đã có được các yếu tố trên được xem là thỏa mãn nhu cầu gia chủ.
NỘI DUNG TÓM TẮT
Thiết kế nhà phố 2 tầng 72m2 xây dựng 6mx12m
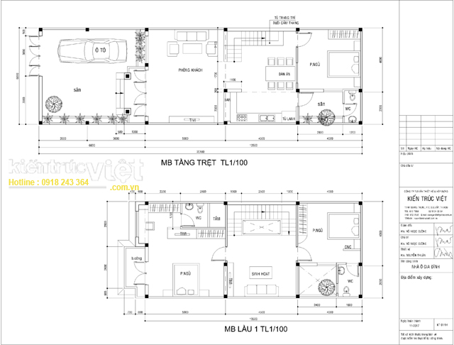
Mặt bằng bố trí kiến trúc nhà 2 tầng 72m2
Kiến Trúc Việt luôn dựa trên tinh thần hài lòng gia chủ về không gian chức năng cho đến cái bài trí nội thất để mang đên một không gian sống thật hài hòa và phù hợp với tài chính của gia chủ. Với diện tích đất không lớn nhưng cũng là đủ cho không gian tại thành phố đô thị như sài gòn thì diện tích nhà xây dựng giao đổng 52m2 4×13 hay 60m2 với 4×15 hay diện tích 72m2 với 6×12 , 6×13 là những diện tích đất phổ biến được quy hoạch phân lô bán nền, được xây dựng tự do không theo quy định. Với lô đất 6×12 tổng diện tích 72m2 được quy định cho sân trước 4m và diện tích xây dựng thực tế giao động 6mx8m. Nhu cầu gia chủ xây dựng nhà 2 tầng 72m2 tầm chi phí xây dựng va hoàn thiện tất cả giao động dưới 1,6 tỷ.

Tâng trệt với sân trước gara oo và xe máy, cổng cửa cuốn và lớp cừa sắt an toàn . Vào bên trong là bậc tam cổng để lên sảnh phòng khách được tách biệt với khoảng sân. Bậc thềm nhà cao hơn để phân biết không gian chính và phụ. Sân có mái hiên một phần và một phần làm bằng khung thép bảo vệ và vừa cây dây leo. Vào bên trong là sảnh phòng khách khá rộng với mặt ngang nhà 6m. Vào bên trong là khu vực không gian bếp và phòng ăn, Cầu thang được cập bên hong tường, phía dưới gầm thang la 2khu vực tiểu cảnh và khu trưng bày kho kết hợp. Như vậy se không có khoảng trống dư thừa và gốc chết ở đây. Khu giếng trời nhỏ được cập bên góc thang.
Phía sau nhà là phòng ngủ nhỏ 9m2 nhưng đầy đủ nội thất như giường, tủ, bàn kệ trang điểm. Phía sau là nhà vệ sinh chung và để giải quyết cho sự thông thoáng và tiểu cảnh nhỏ cho gốc giếng trời khoảng 2m2 cập hông với nhà vệ sinh và phòng ăn. Khoảng trống này được xem là sân vườn nhỏ khá thú vị cho những cô chủ thích chơi tiêu cảnh nhỏ.
Phòng khách



Phòng bếp


Nội thất không gian phòng bếp cho nhà phố ngang 6m. Khoảng sân nhỏ bên hông lấy sáng và thông thoáng cho cả ngô nhà. Và giếng trời là một phần không thể thiếu cho nhà phố với hai bên giáp nhà và không được trổ cửa sổ hay cửa hông nào.

Lối thang lên với giải pháp cập hông sát tường không chiếm nhiều diện tích vẫn đảm bảo nét duyên cho ngôi nhà.
Phòng ngủ






Ngôi nhà với dáng dấp không cao nhưng đầy nét duyên với diện tích nhà 72m2 ngang 6 và dài 12 m. Nhu cầu gia chủ với 3 phòng ngủ và nhà chỉ xây dựng 2 tầng với tầng 1 là không gian sinh hoạt chung có garaoto và 1 phòng ngủ nhỏ. Tầng lầu 1 là hai phòng ngủ đầy đủ tiện nghi nội thất hiện đại trẻ trung nhưng không cầu kỳ trang trí vì tài chính có giới hạn.
Đây là căn nhà đầu tiên của một gia đình trẻ trong một khu dân cư thuộc quận 9, Thành phố Hồ Chí Minh. Khi trao đổi với nhóm thiết kế gia chủ bầy tỏa sự yêu thiên nhiên, mong muốn có được một không gian thoáng mát, nhiều mảng xanh, có nắng và gió, vật liệu gần gũi với thiên nhiên và mức đầu tư tài chính có giới hạn nên không cầu kỳ về kình thức vật trang trí nội thất đắt tiền. Họ chỉ cần các không gian ở mức diện tích cơ bản, không quá phô trường cầu kỳ về mặt trang trí nhưng chú trọng đến công năng sử dụng và quan trọng đến giá trị của sản phẩm cũng như chất liệu.
…………………………………………………………………………………………..
CÔNG TY TNHH MTV XD & TTNT KIẾN TRÚC VIỆT
Thiết kế Nhà Phố – Thầu Xây dựng – Thi công nội thất – Trang trí thiết kế văn phòng
VPGD: P602, Lô A1, Sunny Plaza, 110 a Phạm Văn Đồng, p3, GV, HCM
Xưởng thi công nội thất; 438/6 Nguyễn Văn Quá, Q12, HCM
Hotline: 0918 243 364 – 0914 243 364
Email: cuongarchi@yahoo.com
XEM THÊM CÁC DỰ ÁN NHÀ PHỐ 2 TẦNG CỦA KIẾN TRÚC VIỆT
Nhà phố 2 tầng 9mx16m Bình Dương
Thiết kế nhà 2 tầng 6mx24m
Thiết kế nhà 2 tầng biệt thự 7mx16m
Mẫu nhà 2 tầng ngang 8m dài 20m
Nhà 2 tầng 20mx5m
Thiết kế nhà 2 tầng Bình Dương
Biệt thự phố 2 tầng 7×14
Thiết kế nhà 2 tầng mái ngói 5mx15m
Nhà 2 tầng 20mx5m mái ngói quận Thủ Đức
Nhà nhỏ 2 tầng 6mx20m Thanh Hóa
Giải pháp nhà 2 tầng xây dựng 800 triệu Bạc Liêu
Nhà liền kề 2 tầng ngang 5m
Nhà 2 tầng mái ngói 7mx20m
Nhà phố 2 tầng 4mx20m Thủ Đức 800 triệu
Nhà phố 2 tầng 4mx20m Bình Dương
Nhà phố 2 tầng 4mx13m Bình Dương
Nhà phố 2 tầng 8mx16m Hóc Môn
Nhà phố 2 tầng 6mx24m Buôn Mê Thuột
Share:
















