Nhà ống 4 tầng 4.5mx15m được thiết kế và xây nhà 1 trệt 1 lửng 3 lầu và 1 sân thượng phong cách hiện đại trẻ trung luôn được ưu chuộng nhất của nhiều gia chủ. Sự kết hợp giữa cái cũ với nét hiện đại đã tạo nên một kiến trúc vừa xinh lại vừa gần gũi. Với diện tích không quá lơn của ngôi nhà, các kiến trúc sư Kiến Trúc Việt đã tạo nên một kiến trúc mặt tiền khá ấn tượng. Đây chính là thế mạnh của đội ngũ kiến trúc sư Kiến Trúc Việt.

NỘI DUNG TÓM TẮT
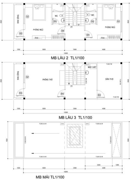
Mặt bằng bố trí nhà ống 4 tầng 4,5mx15m
Mặt bằng bố trí không gian theo nhu cầu gia chủ kết hợp mặt bằng trệt cho thuê kinh doanh và các tầng lầu trên là ở cho nhà ống 4 tầng 4,5mx15m

Mặt bằng trệt được chia làm hai không gian với một phần là cho thuê mặt bằng sảnh trước và một không gian bếp và sân sau để lấy gió thoáng cho không gian bếp. Tầng ửng là không gian sinh hoạt chung và tầng lầu 1 với 2 phòng ngủ master khá rộng và thoáng với khoảng đệm thông thoáng.

Mặt bằng tầng lầu 2 với 2 phòng ngủ master với không gian tiện nghi đầy đủ trong phòng, tầng lầu 3 là sân phơi và khu vực phòng thờ.

Nội thất nhà ống 4 tầng 4,5mx15m
Xu hướng kiến trúc hiện đại phù hợp với xu hướng gia đình trẻ. Những nhà phồ diện tích không quá lớn như 4×12, nhà phố 4×15 nhà phố 4×16 được phân bổ kiến trúc công năng hơi giống nhau, với diện tích dài hơn thì không gian sân và giếng trời sẽ được rộng thoáng hơn, còn về tính năng các phòng chính như phòng khách, không gian bếp và không gian phòng ngủ thường giống nhau.
Phòng khách – bếp
Nội thất không gian cho khá hiện đại và trẻ trung với chủ yếu vật liệu gỗ MDF chống ẩm, kính trang trí, giấy dán tường và tranh không thể thiếu.

Nội thất không gian phòng khách và phòng sinh hoạt chung tại tầng trệt


Nội thất không gian bếp bằng vật liệu gỗ tự nhiên kết hợp Acrylic An cường, kính màu trang trí. Tranh đá phong thủy làm cho không gian bếp thêm sinh động.

Nội thất không gian phòng khách trẻ trung hiện đại nhưng đơn giản và tinh tế với vật liệu ốp tường trang trí là vật liệu malamin An Cường, do nhân công Kiến Trúc Việt thi công trọn gói.
Phòng ngủ


Phòng ngủ master tại tầng lầu 1 với 2 view góc nhìn. Gói thi công nội thất khoảng 35 triệu trọn gói cho bộ Giường ngủ 1,8m, tủ kệ thi công theo mẫu và tủ quần áo kết hợp làm kho.

Phòng ngủ bé gái

Phòng ngủ bé gái với hai tồng màu trắng hồng chủ đạo theo màu yêu thích cô bé gái, không gian phòng ngủ cho bé khá rộng và đầy đủ tiền nghi cho không gian học tập và vui chơi ngay trong phòng bé. hệ thống tủ kệ kết hợp tủ sách, tủ quần áo và là khu vực làm kho đựng đồ chơi của bé.
Trọn gói thi công nội thất theo mẫu thiết kế là thế mạnh mà Kiến Trúc Việt được nhiều quý khách tin tưởng và lựa chọn. Chi tiết gói báo giá dịch vụ theo từng nhu cầu vui lòng xem chi tiết tại đây
…………………………………………………………………………………………………….
CÔNG TY TNHH MTV XD & TTNT KIẾN TRÚC VIỆT
Thiết kế Nhà Phố – Thầu Xây dựng – Thi công nội thất – Trang trí thiết kế văn phòng
Hotline: 0918 243 364 – 0914 243 364
Email: cuongarchi@yahoo.com.vn
www.kientrucviet.com.vn
XEM THÊM CÁC DỰ ÁN CỦA KIẾN TRÚC VIỆT
Mẫu nhà phố 4 tầng đẹp nhất
Nhà phố 4 tầng 8mx18m phong cách Bắc ÂU
Mẫu nhà phố 4 tầng 6mx25m có thang máy tại Bình Dương
Nhà phố 4 tầng ngang 4m phong cách tối giản
Nhà ống 4 tầng 4.5mx16m phong cách tân cổ điển
Mẫu nhà phố 4 tầng ngang 6m tại Thủ Đức
Mẫu nhà phố 4 tầng 5m×16m quận 3
Mẫu nhà phố 4 tầng 5mx16m quận 12
Mẫu nhà 4 tầng 7mx9m mái chéo cách điệu
Mẫu nhà phố 4 tầng 2 mặt tiền
Mặt bằng nhà phố 4 tầng 4mx16m
Mẫu nhà phố 4mx12m Bình Thạnh với 4 phòng ngủ
Mẫu nhà phố 4 tầng 4mx20m với 1,2 tỷ
Mẫu nhà 4 tầng mái ngói 4.5×16 quận 9
Nhà phố 4 tầng 100m2 5mx20m tại Bình Tân
Mẫu nhà 4 tầng 4mx15m Thủ Dầu Một
Thiết kế nhà thóp hậu 4 tầng chủ đầu tư anh Đức
Mẫu nhà phố 4 tầng 5mx20m
Nhà phố đẹp 4 tầng Bình Tân
Nhà phố 4 tầng 4.5×16 Tân Phú
Nhà phố 4 tầng 4×12 Thủ Đức
Nhà phố 4 tầng 4×14
Mẫu nhà phố 10mx16m 2 mặt tiền
Nhà phố 4 tầng 4mx14m
Mẫu nhà phố 4 tầng 5mx20m
Thiết kế nhà 4 tầng 5mx20m
Mẫu nhà ống 4 tầng ngang 4.5m dài 16m
Share:
















