
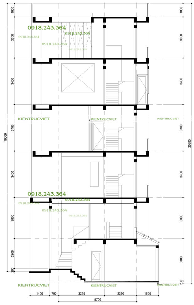
Mặt bằng bố trí kiến trúc tầng cho nhà phố hiện đại xây dựng 4 tầng kết hợp kinh doanh. Nhà mặt phố hiện đại 6mx8m

Nguyên tầng trệt được sử dụng cho tiện văn phòng tại gia. Không gian bếp và sinh hoạt chung được sử dụng từ tầng 2.
Mỗi khi đến một ngôi nhà mới xây nào đó, điều mà chúng tôi thường quan tâm không phải ngôi nhà đẹp hay xấu thế nào mà là suy nghĩ, cảm giác của Kiến trúc sư và chủ nhà đối với nó. Với tôi, một ngôi nhà khi hoàn thành đó là đem lại sự hài lòng và thích thú cho cả kiến trúc sư và chủ nhà, đó là một điều thành công nhất cho một công trình. Và tôi luôn thấy điều ấy qua các sản phẩm mà Kiến Trúc Việt mang đến khách hàng. Dù khách hàng ở xa hay gần thì Kiến Trúc Việt luôn cố gắng mang lại sự hài lòng tuyệt đối cho khách. Với công trình nhà phố cao tầng này là công trình của quý khách tại Quy Nhơn, Bình Định. Hiện tại công trình đang triển khai xây dựng và dự kiến hoàn thành sau 4 tháng khởi công.
Sau đây là một số nội thất cho Nhà 8mx6m, nhà phố 4 tầng kết hợp kinh doanh.

Không gian phòng văn phòng làm việc tại tầng trệt

View phòng làm việc với không gian giếng trời ở sân sau.

Quầy tiếp tân và phòng làm việc tại trệt

Tầng lửng cũng được bố trí phòng làm việc của giám đốc

Tầng lửng cũng được bố trí phòng làm việc của giám đốc
Với nhiều mẫu thiết kế mà chung tôi đưa ra có người thì bảo nhiều màu quá nhưng cũng vì điều đó mà nhiều người lại cảm thấy nó rất trẻ trung. các góc giếng trời ở sân sau và sân trước được trang trí vách đá và cây xanh, với những góc thư giản và lấy sáng gió cho không gian phòng làm việc và các phòng ngủ ở tầng trên. Điểm mạnh mà Kiến Trúc Việt mang đến nhà 8mx6m, 4 tầng này chính là công năng khá hợp lý, một trong những ưu điểm mà không ai có thể cãi được. Miếng đất có hình khá khó chiều về chiều dài quá ngăn 6m. Các không gian đều tận dụng tối đa không có không gian chết.

Phòng ngủ master tầng lầu 2

Phòng ngủ master tầng lầu 2

Phòng ngủ cho cô con gái của chị gia chủ tại tầng lầu 3

Phòng ngủ cho cô con gái của chị gia chủ tại tầng lầu 3.

Địa chỉ công trình: Quy Nhơn, Bình Định
Kiến Trúc Việt _ Khơi nguồn sáng tạo ngôi nhà bạn…
…………………………………………………………………………………………………….
CÔNG TY TNHH MTV XD & TTNT KIẾN TRÚC VIỆT
Thiết kế Nhà – Thầu Xây dựng – Thi công nội thất – Trang trí thiết kế văn phòng
Hotline: 0918 243 364 – 0914 243 364
Email: cuongarchi@yahoo.com
Share:
















