
Mẫu nhà phố tặng bạn tham khảo tại đây. https://kientrucviet.com.vn/blogs/nha-pho-mat-tien-4m
Mặt bằng bố trí không gian theo nhu cầu gia chủ kết hợp mặt bằng trệt cho thuê kinh doanh và các tầng lầu trên là ở cho nhà 4,5×15.

Mặt bằng trệt được chia làm hai không gian với một phần là cho thuê mặt bằng sảnh trước và một không gian bếp và sân sau để lấy gió thoáng cho không gian bếp. Tầng ửng là không gian sinh hoạt chung và tầng lầu 1 với 2 phòng ngủ master khá rộng và thoáng với khoảng đệm thông thoáng.

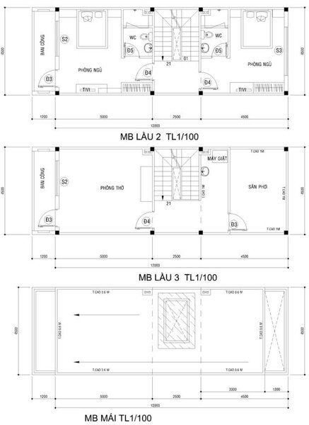
Mặt bằng tầng lầu 2 với 2 phòng ngủ master với không gian tiện nghi đầy đủ trong phòng, tầng lầu 3 là sân phơi và khu vực phòng thờ.

Xu hướng kiến trúc hiện đại phù hợp với xu hướng gia đình trẻ. Những nhà phồ diện tích không quá lớn như 4×12, nhà phố 4×15 nhà phố 4×16 được phân bổ kiến trúc công năng hơi giống nhau, với diện tích dài hơn thì không gian sân và giếng trời sẽ được rộng thoáng hơn, còn về tính năng các phòng chính như phòng khách, không gian bếp và không gian phòng ngủ thường giống nhau.
Nội thất không gian cho khá hiện đại và trẻ trung với chủ yếu vật liệu gỗ MDF chống ẩm, kính trang trí, giấy dán tường và tranh không thể thiếu.



Nội thất không gian bếp bằng vật liệu gỗ tự nhiên kết hợp Acrylic An cường, kính màu trang trí. Tranh đá phong thủy làm cho không gian bếp thêm sinh động.

Nội thất không gian phòng khách trẻ trung hiện đại nhưng đơn giản và tinh tế với vật liệu ốp tường trang trí là vật liệu malamin An Cường, do nhân công Kiến Trúc Việt thi công trọn gói.


Phòng ngủ master tại tầng lầu 1 với 2 view góc nhìn. Gói thi công nội thất khoảng 35 triệu trọn gói cho bộ Giường ngủ 1,8m, tủ kệ thi công theo mẫu và tủ quần áo kết hợp làm kho. Chi tiết xem bảng gái nội thất tại đây: https://kientrucviet.com.vn/blogs/thi-cong-noi-that

Phòng ngủ bé gái

Phòng ngủ bé gái với hai tồng màu trắng hồng chủ đạo theo màu yêu thích cô bé gái, không gian phòng ngủ cho bé khá rộng và đầy đủ tiền nghi cho không gian học tập và vui chơi ngay trong phòng bé. hệ thống tủ kệ kết hợp tủ sách, tủ quần áo và là khu vực làm kho đựng đồ chơi của bé.
Trọn gói thi công nội thất theo mẫu thiết kế là thế mạnh mà Kiến Trúc Việt được nhiều quý khách tin tưởng và lựa chọn. Chi tiết gói báo giá dịch vụ theo từng nhu cầu vui lòng xem chi tiết tại đây https://kientrucviet.com.vn/blogs/thi-cong-noi-that

Mẫu nhà phố đẹp 4,5×15 năm 2017
Team design Kiến Trúc Việt.
…………………………………………………………………………………………………….
CÔNG TY TNHH MTV XD & TTNT KIẾN TRÚC VIỆT
Thiết kế Nhà – Thầu Xây dựng – Thi công nội thất – Trang trí thiết kế văn phòng
Hotline: 0918 243 364 – 0914 243 364
Email: cuongarchi@yahoo.com.vn
www.kientrucviet.com.vn
Share:
















