
Thông tin công trình
Chủ đầu tư: Tại Dĩ An Bình Dương.
Quy mô xây dựng: DT 4m *13m, xây dựng 1 trệt 3 lầu.
Phương án bố trí kiến trúc mặt tiền 4m với phong cách đường nét cứng cáp hiện đại.
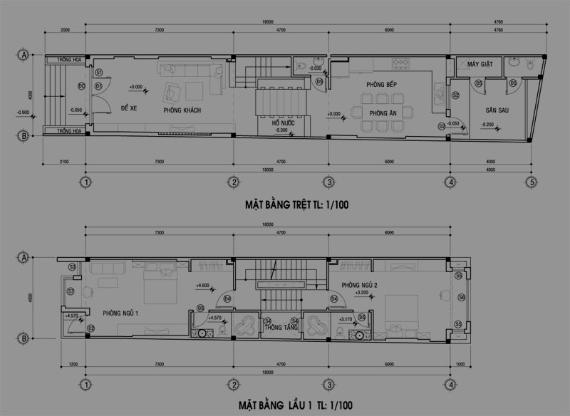
Mặt bằng bố trí nhà phố 3 tầng với kiến trúc lệch tầng
Bản chất nhà phố 4m với kiến trúc nhà lệch tầng là sự khác biệt về cao độ giữa các tấm sàn hoặc các không gian. Vì vậy, làm nhà cao tầng cần phụ thuộc vào nhiều yếu tố, chẳng hạn như tính chất sử dụng không gian, sở thích cá nhân, nhân khẩu trong gia đình, diện tích…
Có thể xuất phát từ sự cảm thấy đơn điệu trong những không gian nhà ống vốn đều và thẳng, nên người ta muốn thay đổi, nhất là khi điều kiện mặt bằng chật hẹp hoặc bị gò bó vào một khuôn khổ nhất định thì việc thay đổi các cao độ sẽ mang lại dáng vẻ lạ lẫm, mới mẻ cho không gian, đồng thời kèm theo nhiều ưu điểm khác. Nhà mặt tiền 4m với chiều dài 13m rất thích hợp cho việc bố trí không gian lệch tầng.

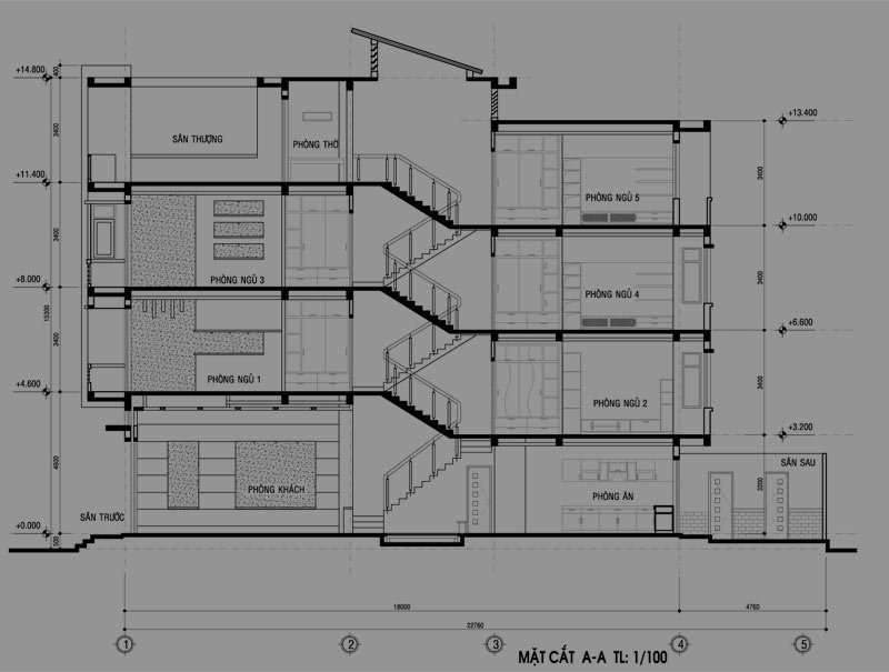
Tại không gian sàn tầng 1 được bố trí phòng khách và phòng ăn, các không gian sàn tầng trên được bố trị lệch nhau khoảng 5 bật cấp thang, tầng 2,3 được 4 trí làm 4 phòng ngủ và phòng chức năng. Phần phí thi công xây dựng thường nhà lệch tầng tốn về phí nhân công hơn và cần đội thợ cẩn thận tỉ mỹ.

Nội thất không gian hoàn thiện cho Thiết kế nhà phố 4m, nhà phố 4 tầng.





Team design Kiến Trúc Việt.
…………………………………………………………………………………………………….
CÔNG TY TNHH MTV XD & TTNT KIẾN TRÚC VIỆT
Thiết kế Nhà – Thầu Xây dựng – Thi công nội thất – Trang trí thiết kế văn phòng
Hotline: 0918 243 364 – 0914 243 364
Email: cuongarchi@yahoo.com.vn
www.kientrucviet.com.vn
XEM THÊM CÁC MẪU NHÀ 4M ĐẸP CỦA KIẾN TRÚC VIỆT
Mẫu nhà ống 4m
Nhà phố 4mx15m lệch tầng
Thiết kế nhà phố góc mặt tiền 4.6mx18m
Nhà phố 4mx11m 3 tầng
Kiến trúc nhà phố 4mx12m 48m2 4 phòng ngủ
Thiết kế nhà 4mx16m có lửng nhỏ xinh
Thiết kế nhà phố 4mx14m Cam Ranh
Thiết kế nhà phố 4mx12m Thủ Đức
Nhà phố mặt ngang 4m sau 16m 1 tỷ
Nhà phố 4mx16m 900 triệu
Nhà phố 4mx9m 4 tầng 900 triệu phần thô
Nhà phố 4m mặt phố 4 tầng hiện đại
Nhà phố 4×18 70m2 5 tầng quận Tân Phú
Nhà phố 4×14 3 tầng ở An Giang
Nhà phố mặt tiền 4mx13m 1 trệt 1 lầu Bình Dương
Nhà phố mặt tiền 4m lệch tầng 4 tầng quận Tân Phú
Nhà phố 4mx20m 1 trệt 1 lầu
Thiết kế nhà 4.5×16 nhà phố 3 tầng có gara oto
Thiết kế nhà 4.5mx16m 4 tầng Quy Nhơn
Share:
















