
Nhà phố, với chiều rộng mặt tiền nhỏ (thường dưới 5m) và chiều sâu lớn, là loại nhà rất phổ biến ở các đô thị Việt Nam. Do nhà phố thường chỉ tiếp xúc với bên ngoài qua một mặt hướng ra đường, nên mặt tiền nhà luôn được đặc biệt quan tâm. Bài viết này đề xuất một giải pháp tham khảo về thiết kế mặt tiền nhà phố như là một gợi ý.
NỘI DUNG TÓM TẮT
Thiết kế nhà phố cao tầng, nhà mặt phố 4m với quy mô xây dựng 1 trệt 1 lửng 3 lầu và 1 sân thượng.



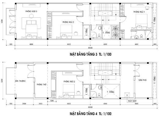
Thiết kế phân khu cho nhà phố 5 tầng, mặt tiền 4m

Không gian phòng sinh hoạt chung

Không gian phòng ngủ cho ông bà

Không gian phòng ngủ cho bố mẹ

Nội thất phòng ngủ cho bé trai.

Nội thất phòng ngủ cho bé trai.
02 Mẫu nhà cao tầng được quan tâm để bạn tham khảo

Kiến trúc nhà phố văn phòng kết hợp căn hộ cho thuê – Phương án 1 về phố cảnh mặt tiền cho nhà phố căn hộ cho thuê cao 6 tầng.

Kiến trúc nhà phố văn phòng kết hợp căn hộ cho thuê – Phương án 2 về phố cảnh mặt tiền cho nhà phố căn hộ cho thuê cao 6 tầng.
Với nhu cầu gia chủ cần kiến trúc mặt tiền phong phú mới mẻ và hiện đại, không đi theo phong cách cổ điển hiện đại. Kiến trúc nhà phố 6 lầu này đáp ứng nguyện vọng gia chủ về sự tinh tế, đa phong cách, tận dụng tối đa diện tích là không có ban công. Bảng nội thất cho từng không gian sẽ được Kiến Trúc Việt trình bày trong tháng 1.2018.
Với hơn 10 năm kinh nghiệp trong lĩnh vực thiết kế kiến trúc nhà phố/ kiến trúc văn phòng cao tầng/ Kiến trúc nhà phố kết hợp kinh doanh/ Kiến Trúc Biệt Thự… Mỗi sản phẩm đều được đầu tư khá nhiều về sự sáng tạo mới mẻ, ứng dụng các vật liệu mới trong ngành nội thất để mang đến cho gia chủ một sản phẩm hoàn hảo nhất và phù hợp với mong muốn của mình nhất.
Mọi tư vấn báo giá thiết kế và xây dựng vui lòng liên hệ
Gđ. KTS Võ Ngọc Cường 0918243364
Tp. Kinh doanh: Trần Trinh 0914243364
Email: cuongarchi@yahoo.com.vn & trinhmarketing10@gmail.com
Team design Kiến Trúc Việt.
…………………………………………………………………………………………………….
CÔNG TY TNHH MTV XD & TTNT KIẾN TRÚC VIỆT
Thiết kế Nhà – Thầu Xây dựng – Thi công nội thất – Trang trí thiết kế văn phòng
Hotline: 0918 243 364 – 0914 243 364
Email: cuongarchi@yahoo.com.vn
www.kientrucviet.com.vn
Share:















