Thiết kế kiến trúc cao ốc văn phòng 8 tầng, Quảng Bình
Công trình: Thiết kế kiến trúc cao ốc văn phòng
Địa chỉ; Quảng Bình
Hạng mục công trình; Thiết kế kiến trúc, thiết kế nội thất ngoại thất và nội thất

Kiến Trúc Việt – Khơi nguồn sáng tạo ngôi nhà bạn…
Thiết kế kiến trúc cao ốc văn phòng, khách sạn : Mang đến những ý tưởng thiết kế đầy sáng tạo, không chỉ phù hợp với môi trường Việt Nam mà còn cập nhật xu hướng thế giới. Cung cấp những giải pháp nhà ở đúng nhu cầu, thị hiếu và ngân sách của mỗi khách hàng. Kiến Trúc Cao ốc văn phòng hiện đại giải quyết các bài toán không gian cho thuê từng lĩnh vực và kết hợp không gian penhouse tầng thượng cho gia chủ. Tầng trệt được tậng dụng làm khu vực ẩm vực và coffce sân vườn, một không gian tuyệt vời để phục vụ khối văn phòng và khu dân cư lân cận.
Mặt bằng kiến trúc mặt tiền Thiết kế kiến trúc cao ốc văn phòng 8 tầng, Quảng Bình

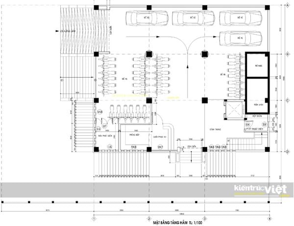
Mặt bằng hầm Thiết kế kiến trúc cao ốc văn phòng 8 tầng, Quảng Bình

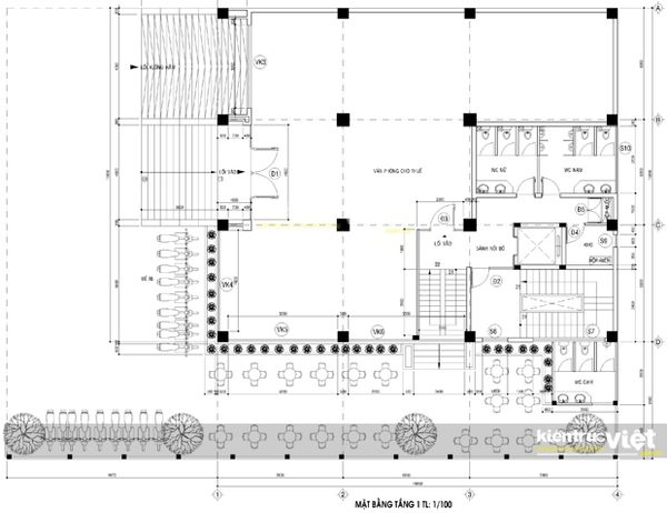
Mặt bằng trệt tầng sảnh chính- Thiết kế kiến trúc cao ốc văn phòng 8 tầng, Quảng Bình

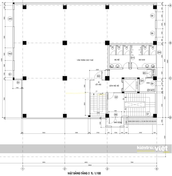
Mặt bằng tầng lầu 1 đến lầu 6 – Thiết kế kiến trúc cao ốc văn phòng 8 tầng, Quảng Bình


Mặt cắt Thiết kế kiến trúc cao ốc văn phòng 8 tầng, Quảng Bình
Thi công nội thất Căn hộ/ Nhà phố/ Biệt thự/ Văn phòng: Chúng tôi tin rằng mọi người đều có tổ ấm của riêng mình, một nơi để cảm nhận chính mình. Một ngôi nhà phù hợp với cá tính của bạn và gia đình, tạo ra một không gian dễ chịu và thoải mái. Một nơi tách biệt với thế giới bên ngoài, một nơi để thể hiện cá tính và sở thích của chủ nhân ngôi nhà. Sự ấm áp sẽ lan tỏa đến mọi người, dù khả năng kinh tế như thế nào. Đó là lý do tại sao chúng tôi muốn giúp bạn “Biến ngôi nhà thành tổ ấm”.


Thiết kế kiến trúc cao ốc văn phòng 8 tầng, Quảng Bình
Công trình: Thiết kế kiến trúc cao ốc văn phòng
Địa chỉ; Quảng Bình
Hạng mục công trình; Thiết kế kiến trúc, thiết kế nội thất ngoại thất và nội thất
Chủ đầu tư: A Bình
Tác giả: Công ty TNHH Xây dựng và TTNT Kiến Trúc Việt
Không gian kiến trúc thiết kế cao ốc văn phòng ngày nay đã thay đổi rất nhiều, sự xuất hiện của nhiều vật liệu khác nhau đã làm cho các kiến trúc sư có thêm sự lựa chọn để đưa vào bản thiết kế của mình. Tại các tòa nhà cao tầng, trung tâm thương mại, văn phòng, chung cư… thì vách kính mặt dựng là một giải pháp tối ưu để làm vách mặt dựng, vách kính mặt tiền của công trình.
…………………………………………………………………………………………..
CÔNG TY TNHH MTV XD & TTNT KIẾN TRÚC VIỆT
Thiết kế Nhà – Thầu Xây dựng – Thi công nội thất – Trang trí thiết kế văn phòng
VPGD: P602, Lô A1, Sunny Plaza, 110 a Phạm Văn Đồng, p3, GV, HCM
Xưởng thi công nội thất; 438/6 Nguyễn Văn Quá, Q12, HCM
Hotline: 0918 243 364 – 0914 243 364
Email: cuongarchi@yahoo.com.vn
www.kientrucviet.com.vn
Share:















