
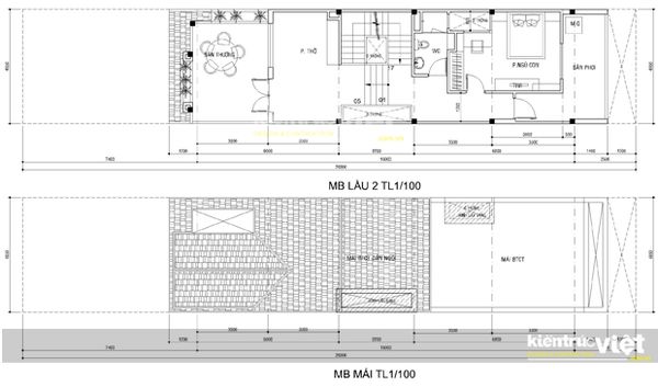
Kiến Trúc Việt gởi đến quý gia chủ công trình kiến trúc nhà phố hiện đại 7mx22m được thiết kế kiến trúc 1 trệt 1 lầu và 1 sân thượng. Không gian bố trí trệt với gara sân trước, phòng sinh hoạt, không gian liên thông bếp và phòng ăn. tầng lầu 1 và lầu 2 là không gian phòng ngủ master. Tầng sân thượng là phòng thờ , sân phơi và ban công ngoài trời khá rộng thoáng.
Chủ đầu tư; Anh Bằng, Quy Nhơn
Hạng mục thực hiện; Thiết kế kiến trúc nhà phố hiện đại
Chủ trì thiết kế: KTS. Võ Ngọc Cường – Triển Khai; KTS Thiện Nhân
Năm hoàn thành sự án: 2017
Mẫu nhà phố đẹp 2017 / mẫu nhà phố mặt tiền 5m/ mẫu nhà phố 2 lầu 1 sân thượng vui lòng xem thêm tại đây.



Thiết kế nhà phố đẹp 7m năm 2017
Kiến trúc Việt gởi đến quý gia chủ bộ sưu tập mẫu nhà phố mặt tiền 7m đẹp trong tháng 7.2017 vớ kiến trúc tư vấn thiết kế cho đất 7×22 xu hướng nhà phố vườn với diện tích xây dựng 7×22, kiến trúc nhà phố sân vườn không gian sân vườn bao quanh ngôi nhà kiến trúc hiện đại.

Kiến trúc nội thất không gian phòng ăn và bếp.

Nội thất phòng khách tầng trệt.

Nội thát không gian phòng khách tươi mới.



Phòng khách là không gian chính của ngôi nhà, là nơi sum họp của các thành viên trong gia đình, thể hiện gu thẩm mỹ và cá tính của gia chủ. Những mẫu phòng khách đẹp, tinh tế được Nhà Xinh thiết kế và sắp đặt sẽ mang đến cho bạn những ý tưởng để có một không gian như ý.
Thiết kế nhà phố 7×22, nhà phố vườn 3tầng, thiết kế nhà phố chữ L sân vườn.
Nét đẹp cho kiến trúc nhà phố này được nhân đôi qua sự đầu tư nội thất của gia chủ, một chủ nhà có gu thẩm mỹ có niềm đam mê trang hoàng sẽ làm cho một ngôi nhà có một sắc thái riêng, có cái hồn khác hẩn với công trình thiết kế trên bản vẽ. Sau đây là bảng phối nội thất cho Thiết kế nhà phố 7×22, nhà phố vườn 3 tầng, thiết kế nhà phố sân vườn.

Kiến Trúc Việt – Khơi nguồn sáng tạo ngôi nhà bạn…
Kiến Trúc nhà phố/ Biệt thự / Khách sạn mini : Mang đến những ý tưởng thiết kế đầy sáng tạo, không chỉ phù hợp với môi trường Việt Nam mà còn cập nhật xu hướng thế giới. Cung cấp những giải pháp nhà ở đúng nhu cầu, thị hiếu và ngân sách của mỗi khách hàng.
Xây dựng Nhà phố/ Biệt thự: Không ngừng tìm tòi nghiên cứu, đầu tư phát triển công nghệ và vật liệu mới phù hợp xu hướng than thiện với môi trường. Xây dựng đội ngũ nhân viên nhiệt huyết nhằm đem lại nhưng trải nghiệm tuyệt với nhất cho khách hàng.
Thi công nội thất Căn hộ/ Nhà phố/ Biệt thự/ Văn phòng: Chúng tôi tin rằng mọi người đều có tổ ấm của riêng mình, một nơi để cảm nhận chính mình. Một ngôi nhà phù hợp với cá tính của bạn và gia đình, tạo ra một không gian dễ chịu và thoải mái. Một nơi tách biệt với thế giới bên ngoài, một nơi để thể hiện cá tính và sở thích của chủ nhân ngôi nhà. Sự ấm áp sẽ lan tỏa đến mọi người, dù khả năng kinh tế như thế nào. Đó là lý do tại sao chúng tôi muốn giúp bạn “Biến ngôi nhà thành tổ ấm”.
…………………………………………………………………………………………..
CÔNG TY TNHH MTV XD & TTNT KIẾN TRÚC VIỆT
Thiết kế Nhà – Thầu Xây dựng – Thi công nội thất – Trang trí thiết kế văn phòng
VPGD: P602, Lô A1, Sunny Plaza, 110 a Phạm Văn Đồng, p3, GV, HCM
Xưởng thi công nội thất; 438/6 Nguyễn Văn Quá, Q12, HCM
Hotline: 0918 243 364 – 0914 243 364
Email: cuongarchi@yahoo.com.vn
www.kientrucviet.com.vn
Share:
















