
Dưới đây là mẫu nhà phố 4 tầng 5×18 cuốn hút với kiến trúc vòm cong, chinh phục người xem từ ngay cái nhìn đầu tiên với kiến trúc hiện đại thanh thoát đơn giản tinh tế từng đường nét cong uốn quanh những ô cửa được thể hiện từ ngoại thất và nội thất của tổng thể ngôi nhà 4 tầng ở Long Thành trên Quốc Lộ 51
NỘI DUNG TÓM TẮT
Thông tin dự án
VỊ TRÍ : Long Thành
Diện tích đất: Ngang 5m và dài 18m
Quy mô xây dựng: 1 trệt 3 lầu – Nhà 4 tầng
Dự trù tài chính xây dựng : 2 tỷ
Bản quyền thiết kế : www.kientrucviet.com.vn
Chủ trì thiết kế: CEO.KTS. Võ Ngọc Cường cùng Team design KTV

Mẫu nhà ống đẹp 4 tầng 5×18
Mẫu tiền nhà 5m với xây dựng nhà 4 tầng được thiết kế hiện đại, đảm bảo đầy đủ tiện nghi, đáp ứng đầy đủ công năng cho cả gia đình. Căn nhà cũng được phối màu sắc một cách hài hòa. Sự kết hợp một cách tinh tế giữa các khung màu tạo nên nét đẹp độc đáo, cá tính và hiện đại, sang trọng cho cả gia đình

Mỗi ngôn ngữ kiến trúc – từ đường thẳng cho đến đường cong hay cung vòm, đều có ý nghĩa và tạo ra cảm nhận không gian khác nhau. Nếu như bạn đã quá quen thuộc với những đường nét kiến trúc thông thường và muốn tìm đến những sáng tạo mới, Thì thiết kế kiến trúc vòm cong này chắc chắn sẽ truyền nhiều cảm hứng cho bạn. Những thiết kế vòm cong theo xu hướng 2022 này được thiết kế để vừa tạo thẩm mỹ, vừa đảm bảo công năng thiết thực cho ngôi nhà, cùng Kiến Trúc Việt xem qua chi tiết công trình mà chúng tôi đã hoàn thành cho gia chủ ở Long Thành, được làm việc từ xa với gia chủ trong mùa dịch Covid.

Kiến trúc nhà phố 5m với Vòm cong kết nối không gian
Những ô cửa lớn, ô cửa ban công và những vách ngăn hoặc tường ngăn dùng để ngăn chia hai không gian với mục đích sử dụng khác nhau là giải pháp thường thấy trong nội thất nhà ở. Nếu như đã chán với kiểu tường ngăn vuông vức thông thường, bạn có thể biến tấu với vòm cong như trong thiết kế vách ngăn này.

Kiến trúc vòm cong hai không gian chức năng khác nhau, sử dụng hai loại vật liệu tường khác nhau được ngăn chia bởi vòm cong khiến góc nhà trở nên mới mẻ và thú vị hơn. Không chỉ dùng vòm cong để tạo nên vách ngăn giữa các lối đi, thiết kế ở đây còn tạo hình ô cửa sổ cũng bằng ngôn ngữ vòm cong. Sự đồng bộ trong thiết kế và cách sử dụng vật liệu là yếu tố chính tạo nên vẻ đẹp cho không gian phòng bếp các bạn có thể thấy ở đây. Để lắp đặt ô cửa cho phù hợp với vòm cong đòi hỏi một chút khéo léo và đo đạc kĩ càng từ đơn vị thi công.

Vòm cong ở trong thiết kế ngoại thất mặt tiền hay cửa của các căn phòng đóng vai trò khá quan trọng, tạo thành điểm nhấn cho không gian. Căn phòng với công năng là nơi học tập, vui chơi cho trẻ em chắc chắn sẽ tạo ấn tượng tốt cho các bé với thiết kế mềm mại, thân thiện và đầy màu sắc như vậy.

Mẫu nhà mặt tiền 5m với thiết kế nhà ống 4 tầng được thiết kế theo phong cách hiện đại vòm cung với những ô cửa. Những hình khối đơn giản được sắp xếp một cách linh động, hài hòa, tạo nên điểm nhấn đặc trưng cho cả ngôi nhà.
Phong cách kiến trúc nhà phố 4 tầng 5×18 được thiết kế thoáng đãng, tạo cảm giác thoải mái cho cả căn nhà. Sử dụng cửa kính vòm cong một cách khéo léo giúp căn nhà có thể đón đầy đủ ánh sáng. Kiến trúc nhà 5×18 với 4 phòng ngủ của căn nhà được thiết kế rõ ràng, mạch lạc, cân đối tạo nên nét đẹp trang nhã cho cả căn nhà cao tầng này

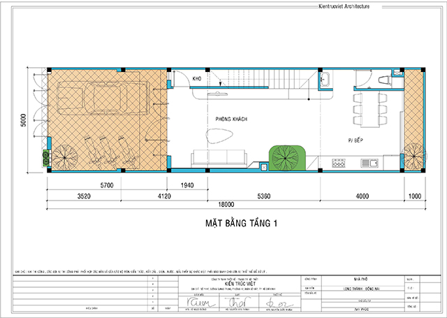
Bản vẽ chi tiết nhà ống 4 tầng 5×18 với 4 phòng ngủ
Thiết kế nhà phố 4 tầng với 4 phòng ngủ master đáp ứng đủ không gian cho gia đình với 3 thế hệ, Kiến trúc nhà phố vòm cong mang đến phong cách hiện đại, thoáng đãng. Kiến trúc của căn nhà có khả năng đáp ứng đầy đủ các yêu cầu về công năng cũng như tạo cảm giác thoải mái cho cả căn nhà. Nhà được thiết kế riêng biệt bởi phòng ngủ có cửa sổ, ban công nên có khả năng đón ánh sáng một cách hợp lý

Mặt bằng tầng trệt nhà 5×18 : với toàn bộ không gian là khoảng sân và gara nhà xe 5mx5m , nguyên khoảng không gian trống còn lại là phòng khách, nhà bếp và phòng ăn, khoảng giếngtrời giữa nhà ,và lối thang được bố trí tinh tế không mất diện tích không gian cho toàn bộ ngôi nhà

Mặt bằng tầng 2 và tầng 3 nhà ống 5×18: Được bố trí là không gian mỗi tầng là 2 phòng ngủ mater riêng với một không gian đệm bên ngoại khá tinh tế có thể tận dụng là không gian phòng chức năng cho cả gia đình.

Nội thất nhà ống đẹp 4 tầng 5×18
Nội thất nhà phố 4 tầng 5×18 này được Kiến trúc sư và nhóm thiết kế triển khai theo ý tưởng kiến trúc hiện đại làm những điều đơn giản và gọn gàng nhất cho khách hàng của mình Tinh tế dơn giản từng đường nét mang lại sự tối giản nhưng vẫn có nét trẻ trung và hiện đại theo xu hướng và đồ nội thất cũng được trang trí để mang đến sự phá cách nhẹ trong khuôn khổ của sự tinh tế hiện đại của gia chủ.

Phòng ngủ
4 Phòng ngủ master với trang trí không gian nhẹ nhàng, êm ả đầy yêu thương. Không gian bên trong và bên ngoài gần như không có khoảng cách tách biệt.

Phòng khách bếp
Nội thất phòng sinh hoạt chung tiếp khách của gia chủ bên trong như hòa nhịp với với sân vườn, cây cối và thiên nhiên


Không gian bếp và phòng ăn truyền thống với kiến trúc mở. Không gian mộc mạc, nhẹ nhàng và tràn ngập ánh sáng với hiên nhà chữ L. Thiết kế mở giúp không gian gắn kết với thiên nhiên nhiều nhất có thể. Không gian nào cũng có ánh sáng và cây xanh tươi mới, sinh động



Kiến Trúc Việt với thiết kế xanh là tổ ấm bình dị, yên ấm cho cả gia đình. Ngôi nhà chúng tôi luôn mang đến cho gia chủ chính là đem tới một gợi ý hay cho các gia chủ yêu thích cuộc sống gần gũi thiên nhiên mà vẫn riêng tư kín đáo. Tình cảm trong thiết kế được Kiến trúc sư thể hiện trong cách chăm chút tổ chức không gian một cách hợp lý, tổ chức không gian có nhấn nhá, tạo cao trào trong thiết kế. Chính điều đó tạo nên cảm xúc mạnh mẽ. Với hơn 12 năm học tập nhiều về kỹ năng tạo cảm xúc trong thiết kế, nó là cách xử lý hình khối, bỏ nhỏ sáng – tối, bãy nắng, bãy gió…một cách tinh tế. Trong thiết kế của Kiến trúc việt dù tôn thờ thiết kế kiến trúc hiện đại, nhưng kiến trúc sư vẫn luôn muốn bảo tồn giá trị văn hóa truyền thống. Ngẫm ra thiết kế không cần quá cao, chỉ cần thể hiện được cái đẹp của cảm xúc, tâm hồn của con người. Cái đẹp bên ngoài chỉ là chinh phục sự tò mò, còn cái đẹp nội thất bên trong mới có sức mạnh chinh phục và lữu giữ tình cảm.

…………………………………………………………………………………………………….
CÔNG TY TNHH MTV XD & TTNT KIẾN TRÚC VIỆT
Thiết kế Nhà Phố – Thầu Xây dựng – Thi công nội thất – Trang trí thiết kế văn phòng
Hotline: 0918 243 364 – 0914 243 364
Email: cuongarchi@yahoo.com.vn
www.kientrucviet.com.vn
XEM THÊM CÁC DỰ ÁN NHÀ PHỐ 4 TẦNG CỦA KIẾN TRÚC VIỆT
Những mẫu nhà ống 4 tầng đẹp
Nhà phố 4 tầng ngang 8m dài 18m
Nhà phố 4 tầng ngang 6m dài 25m
Nhà phố 4 tầng ngang 4m dài 14m phong cách tối giản
Nhà ống 4 tầng ngang 4.5m dài 16m
Mẫu nhà phố 4 tầng ngang 6m Thủ Đức
Nhà phố 4 tầng ngang 5m dài 16m quận 3
Nhà ống 4 tầng ngang 4.5m dài 15m
Mẫu nhà phố 4 tầng ngang 5m dài 16m quận 12
Mẫu nhà phố 4 tầng 2 mặt tiền
Mẫu nhà phố 4 tầng ngang 4m dài 16m
Mẫu nhà phố 4 tầng ngang 4m dài 12m Bình Thạnh
Mẫu nhà phố 4 tầng ngang 4m dài 20m
Mẫu nhà 4 tầng mái ngói ngang 4.5m dài 16m
Mẫu nhà phố 4 tầng 100m2 ngang 5m dài 20m
Mẫu thiết kế nhà thóp hậu 4 tầng
Mẫu nhà 4 tầng ngang 5m dài 20m Đắk Lắk
Mẫu nhà phố đẹp 4 tầng Bình Tân
Mẫu nhà phố 4 tầng ngang 4.5m dài 16m Tân Phú
Nhà phố 4 tầng ngang 4m dài 12m Thủ Đức
Mẫu nhà phố 4 tầng ngang 4m dài 14m quận 2
Mẫu nhà 4 tầng diện tích 36m2
Mẫu nhà 4 tầng ngang 10mx16m 2 mặt tiền
Mẫu kiến trúc nhà phố 4 tầng 5mx20m hiện đại
Mẫu nhà 4 tầng 5mx20m Hà Tĩnh
Mẫu nhà ống 4 tầng ngang 4.5m dài 16m
Nhà phố 4 tầng 5×18 kiến trúc vòm cong
Nhà 4 tầng vát chéo 30m2
Nhà phố 4 tầng 4mx15m
Share:
















