
Chủ đầu tư: Anh Thanh
Địa chỉ công trình: Thủ Đức, HCM
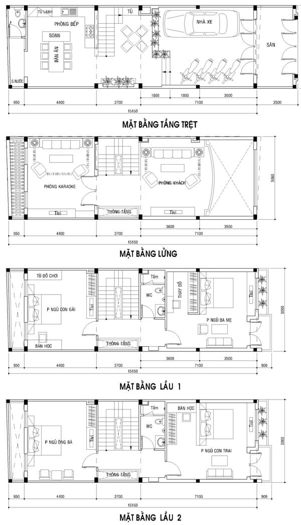
Quy mô xây dựng:nhà phố 5m với chiều dài 20m, xây dựng nhà phố 1 trệt 4 lầu.
Hạng mục thực hiện; Thiết kế kiến trúc, Xin phép xây dựng, Giám sát công trình.
Tác giả: Team design Kiến Trúc Việt


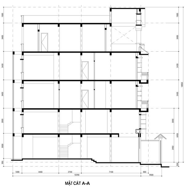
Sơ đồ mặt cắt cho thiết kế nhà mặt tiền 5m, nhà phố cao tầng, nhà phố 5 tầng
Ý tưởng thiết kế nhà mới có thể biến một ngôi nhà nếu không đơn giản thành một cái gì đó ngoạn mục, chẳng hạn như với thêm các tính năng mà có thể đã được phổ biến hơn ở những ngôi nhà cũ, giống như những huy chương trần và các đường gờ vương miện. Các tính năng như thêm vẻ đẹp và sự quan tâm đến những gì nếu không sẽ là không gian rất nhạt nhẽo. Một ý tưởng thông minh mà sử dụng không gian một cách khôn ngoan bao gồm tối đa hóa mỗi inch vuông có sẵn, chẳng hạn như trong các không gian thường bị lãng phí bên dưới cầu thang, mà có thể được thay đổi bằng trang bị kéo ra khỏi ngăn kéo. Điều này sẽ cung cấp không gian để lưu trữ quần áo, giày dép, và nhiều hơn nữa!

Thiết kế nhà, kiến trúc nội thất không gian phòng khách


Thiết kế nhà, kiến trúc nội thất không gian phòng ngủ

Thiết kế nhà, kiến trúc nội thất không gian phòng ngủ, nội thất tủ quần áo tách biệt riêng một không gian.

Thiết kế nhà, kiến trúc nội thất không gian phòng Bếp.

Thiết kế nhà, kiến trúc nội thất không gian phòng khách tại tầng trệt.

Thiết kế nhà, kiến trúc nội thất không gian phòng tắng với không gian tắm đứng

Thiết kế nhà, kiến trúc nội thất không gian phòng bé gái.

Thiết kế nhà, kiến trúc nội thất không gian phòng Bé trai
Team design Kiến Trúc Việt.
…………………………………………………………………………………………………….
CÔNG TY TNHH MTV XD & TTNT KIẾN TRÚC VIỆT
Thiết kế Nhà – Thầu Xây dựng – Thi công nội thất – Trang trí thiết kế văn phòng
Hotline: 0918 243 364 – 0914 243 364
Email: cuongarchi@yahoo.com.vn
www.kientrucviet.com.vn
Share:
















