
Thiết kế biệt thự phố với phong cách Tân cổ điển, mái ngói bánh ú, không gian thoáng 2 mặt tiền với diện tích sàn hơn 200m2. Kiến trúc bố trí không gian tùy thuộc vào chức năng mà mỗi không gian sẽ mang những đặc trưng riêng. Không gian nhà ở là nơi để mọi người nghỉ ngơi, thư giản, tái tạo năng lượng sau những giờ làm việc mệt mỏi. Không gian sinh hoạt chung và không gian phòng ngủ riêng cho từng thành viên được chăm chút kỹ lượng về công năng chung và riêng theo nhu cầu của gia chủ. Bạn chờ đợi gì ở một không gian ngủ hiện đại: một chiếc giường rộng với chiếc giường rộng với chăn ấm nệm êm, điều hòa luôn ở chế độ hợp lý nhất? Những góc ngồi đem lại sự thư giãn tuyệt đối? không gian rộng rãi, thoáng mát và các tiện nghi cao cấp để nâng giấc ngủ ngon? Tất cả đều được cân nhắc khi hoạch định kế hoạch cho phòng ngủ của mỗi cá nhân, bởi giấc ngủ ngon là sức khỏe, là lưu giữ thanh xuân lâu dài cho mỗi người.

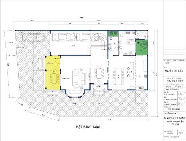
Thiết kế biệt thự phố 200m2, 1 trệt 2 lầu mái ngói bánh ú.Mặt bằng bố trí tầng trệt với không gian bố trí khá thông thoáng với 1 phòng sinh hoạt riêng, 1 phòng bếp, 1 phòng ăn master khá rộng lớn, và 1 phòng ngủ nhỏ.

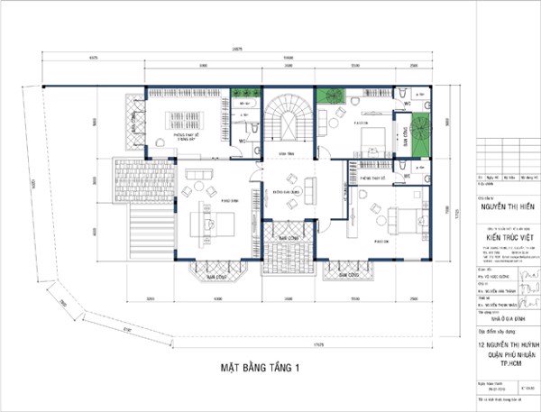
Thiết kế biệt thự phố 200m2, 1 trệt 2 lầu mái ngói bánh ú.Mặt bằng bố trí tầng tlầu 1 với 3 phòng ngủ, 1 phòng sinh hoạt chung và 1 phòng trưng bày dành cho cổ chủ hơn 30m2.

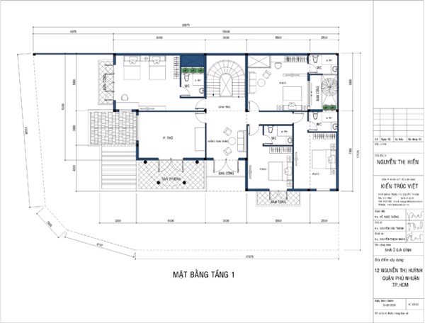
Thiết kế biệt thự phố 200m2, 1 trệt 2 lầu mái ngói bánh ú.Mặt bằng bố trí tầng lầu 2 với 4 phòng ngủ, 1 phòng thơ và 1 không gian sinh hoạt chung.
Với chủ đề Kiến Trúc Biệt Thự phong cách trẻ trung hiện đại và không kém phần snag trọng đẳng cấp. Cách bài trí không gian phòng ngủ, không gian sinh hoạt chung thích hợp với nhu cầu của gia chủ đều thể hiện được sự sang trọng đẳng cấp và thoáng cho mỗi không gian. Ngoài yếu tố về kiến trúc, Kiến Trúc Sư không quên tư vấn bố trí các không gian quan trọng đáp ứng các yếu tố về phong thủy, chuỗi công năng hợp lý, các lựa chọn đồ đạc phù hợp với từng phong cách kiến trúc – nội thất, những vật dụng hỗ trợ để có một giấc ngủ ngon.

Thiết kế biệt thự phố 200m2

Thiết kế biệt thự phố 200m2

Thiết kế biệt thự phố 200m2

Phòng sinh hoạt chung master tầng trệt.

Thiết kế biệt thự phố 200m2 – Phòng sinh hoạt chung tiếp khách tầng trệt.

Thiết kế biệt thự phố 200m2

Phòng ngủ master tầng lầu 1 – Thiết kế biệt thự phố 200m2

Thiết kế biệt thự phố 200m2 – Phòng ngủ ông bà lầu 1.

Thư viện trưng bày lầu 2.

Phòng ngủ ngủ master cổ điển.

Thiết kế biệt thự phố 200m2 -Góc nhỏ trưng bày trong phòng ngủ.

Thiết kế biệt thự phố 200m2 – Phòng sinh hoạt chung lầu 2.

Chủ đầu tư: Chị Hiền
Địa chỉ công trình: Nguyễn Văn Trỗi, Phú Nhuận.
Quy mô xây dựng: Biệt thực cao cấp 1 trệt 2 lầu mái ngói bánh ú.
Hạng mục thực hiện: Thiết kế kiến trúc/ Thiết kế nội thất/ Thiết kế triển khai hồ sơ xây dựng hoàn thiện
Năm hoàn thành: 4.2019
Với chủ trương kiến trúc hướng đến những thiết kế ấn tượng, chú trọng nhiều đến việc một công trình phải theo một phong cách này hay phong cách kia…. Nhưng bây giờ thì điều quan trọng hơn hết là chủ đầu tư họ sử dụng ngội nhà của họ như thế nào, họ có thực sự hạnh phúc trong không gian của họ hay không. Như vậy, đã có sự chuyển dịch từ việc thỏa mãn cái tôi của người thiết kế sang vấn đề bản chất về sự tồn tại của một công trình. Làm sao để ở đích đến, chủ đầu tư phải nhận được ngôi nhà của họ chừ không phải cái mà người thiết kế muốn.
Mục tiêu kế tiếp của Kiến Trúc Việt sẽ thử sức với những công trình cao tầng và tiếp tục tích lũy kinh nghiệm để hướng đến tới những dự án nhà phố/ biệt thự dân dụng cao cấp hiện đại nhất. Bên cạnh đó chúng tôi sẽ chú trọng hơn trong lĩnh vực đào tạo thế hệ trẻ.
……………………………………………………………………………………….
CÔNG TY TNHH MTV XD & TTNT KIẾN TRÚC VIỆT
Thiết kế Nhà – Thầu Xây dựng – Thi công nội thất – Trang trí thiết kế văn phòng
VPGD: P602, Lô A1, Sunny Plaza, 110 a Phạm Văn Đồng, p3, GV, HCM
Xưởng thi công nội thất; 438/6 Nguyễn Văn Quá, Q12, HCM
Hotline: 0918 243 364 – 0914 243 364
Email: cuongarchi@yahoo.com.vn
www.kientrucviet.com.vn
Share:
















