.
.
.

Bản vẽ chi tiết thiết kế biệt thự 200m2 với 2 mặt tiền, TP Thủ Đức

Thiết kế biệt thự 3 tầng với diện tích sàn từ 150m2 đến 200m2, lợi thế lô dất 2 mặt tiền với chiều ngang 9,5m và dài hơn 15m. Phong cách gia chủ hướng đến sự sang trọng trẻ trung và chan hòa với thiên nhiên. Không cầu kỳ trong kiến trúc thể hiện nhưng phải đạt được sự tinh tế và hiện đại, các không gian bên trong đều phải có ánh sáng tự nhiên và view ban công rộng cho các phòng đều có không gian mở tự nhiên. Và điều đặt ra của gia chủ cũng chính là mong muốn hướng đến của Kiến Trúc Việt.

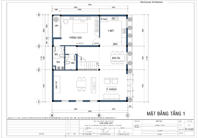
Bản vẽ chi tiết mặt bằng kiến trúc thiết kế nhà biệt thự 2 mặt tiền

Vì lô đất nằm trong đất đô thị không có khoản không để sân nhiều nên kiến trúc Biệt Thự đô thị sẽ khác với những biệt thự phố vườn về tính năng của khu sân vườn sẽ không chiếm nhiều diện tích. Với diện tich đất 150m2 ngang 9,5m và dài 16m tầng trệt Kiến Trúc Sư bố trí hai không gian thoáng cho phòng sinh hoạt chung và phòng ăn bếp. Một phòng ngủ tầng trệt cho quản gia và một khoản sân trước chữ L cặp với phòng khách và phòng ăn bếp. Tầng lầu 1 và lầu 2 với 2 phòng ngủ master nhà vệ sinh riêng, một phòng đa chức năng không gian mở và khoản sân ban công rộng. Những mảng tường được đan sen với những ô cửa kính và thanh lam sắt giả gỗ trang trí đang xen nhau ở mặt kiến trúc ngoại thất được tính toán về hướng nắng để tránh và có những vách tường cần thiết cho không gian phòng ngủ riêng tư cần phải có. Như bạn biết nếu kính làm vật liệu chính cho nhà phố thì khuyết điểm sẽ có rất nhiều và hạn chế nhiều công năng cho người sử dụng.

Bản vẽ phối cảnh mặt tiền kiến trúc thiết kế nhà biệt thự 2 mặt tiền với phong cách hiện đại

Mẫu thiết kế biệt thự chữ L cho sân vườn phù hợp với nhà 2 mặt tiền

Thiết kế và xây dựng cho Kiến Trúc Việt chủ trì và đảm nhiệm với gói thầu hơn 2 tỷ cho công tác hoàn thiện đảm bảo như bản thiết kế kiến trúc từ màu sơn cho đến các họa tiết trang trí

 

Dự án nằm trong khu dân cư cao cấp có chốt an ninh và bảo vệ 24/24 nên trong thiết kế phần cổng sẽ không có phần mái che lam bảo vệ hay cửa cuốn như các công trình nhà phố khác.

  • Chủ đầu tư/ Địa chỉ công trình: TP Thủ Dức
  • Hạng mục thực hiện: Gói thiết kế/ Gói xin phép xây dựng/ Gói thầu xây dựng phần thô và hoàn thiện, Vật tư hoàn thiện gia chủ đầu tư.
  • Bản quyền kiến trúc: www.kientrucviet.com.vn
  • Chủ trì thiết kế và team triển khai: KTS Võ Ngọc Cường/ KTS MInh Thuận/ Kỷ Sư Nhất Phong.
  • Chi phí xây dựng dự kiến: 2 tỷ
  • Năm thực hiện: 2020

Những mẫu biệt thự hiện đại mái ngói nhà 2 mặt tiền đẹp xuất sắc 2020

Thiết kế biệt thự 2 mặt tiền phong cách Bắc Âu 7,5mx15m với 6 phòng ngủ, Tân Bình

kientrucviet

Thiết kế biệt thự 3 lầu, mẫu nhà biệt thự 2 mặt tiền ở Hóc Môn

Kiến trúc biệt thự 2 mặt tiền 12mx14m , Bình Dương

Lâu đài trắng mái bánh ú, Mẫu biệt thự 2 mặt tiền 200m2, Phú Nhuận

Chủ đầu tư: Chị Hiền

Địa chỉ công trình: Nguyễn Văn Trỗi, Phú Nhuận.

Quy mô xây dựng: Biệt thực cao cấp 1 trệt 2 lầu mái ngói bánh ú.

Hạng mục thực hiện: Thiết kế kiến trúc/ Thiết kế nội thất/ Thiết kế triển khai hồ sơ xây dựng hoàn thiện

Năm hoàn thành: 4.2019

Với chủ trương kiến trúc hướng  đến những thiết kế ấn tượng, chú trọng nhiều đến việc một công trình phải theo một phong cách này hay phong cách kia…. Nhưng bây giờ thì điều quan trọng hơn hết là chủ đầu tư họ sử dụng ngội nhà của họ như thế nào, họ có thực sự hạnh phúc trong không gian của họ hay không. Như vậy, đã có sự chuyển dịch từ việc thỏa mãn cái tôi của người thiết kế sang vấn đề bản chất về sự tồn tại của một công trình. Làm sao để ở đích đến, chủ đầu tư phải nhận được ngôi nhà của họ chừ không phải cái mà người thiết kế muốn.

Mục tiêu kế tiếp của Kiến Trúc Việt sẽ thử sức với những công trình cao tầng và tiếp tục tích lũy kinh nghiệm  để hướng đến tới những dự án nhà phố/ biệt thự dân dụng cao cấp hiện đại nhất. Bên cạnh đó chúng tôi sẽ chú trọng hơn trong lĩnh vực đào tạo thế hệ trẻ.

……………………………………………………………………………………….

CÔNG TY TNHH MTV XD & TTNT KIẾN TRÚC VIỆT

Thiết kế Nhà – Thầu Xây dựng – Thi công nội thất – Trang trí thiết kế văn phòng

VPGD: P602, Lô A1, Sunny Plaza, 110 a Phạm Văn Đồng, p3, GV, HCM

Xưởng thi công nội thất; 438/6 Nguyễn Văn Quá, Q12, HCM

Hotline: 0918 243 364 – 0914 243 364

Email: cuongarchi@yahoo.com.vn

www.kientrucviet.com.vn

 

Click to rate this post!
[Total: 1 Average: 5]

Share:

Để lại một bình luận

Email của bạn sẽ không được hiển thị công khai. Các trường bắt buộc được đánh dấu *