
Kiến trúc biệt thự sang trọng đẳng cấp qua đường nét trạm khắc mặt tiền tạo nên một công trình uy nguy sang trọng. Biệt thự 3 lầu mái ngói với hai mặt tiền nhà này được kiến tạo bởi đội ngũ kiến trúc sư Kiến Trúc Việt. Với diện tích hơn 500m2, gia chủ chỉ sử dụng 40% diện tích cho không gian ở và 60% diện tích là không gian xanhbao phủ quanh ngôi biệt thự, tạo nơi một không gian sống thanh bình và tao nhã.

Cửa chính và cửa phụ được nhận định qua không gian sảnh và bề mặt thềm. Với sảnh chính độ cửa và thềm khá rộng và thoáng, chiều cao trệt gần 4,5m, tạo nên một kiến trúc biệt thự sang trọng và cao cấp. Đường nét trạm khắc khá công phu, và hệ thống cửa gỗ, bông sắt mỹ thuật cũng được chăm sóc từng chi tiết nhỏ sao cho phù hợp với tổng quan, theo kịp xu hướng thời đại và phù hợp với mỹ thuật kiến trúc.

View nhìn từ mặt bên hông – biệt thự 3 lầu mái ngói cổ diển

Biệt thự 3 lầu mái ngói cổ diển – Màu sắc nhà được phối theo màu bổn mạng gia chủ và màu ngói cũng được kiến trúc sư tư vấn lựa chọn khá chỉnh chu về sự hài hòa màu sắc tổng quan. Sự uy nguy của kiến trúc biệt thự cao cấp sang trọng thường được thể hiện ở phần mặt tiền chính là kiến trúc cổng, lối vào nhà chính và kiến trúc mái của biệt thự. Hai yếu tố này khá quan trọng vì chiếm 80% nét đẹp của công trình kiến trúc Biệt Thự mái ngói. Sự tỷ mỹ của điêu khắc chạm trổ, phá cách trong kiến trúc mái che sẽ tạo nên vẽ đẹp hoàn mỹ cho công trình.

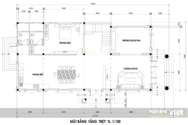
Mặt bằng bố trí tầng trệt cho biệt thự 3 lầu mái ngói cổ diển 10mx20m. Với nhu cầu gia chủ là 1 phòng ngủ, 1 phòng khách và 1 không gian bếp, với 3 view nhà đều có lối vào từ sân vườn.

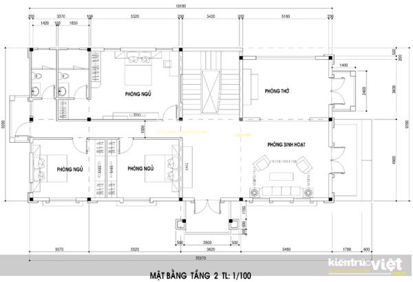
Mặt bằng kiến trúc tầng 2( lầu 1) – biệt thự 3 lầu mái ngói cổ diển 10mx20m – Với không gian chính là 3 phòng ngủ, 1 phòng sinh hoạt chung và 1 phòng thờ. các không gian riêng đều khá rộng và thoáng, vì sở hữu không gian đất khá rộng nên các view phòng ngủ trên lầu đều có ban công và view nhìn xuống sân vườn thơ mộng.

Mặt bằng mái – biệt thự 3 lầu mái ngói cổ diển

Sảnh đón khách trung tâm – Biệt thự 2 tầng cổ điển mái ngói, 10mx20m Củ Chi

Tinh tế và sang trọng

Phòng sinh hoạt chung trên lầu 1

Phòng ngủ 1 – lầu 1

Phòng ngủ 1 – lầu 1 – View 2

Phòng ngủ 1 – lầu 1 – View 3

Tổng quan bản vẽ kiến trúc 3D chúng tôi không thể chia sẽ hết trên web nên quý khách thông cảm. Với sự cảm nhận mỹ thuật qua khối mặt tiền và chi tiết nội thất không gian phòng ngủ, Kiến TRúc Việt tin tưởng sẽ là nhà tư vấn kiến trúc có thể đảm ứng mọi nhu cầu của gia chủ.
Công trình: Thiết kế nhà biệt thự 10×20 phong cách cổ điển sang trọng
Địa chỉ: Củ Chi
Hạng mục công trình; Thiết kế kiến trúc, thiết kế nội thất ngoại thất và nội thất
Chủ đầu tư: A Lâm Thành
Tác giả: Công ty TNHH Xây dựng và TTNT Kiến Trúc Việt
Không gian kiến trúc thiết kế nhà ở kết hợp văn phòng ngày nay đã thay đổi rất nhiều, sự xuất hiện của nhiều vật liệu khác nhau đã làm cho các kiến trúc sư có thêm sự lựa chọn để đưa vào bản thiết kế của mình. Tại các tòa nhà cao tầng, trung tâm thương mại, văn phòng, chung cư… thì vách kính mặt dựng là một giải pháp tối ưu để làm vách mặt dựng, vách kính mặt tiền của công trình.
…………………………………………………………………………………………..
CÔNG TY TNHH MTV XD & TTNT KIẾN TRÚC VIỆT
Thiết kế Nhà – Thầu Xây dựng – Thi công nội thất – Trang trí thiết kế văn phòng
VPGD: P602, Lô A1, Sunny Plaza, 110 a Phạm Văn Đồng, p3, GV, HCM
Xưởng thi công nội thất; 438/6 Nguyễn Văn Quá, Q12, HCM
Hotline: 0918 243 364 – 0914 243 364
Email: cuongarchi@yahoo.com.vn
www.kientrucviet.com.vn
Share:
















