
Ngày 31.03.2020 Cập nhật tiến độ thi công xây dựng nhã,5tầng diện tích sàn 100m2.
Chủ đầu tư: Chú Bằng
Địa chỉ công trình: An Phú, Quận 2, HCM
Diện tích sàn: 5×20, xây dựng 1 hầm 1 trệt 3 lầu 1 sân thượng
Năm xây dựng : 2020
Chủ trì thiết kế và xây dựng: Kiến Trúc Việt

Mặt bằng thiết kế kiến trúc sơ bộ tầng trệt, lầu 1 và tầng hầm diện tích nhà 5×20

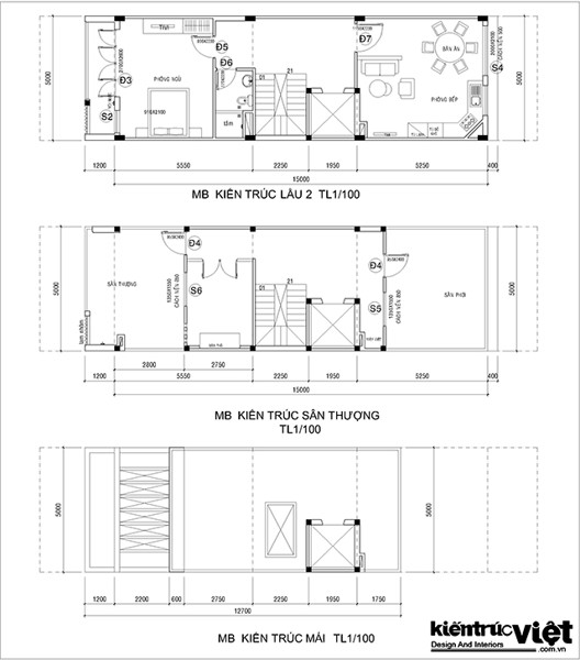
Mặt bằng kiến trúc nhà phố 5 tầng 5×20, mặt bằng lầu 2, lầu 3 và sân thượng

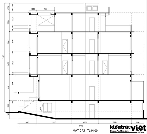
Mặt cắt nhà phố 4,5 tầng với quy mô thiết kế và xây dựng 1 hầm 1 trệt 3 lầu và 1 sân thượng.

Thi công xây dựng nhà 5 tầng chú Bằng Quận 2, Thời gian xây dựng và hoàn thiện 5 tháng với dự toán hoàn thành nhà 3 tỷ

Nhà phố ngang 5m và dài 20m, với diện tích xây dựng gần 400m2.

Hình ảnh cập nhật xây dựng hoàn thành sàn móng

Cập nhật hình ảnh xây dựng nhà phố 5 tầng nhà chú Bằng , An Phú, Quận 2.

Kết cấu sàn, cột đều đượckiến trúc sư và Kỹ sư theo sát công trình và được tính toán rất cẩn trọng đảm bảo đủ và an toàn theo quy định.

Cập nhật thi công xây dựng tháng 3. 2020

Chủ đầu tư: Chú Bằng
Địa chỉ công trình: An Phú, Quận 2, HCM
Diện tích sàn: 5×20, xây dựng 1 hầm 1 trệt 3 lầu 1 sân thượng
Năm xây dựng : 2020
Chủ trì thiết kế và xây dựng: Kiến Trúc Việt
Thầu thi công xây dựng 2020
Chúng tôi khuyến khích qúy khách nên chọn gói thầu thô để quý khách có thể linh động trong vấn đề lựa chọn vật liệu hoàn theo theo sở thích và khả năng tài chính của mình.
Tư vấn sản xuất Nội Thất
Đến với chúng tôi quý khách sẽ thực sự cảm thấy hài lòng không chỉ về chất lượng sản phẩm cung cấp mà còn các dịch vụ của chúng tôi dành cho khách hàng, quý khách sẽ nhận được nhiều hơn những gì mà quý khách phải bỏ ra.
Kiến Trúc Việt luôn cố gắng xây dựng đội ngũ nhân viên, kỹ sư, kiến trúc sư năng động, nhiệt tình, giỏi chuyên môn, giàu kinh nghiệm nhằm mục tiêu cung cấp các sản phẩm và dịch vụ tối ưu, hiệu quả. Sự hài lòng của quý khách đi đôi với sự tồn tại và phát triển của Kiến Trúc Việt.
Kiến Trúc Việt “Khơi nguồn sáng tạo ngôi nhà bạn”

Team design Kiến Trúc Việt.
…………………………………………………………………………………………………….
CÔNG TY TNHH MTV XD & TTNT KIẾN TRÚC VIỆT
Thiết kế Nhà – Thầu Xây dựng – Thi công nội thất – Trang trí thiết kế văn phòng
Hotline: 0918 243 364 – 0914 243 364
Email: cuongarchi@yahoo.com.vn
Share:















