
Triết lý thiết kế biệt thự là phải chú ý đến từng chi tiết mặt tiền cho đến chi tiết kiến trúc nội thất bên trong sao cho thật sự hài hòa. Để tạo một dự án nhà ở thoải mái và đáp ứng được yêu cầu của từng gia chủ khác nhau.Những thông tin cơ bản trong buổi gặp làm việc đầu tiên rất quan trọng vì nó sẽ giúp cho Kiến trúc sư hiểu hơn gu thẩm mỹ cũng như nhu cầu của từng thành viên trong một căn nhà, tập hợp những giấc mơ và tầm nhìn một khách hàng đã có và để cung cấp một khách hàng một không gian mà miêu tả biểu hiện của riêng cá nhân của họ. Mục tiêu của Kiến Trúc Việt là tạo ra không gian đẹp mà làm cho khách hàng của chúng tôi hạnh phúc và hài lòng sau khi nhận bản thiết kế từ chúng tôi.
Diện tích nhà nhìn vào thực tế bạn sẽ thấy hơi bị ngắn, nhưng qua Kiến trúc Việt bạn sẽ cảm nhận một không gian hoàn toàn khác. Đây là mẫu mặt tiền khách hàng đã chọn và triển khai thi công

Cuộc sống ngọt ngào được thể hiện qua những đường nét trang trí mỹ thuật cho đến việt bố trí nội thất sao cho hài hòa với không gian. Bất cứ điều gì từ đồ nội thất tùy chỉnh để ánh sáng độc đáo – chúng ta có thể giúp kéo không gian của bạn với nhau. Với các Phụ kiện trang trí như hoa, cây xanh có thể tạo thêm không gian thêm tươi mới và tạo một sức sống thanh nhàn cho cuộc sống chốn đô thị như Sài Gòn. Hãy để Kiến Trúc Việt giúp bạn cá nhân hoá không gian của bạn.

Mặt bằng bố trí tầng trệt với 1 phòng khách, 1 gara oto và không gian Bếp và phòng ăn được chuyển lên tầng lửng. Tầng lầu 1 và lầu 2 với 2 phòng ngủ và 2 wc riêng biệt cho mỗi phòng.

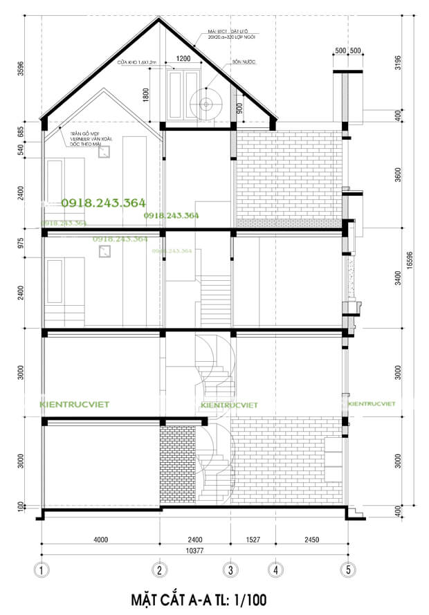
Mặt cắt Biệt thự 2 mặt tiền 6m với 1 trệt 1 lửng và 1 lầu.
Dịch vụ Kiến Trúc Việt Decor cung cấp một loạt các dịch vụ thiết kế, từ việc giúp thiết kế Kiến trúc và thầu xây dựng cho toàn bộ một ngôi nhà.
Sau đây là những dịch vụ mà chúng tôi cung cấp:
• Phác thảo khái niệm
• Kế hoạch Tầng
• Quy hoạch không gian
• Bố cục chiếu sáng
• Tư vấn lựa chọn sơn
• Tư vấn lựa chọn nội thất
• Nhà bếp thiết kế, bố trí và phác thảo
…….

Phối không gian trệt và lửng.

Không gian phòng khách với thông tầng với tầng lửng.

Không gian phòng ăn và bếp tại tầng lửng.

Không gian 3D tổng quan cho không gian trệt và lửng với góc dưới gầm thang sinh động.

Cuộc sống hiện đại thì thoảng làm ta cảm thấy bị gò bó. Chúng ta luôn mong mỏi tìm ra một cuộc sống giản dị hơn. Gần gũi với thiên nhiên, tự do là chính mình và tạm ngừng các kết nối xã hội. Thiên nhiên tượng trưng cho những gì to lớn khó đoán biết. Nó có thể tĩnh lặng và nhẹ nhàng nhưng đồng thời có thể ồn ào và hoang dã. Những biến đổi của thiên nhiên vừa làm ta vừa kính trọng vừa sợ hãi. Qua điều này chúng tôi nhận thấy một xu hướng mới của những cá nhân muốn đặc bản thân trước những thách thức để thật sự tìm ra và thấu hiểu mong muốn của bản thân

Chủ đầu tư: Chị Hạnh – Thanh Hóa
Quy mô xây dựng:nhà phố 4m với chiều dài 20m, xây dựng nhà phố 1 trệt 3 lầu.
Hạng mục thực hiện; Thiết kế kiến trúc – Tư vấn chọn vật liệu hoàn thiện
Tác giả: Team design Kiến Trúc Việt

Nội thất phòng ngủ 20m2

Nội thất phòng ngủ 16m2 với tolet trong phòng

Phòng tắm với bồm tắm nằm

Cổng rào
Hai màu sắc chủ đạo là trắng và vàng sáng được chọn, để vừa phù hợp với mạng Kim của hai vợ chồng chủ tiệm bánh mang tên Hoàng Mai và cũng trùng hợp với sắc màu của hoa mai miền Nam tươi thắm – quả là “nhất cử lưỡng tiện”! Nhưng ngôi nhà sẽ trọn vẹn ý nghĩa hơn, nếu như các tác giả thiết kế đưa được “nét Bình Dương” vào bên trong nhà, thay vì chỉ dừng lại ở việc xử lý mặt đứng phía trước.
Tham khảo mẫu biệt thự cao tầng 2 mặt tiền – Biệt thự mặt tiền 8m – Biệt thự phố hai mặt tiền.

…………………………………………………………………………………………………….
CÔNG TY TNHH MTV XD & TTNT KIẾN TRÚC VIỆT
Thiết kế Nhà – Thầu Xây dựng – Thi công nội thất – Trang trí thiết kế văn phòng
Hotline: 0918 243 364 – 0914 243 364
Email: cuongarchi@yahoo.com.vn
www.kientrucviet.com.vn
Share:
















