
Phối cảnh kiến trúc mặt tiền nhà phố 2 tầng với tầng trệt kinh doanh
Để bố trí không gian hoàn hảo, KTS phải tham khảo tuổi tác của gia chủ kết hợp với phong thủy kiến trúc cơ bản để có thể tạo một không gian sống hoàn hảo nhất. Chủ đề này đã trở nên rất phổ biến. Phong thủy là một phương pháp của Trung Quốc xây dựng nhà ở theo các yếu tố như: vi khí hậu và ánh sáng mặt trời. Khái niệm này của Trung Quốc đã trở thành một phần không thể thiếu trong thiết kế nội thất để phát huy tác dụng hài hòa trên người chiếm nhà.

Biệt thự 1 tầng, Biệt Thự 7m – Không gian phòng sinh hoạt khá rộng với mảng tường trang trí khá ấn tượng.

Không gian phòng sinh hoạt là phòng chính tại tầng trệt của Biệt Thự 1 tầng này với cầu thang uốn lượn khá ấn tượng, không gian chết dưới gầm thang được trang trí thành một hồ non bộ khô.

Phòng thư giản tại góc đệm của tầng 1. Biệt thự 1 tầng, Biệt Thự 7m
Biệt thự phố hiện đại có nhiều phòng với mỗi chức năng chuyên biệt, tức là phòng khách, ăn, phòng ngủ, và nếu vệ sinh và rửa các khu vực có thể là tốt. Các kỹ thuật xây dựng căn nhà hiện đại đang sử dụng một trình xây dựng đó là ánh sáng khung. Các ví dụ của một số các kiến trúc hiện đại, tráng lệ như sau:
Thiết kế kiến trúc biệt thự phố hiện đại với kiến trúc biệt thự nhà phố 1 trệt 1 lầu với các khu vực sinh sống chủ yếu phòng khách, phòng ăn và nhà bếp, nằm đối diện với màu xanh lá cây tự nhiên. Trong ngôi nhà hiện đại, khái niệm tầng mở cho một tầm nhìn không bị ngăn cấm và phổ biến rộng rãi của ngoài trời từ bất kỳ góc độ trong khu vực sinh sống chủ yếu, mà làm cho nó rất chức năng và gần gũi với thiên nhiên. Thm khảo bộ sưu tập kiến trúc Biệt Thự 1 tầng


Giếng trời cũng là nơi thư giản tại tầng 1- Biệt thự 1 tầng, Biệt Thự 7m
Với lối sống hiện đại việc lựa chọn chuẩn loại vật tư thi công xây dựng phải được đầu tư chọn lựa thông minh không chỉ để tiết kiệm chi phí mà còn tăng thẩm mỹ theo phong cách sống hiện đại. . Vật liệu đúc sẵn được sử dụng để cho những ngôi nhà có thể được xây dựng trên sàn bê tông của nó trong nhà. Ngôi nhà hiện đại có mái nhà đặc trưng quang điện để bảng điều khiển cung cấp năng lượng, đó là bền vững. Nội thất bằng thép của ngôi nhà duy trì nhiệt độ trong nhiệt của mùa hè và mùa đông lạnh do đó việc giữ được sự cân bằng.

Nội thất phòng ngủ 2 dành cho 2 con tại tầng 1 của biệt thự phố 1 tầng

Nội thất phòng ngủ 2 dành cho bố mẹ con tại tầng 1 của biệt thự phố 1 tầng
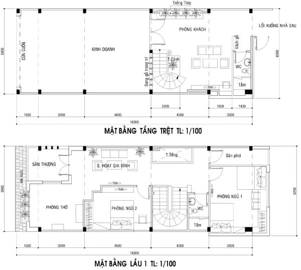
Mặt bằng bố trí kiến trúc sơ bộ nhà phố 2 tầng mái ngói diện tích 7×18


Tham khảo bộ sưu tập biệt thự 2 tầng.
Team design Kiến Trúc Việt.
…………………………………………………………………………………………………….
CÔNG TY TNHH MTV XD & TTNT KIẾN TRÚC VIỆT
Thiết kế Nhà – Thầu Xây dựng – Thi công nội thất – Trang trí thiết kế văn phòng
Hotline: 0918 243 364 – 0914 243 364
Email: cuongarchi@yahoo.com.vn
www.kientrucviet.com.vn
Share:
















