
ặt bằng thiết kế cơ bản nhà phố 4m 3 lầu:

Mặt bằng tầng trệt với 1 phòng khách và 1 bếp, tầng lầu 1 hai phòng ngủ master với tolet riêng.

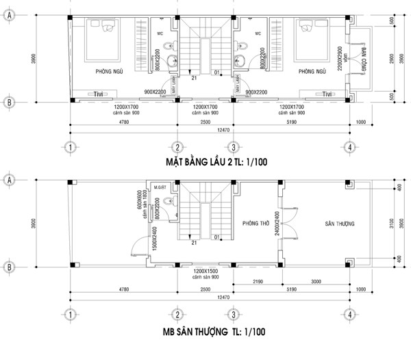
Mặt bằng tầng lầu 2 cũng được bố trí 2 phòng ngủ master và 2 không gian tolet riêng như tầng 1, Tầng thượng là sân phơi và khu vực phòng thờ.

Nội thất không gian phòng khách

Nội thất phòng bếp và ăn cho nhà phố 4m

Không gian bếp tinh khôi, trẻ trung cho nhà phố 4m

Sảnh phòng khách tầng trệt – Xây dựng nhà phố 3 lầu, Thủ Đức

Sảnh phòng khách tầng trệt – Xây dựng nhà phố 3 lầu, Thủ Đức

Nội thất không gian phòng ngủ master – Xây dựng nhà phố 3 lầu, Thủ Đức

Nội thất không gian phòng ngủ master – Xây dựng nhà phố 3 lầu, Thủ Đức

Nội thất không gian phòng ngủ master – Xây dựng nhà phố 3 lầu, Thủ Đức

Không gian phòng tắm
Hình ảnh cập nhật công trình thực tế đã hoàn thiện phần xây dựng thô:

Hoàn thiện phần thô xây dựng – Xây dựng nhà phố 3 lầu, Thủ Đức

Xây dựng nhà phố 3 lầu, Thủ Đức

Công tác xây dựng hoàn thiện chỉ tường trang trí.

HẠNG MỤC THI CÔNG:
I . Hạng mục Nhà Thầu cung cấp cả Nhân công và Vật Tư:
1. Đào móng, xử lý nền, thi công cốt pha, cốt thép, đổ bê tông móng từ đầu cọc ép/ cọc khoan nhồi trở lên.
2. Xây công trình ngầm như: bể tự hoại, bể nước ngầm, hố ga
3. Thi công cốt pha, cốt thé p, đổ bê tông đà giằng, đà kiềng, dầm, cột, sàn.. tất cả các tầng, sân thượng và mái. Lợp mái ngói (nếu có).
4. Xây và tô trát đúng tiêu chuẩn tất cả các tường bao che, tường ngăn phòng, hộp gen kỹ thuật bằng gạch ống
5. Thi công cốt pha, cốt thép, đổ bê tông bản cầu thang theo thiết kế và xây bậc thang bằng gạch thẻ
6. Thi công lắp đặt hệ thống ống luồn hộp đấu nối cho dây điện, dây điện thoại, dây internet, cáp truyền hình âm tường (Không bao gồm mạng Lan cho văn phòng, hệ thống chống sét, hệ thống ống đồng cho máy lạnh, hệ thống điện 03 pha).
7. Thi công lắp đặt hệ thống cấp thoát nước nguội âm tường (Không bao gồm hệ thống ống nước nóng năng lượng mặt trời).
Địa điểm: Dự án nhà phố dân dụng, Quang Trung, Gò Vấp, HCM
Thời gian: 2017
Khách hàng: Cô bảy
Hạng mục thi công: Thiết kế và thi công xây dựng hoàn thiện nội thất
Đơn vị thi công; Kiến Trúc Việt chủ trì thiết kế và thầu xây dựng

Kiến Trúc Việt.
…………………………………………………………………………………………………….
CÔNG TY TNHH MTV XD & TTNT KIẾN TRÚC VIỆT
Thiết kế Nhà – Thầu Xây dựng – Thi công nội thất – Trang trí thiết kế văn phòng
Hotline: 0918 243 364 – 0914 243 364
Email: cuongarchi@yahoo.com.vn
www.kientrucviet.com.vn
Share:















