
Hình ảnh thực tế tại công trình nhà phố 1 trệt 1 lửng 1 lầu và 1 sân thượng. Với tổng diện tích sàn lên đến 200m2, với ngân sách xây dựng theo dự toán là 900 triệu cho hoàn thiện thô và hoàn thiện nội thất cơ bản.

Phối cảnh mặt tiền đang hoàn thiện tô trát.


Xây dựng cơ bản hoàn thành sau 1,5 tháng cho phần khung


Dự kiến sẽ bàn giao nhà vào giữa tháng 11 năm 2015


Mặt đứng

Phòng ngủ chính của gia chủ được trang trí với phong cách trẻ trung ấn tượng với điểm nhấn là tranh kính

Với không gian phòng ngủ nhỏ thì Tủ quần áo và kệ sách được bố trí kết hợp nhằm tiết kiệm không gian.

Góc trang trí cho không gian phòng ngủ kết hợp phòng học tập và làm việc

Phối cảnh mặt tiền sau khi hoàn thiện sẽ được công ty đảm bảo hoàn thành theo bản vẽ 100% từ màu sơn cho đến hệ thống cửa, cổng…
Chủ đầu tư: Anh Đạt – Chị Vy
Địa chỉ công trình: Bình Triệu, Thủ Đức
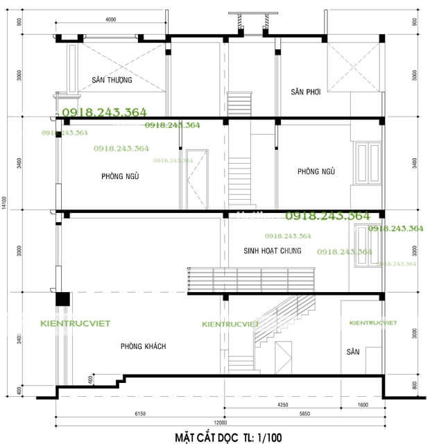
Diện tích xây dựng: 4,5m *12m, xây dựng 1 trệt 1 lửng 1 lầu và 1 sân thượng.
Tổng mức xây dựng; 900 triệu
Công Ty Thiết Kế Và xây Dựng Kiến Trúc Việt.
…………………………………………………………………………………………………….
CÔNG TY TNHH MTV XD & TTNT KIẾN TRÚC VIỆT
Thiết kế Nhà – Thầu Xây dựng – Thi công nội thất – Trang trí thiết kế văn phòng
Hotline: 0918 243 364 – 0914 243 364
Email: cuongarchi@yahoo.com.vn
www.kientrucviet.com.vn
Share:















