
Chung cư chính là lựa chọn lý tưởng cho các hộ gia đình trẻ muốn lập nghiệp và phát triển ở các thành phố lớn. Chung cư có ưu điểm là rất sạch sẽ, tiện lợi và hợp với khả năng tài chính của nhiều người. Tại Hồ Chí Minh, chung cư Sunny Plaza là một trong những khu vực được rất nhiều gia đình trẻ yêu thích bởi vị thế đẹp kết nối với các trung tâm lớn, đáp ứng toàn diện nhu cầu về chốn an cư lý tưởng. Tuy nhiên, căn hộ sẽ trở nên hoàn hảo hơn khi được thiết kế thi công nội thất chung cư SUNNY, chúng tôi sẽ giúp bạn tạo ra một tổ ấm như ý!

NỘI DUNG TÓM TẮT
Hình ảnh tổng thể dự án chung cư Sunny Plaza.

Thiết kế thi công nội thất chung cư SUNNY – Căn hộ 3 phòng ngủ

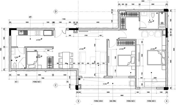
Mặt bằng thiết kế nội thất chung cư Suny Plaza
Chủ đầu tư : Chị Trinh
Hạng mục thực hiện: Gói thiết kế và thi công căn hộ giao thô và hoàn thiện nội thất theo bản vẽ
Hạng mục nội thất bao gồm: Thi công trần, vách ngăn thạch cao, ố tường trang trí, dán gạch trang trí, sàn gỗ, tủ giường kệ trang trí theo mẫu nội thất đã thống nhất, đi hệ thống điện và gắn thiết bị điện thiết bị máy lạnh, sofa và bàn ăn…
Chi phí gói thi công hoàn thiện: 200 triệu đến 300 triệu
1 – Thiết kế nội thất phòng khách chung cư SUNNY
Gây ấn tượng bởi không gian phòng khách trẻ trung, thanh lịch với tông màu sáng làm chủ đạo, căn hộ đã che đi khuyết điểm diện tích nhỏ của mình; mang lại một không gian sang trọng và cực kỳ công năng cho gia chủ trong quá trình sử dụng.
Vẫn được ứng dụng phong cách thiết kế hiện đại, căn phòng được thiết kế theo lối tối giản, đề cao vật dụng công năng. Những gam màu sắc linh hoạt được sử dụng để tạo cho điểm nhấn nơi đây. Bộ ghế sofa được điểm tô bằng những chiếc gối ôm màu sắc cũng là cách để nơi đây gây ấn tượng với người nhìn.
Sử dụng giấy gián tường để trang trí cũng là cách hay và tiết kiệm kinh phí đầu tư cho chủ nhà.
Kết hợp phòng khách bếp ăn là sự lựa chọn hợp lý cho những căn hộ có diện tích nhỏ hiện nay. Chúng không chỉ tạo sự thống nhất trong không gian mà còn mang lại tiện nghi trong quá trình sử dụng.
Bếp nấu dạng chữ I hoặc chữ L sẽ được lựa chọn linh hoạt để phù hợp với diện tích cũng như cấu trúc của căn hộ. Ở không gian này chúng tôi lựa chọn khu bếp dạng chữ I ở giữa là một lối đi bên ngoài không gian phòng khách, bàn ăn được đặt ở góc bên trái. Đây là sự sắp xếp hợp lý.

Nội thất không gian phòng khách- phòng ăn

Nội thất không gian bếp.

Kệ trang trí phòng khách.

Tổng quan nội thất phòng khách và phòng ăn

Nội thất trang trí phòng khách sinh hoạt chung
2 – Thiết kế nội thất phòng ngủ chung cư SUNNY
Nội thất chung cư SUNNY có đẹp hay không một phần phụ thuộc vào ý tưởng thiết kế của các kiến trúc sư. Phòng ngủ là căn phòng thiên về nghỉ ngơi và thư giãn riêng tư, vì vậy khi lên ý tưởng các kiến trúc sư cần phải tính toán kỹ càng về đặc trưng cũng như thỏa mãn sở thích của chủ nhân mỗi căn phòng.Tuy không khó song cần phải kết hợp hài hòa giữa 2 yếu tố này để bản vẽ thật sự hoàn hảo và thành viên trong gia đình thực sự yêu không gian nghỉ ngơi của mình.
Nội thất chung cư đẹp SUNNY không gian phòng ngủ 1 được tạo điểm nhấn bởi bộ chăn ga gối đệm đen trắng. Do diện tích không rộng rãi nên những chiếc tủ đa năng được tận dụng triệt để để giúp căn phòng gọn gàng hơn.
Thi công nội thất chung cư SUNNY phòng ngủ 2 với không gian đơn giản nhưng ấm áp. Màu săc nhã nhặn chính là điểm cộng của không gian nghỉ ngơi này. Một góc làm việc nhỏ xinh được thiết kế ngay ở góc cửa sổ rất hợp lý.
Thiết kế nội thất căn hộ SUNNY phòng ngủ 3 khá rộng rãi. Được thiết kế riêng khu vực nghỉ ngơi và khu vực đọc sách, gia chủ là người rất thích đọc sách vì vậy trong không gian nghỉ ngơi của mình anh chị đã dành riêng một góc nhỏ để làm giá sách và một bộ bàn ghế sofa nhỏ xinh để có thể ngồi đọc sách hoặc tâm sự khi rảnh rỗi.

Thiết kế nội thất phòng ngủ – Gói thi công nội thất phòng ngủ từ 20 triệu đến 30 triệu.

Thiết kế nội thất phòng ngủ – Gói thi công nội thất phòng ngủ từ 20 triệu đến 30 triệu.

Thiết kế nội thất phòng ngủ – Gói thi công nội thất phòng ngủ từ 20 triệu đến 30 triệu.

Thiết kế nội thất phòng ngủ – Gói thi công nội thất phòng ngủ từ 20 triệu đến 30 triệu.

Thiết kế nội thất phòng ngủ – Gói thi công nội thất phòng ngủ từ 20 triệu đến 30 triệu.

Thiết kế nội thất phòng ngủ – Gói thi công nội thất phòng ngủ từ 20 triệu đến 30 triệu.
Nhà vệ sinh chung sạch sẽ, thoáng mát và sử dụng gam màu thanh lịch để tăng vẻ sang trọng cho không gian.

Thiết kế thi công nội thất chung cư SUNNY bởi Kiến Trúc Việt
Một căn hộ đẹp chính là căn hộ có bản thiết kế nội thất hợp lý, đảm bảo tính thẩm mỹ và công năng trong suốt quá trình sử dụng. Tùy theo mức kinh phí đầu tư của gia chủ mà các kiến trúc sư tại Kiến Trúc Việt sẽ lên những phương án phù hợp, định hướng cho họ những giải pháp hợp lý bền vững theo thời gian. Và đây cũng lợi ích của khách hàng khi làm việc cùng 1 công ty thiết kế kiến trúc nội thất lâu năm.
Đã thực hiện thành công rất nhiều dự án chung cư lớn tại Hồ Chí Minh trong đó có dự án thiết kế thi công nội thất chung cư SUNNY, Kiến Trúc Việt tự hào là đối tác của nhiều gia đình Việt hiện nay. Chúng tôi rất vui vì đã góp một phần công sức kiến tạo nên những tổ ấm hoàn hảo cho các gia đình.
Hợp tác thiết kế thi công nội thất tại Kiến Trúc Việt, các gia đình có cơ hội được miễn phí 100% phí thiết kế nội thất khi thi công trọn gói. Đây là chương trình tri ân đặc biệt không phải công ty nào cũng có vì vậy, nếu bạn cũng đang có ý định thiết kế nội thất chung cư, hãy liên hệ với chúng tôi để được tư vấn và chia sẻ những ý tưởng thiết kế mới nhất từ chuyên gia nhé. Kèm theo báo giá và dự toán chính xác cho mỗi công trình.
Mọi thông tin chi tiết vui lòng liên hệ theo:
Số điện thoại: 0918 243 364 tư vấn miễn phí
Website: https://kientrucviet.com.vn/
Fanpage: facebook.com/kientrucviet.com.vn/
Share:
















