
Dự án thiết kế biệt thự 2 lầu ở Bình Dương
Biệt thự là một trong những mô hình nhà ở đang rất phổ biến tại các thành phố lớn hiện nay. Với diện tích rộng thoáng, nhiều phòng ốc vì vậy những bản thiết kế biệt thự 2 lầu ở Bình Dương được gia chủ rất chăm chút và kỹ lưỡng. Điều này cũng đòi hỏi kiến trúc sư phải là người có kinh nghiệm chuyên môn sâu sắc cùng kinh nghiệm trải nghiệm thực tế nhiều mới có những giải pháp sáng suốt nhất cho chủ đầu tư. Ngay sau đây, chúng tôi xin được giới thiệu tới quý vị dự án thiết kế biệt thự 2 lầu ở Bình Dương – một bản vẽ rất được khách hàng hài lòng.

Dự án thiết kế biệt thự 2 lầu ở Bình Dương

Dự án thiết kế biệt thự 2 lầu ở Bình Dương
Thiết kế nội thất biệt thự quan trọng nhất là phải vạch ra được bố cục hợp lý. Bố cục của một không gian được cấu thành từ nhiều yếu tố tuy nhiên trong thiết kế nội thất thì cần có sự hài hòa về bố cục bởi mỗi đồ vật sẽ mang đến sự đồng nhất cho căn phòng. Sự gắn kết các yếu tố liên quan như: màu sắc, hình dáng, kiểu dáng, vật liệu … tương tác với nhau hợp lý sẽ tôn lên vẻ đẹp của nội thất trong không gian. Và chúng tôi đã thỏa mãn được điều kiện này trong dự án mà Kiến Trúc Việt thực hiện dưới đây.
Phối cảnh ngoại thất thiết kế biệt thự 2 lầu ở bình dương

Dự án thiết kế biệt thự 2 lầu ở Bình Dương
Căn biệt thự được thiết kế theo phong cách cổ điển với đặc trưng về hình khối và dạng mái. Mái sử dụng là dạng mái chéo được phân làm 2 lớp mái dưới và mái trên. Hệ cột bám vào thân nhà cũng là đặc điểm xuất hiện ở phong cách thiết kế ngoại thất tân cổ điển. Với một diện tích không quá rộng rãi, song các kiến trúc sư đã đưa ra phương án thiết kế thích hợp cho gia chủ, trong đó mục tiêu của bản vẽ chính là tạo ra một ngôi biệt thự sang trọng, công năng và thể hiện vị thế của gia chủ.

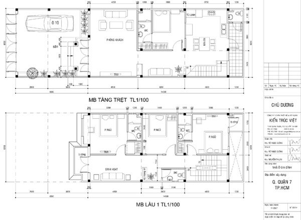
Hình ảnh mặt bằng thiết kế biệt thự ở bình dương
Ý tưởng Trang trí nội thất biệt thự bình dương
Là nhà biệt thự 2 tầng nên các kiến trúc sư phân chia không gian theo tầng. Tầng 1 bố trí phòng khách bếp ăn, còn tầng 2 bố trí phòng ngủ.
Phòng khách bếp
Căn phòng khách rất sang trọng và hiện đại với những khoảng khôn gian thông thoáng không hề bí bách như những căn nhà phố khác mà bạn thường thấy. Cách lựa chọn nội thất đơn giản, công năng và ít chi tiết rườm rà cũng góp phần tạo nên vẻ đẹp ấn tượng này.

Phòng khách nổi bật với bộ sofa chữ L rộng rãi màu xám nhạt lịch lãm. Kết hợp là bàn trà mặt kính đen hài hòa và việc tận dụng nguồn sáng từ thiên nhiên đã góp phần điểm tô nên những nét đẹp của không gian phòng khách căn biệt thự 2 tầng.

Do là biệt thự phố nên diện tích khá thoải mái để có thể phân chia từng hạng mục phòng một cách riêng biệt. Phân chia phòng khách và phòng bếp ăn là tường ngăn. Phòng bếp ăn rất rộng rãi có khu nấu riêng biệt, khu bàn ghế ăn và một đảo bếp nhỏ kê sát cửa sổ. Ở giữa vẫn còn thừa một khoảng diện tích rất rộng rãi giúp căn bếp lúc nào cũng dễ chịu, mát mẻ.

Tận dụng khoảng không ở chân cầu thang còn thừa, kiến trúc sư đã thiết kế chiếc tủ tại đây giúp gia chủ có thể đựng đồ bếp nhiều hơn.

Vách ngăn CNC cũng được ứng dụng để ngăn chia những khu vực cần thiết, chúng không trướng mắt mà ngược lại tô điểm cho ngôi nhà thêm phần nghệ thuật.
Nội thất biệt thự bình dương phòng ngủ
Phòng ngủ đặt trên tầng 2, nơi yên tĩnh, thoáng đãng và có view rất đẹp nhìn ra thành phố. Chúng tôi Trang trí nội thất biệt thự bình dương hạng mục phòng ngủ này với tông màu trắng trẻ trung và sang trọng. Tông màu sáng cũng là cách giúp căn phòng có cảm giác rộng rãi hơn nhiều so với diện tích thực. Chất liệu nội thất sử dụng toàn bộ là gỗ công nghiệp chính hãng An Cường, tủ áo kết hợp sơn inchem trắng 7 lớp mang lại độ sang trọng cho không gian.

Phòng ngủ kết hợp cả góc học tập nhỏ xinh với thiết kế sát cạnh tủ áo rất gọn gàng và khoa học. Chúng tôi thấy rằng đây là ý tưởng thiết kế phòng ngủ rất hợp lý khi thỏa mãn được công năng sử dụng cũng như tính thẩm mỹ hài hòa.

Thiết kế biệt thự 2 lầu ở Bình Dương- Nội thất phòng ngủ

Thiết kế biệt thự 2 lầu ở Bình Dương- Nội thất phòng ngủ
Bảng thiết kế biệt thự bình dương do Công ty thiết kế biệt thự bình dương Kiến Trúc Việt đảm nhiệm. Với kinh nghiệm hàng trăm dự án thiết kế biệt thự, cùng đội ngũ kiến trúc sư giàu kinh nghiệm chúng tôi đã không làm khách hàng của mình thất vọng khi thỏa mãn được tất cả những yêu cầu đồng thời, tư vấn đề xuất và đưa ra nhiều phương án hiệu quả nhất và được khách hàng ưng ý.

Thiết kế biệt thự 2 lầu ở Bình Dương- Nội thất phòng sinh hoạt chung tầng trệt

Thiết kế biệt thự 2 lầu ở Bình Dương- Nội thất phòng sinh hoạt chung tầng trệt
Hình ảnh thực tế công trình

Hình ảnh thực tế công trình thi công

Hình ảnh thực tế công trình thi công

Hình ảnh thực tế công trình thi công

Hình ảnh thực tế công trình thi công
Dự án thiết kế biệt thự 2 lầu tại Bình Dương này Kiến Trúc Việt chỉ đảm nhiệm thiết kế không thi công. Nếu quý vị cũng đang có nhu cầu thiết kế thi công Nội thất biệt thự bình dương đừng quên liên hệ với chúng tôi để được các kiến trúc sư giàu kinh nghiệm tư vấn hoàn toàn miễn phí nhé.
Tên công ty: kiến trúc việt
Số điện thoại: 0918 243 364 tư vấn miễn phí
Website: https://kientrucviet.com.vn/
Fanpage: facebook.com/kientrucviet.com.vn/
Share:















