
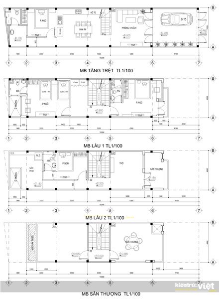
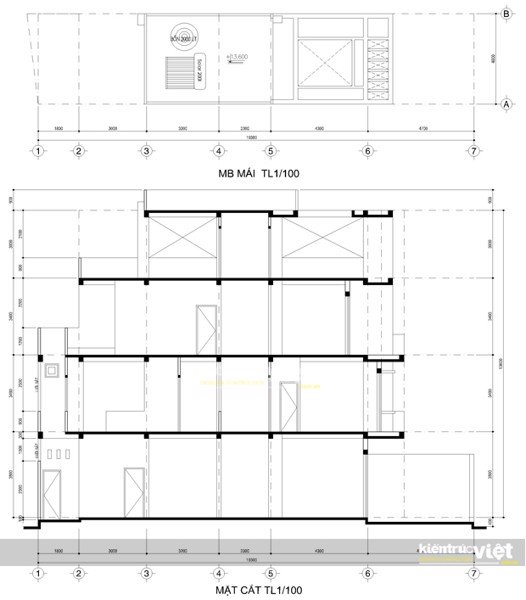
Kiến Trúc Việt gởi đến quý gia chủ kiến trúc nhà mặt phố với ngang 4m và dài 20m xây dựng 1 trệt 2 lầu và 1 sân thượng. Với thiết kế kiến trúc nhà phố cao tầng theo phong cách sang trọng tinh tế dung hòa vớ không gian sống thanh bình, dung hòa giữa biển trời và kiến trúc sang trọng. Kiến trúc thiết kế và xây dựng nhà 1 trệt 2 lầu với 1 s6n thượng với tổng mức đầu tư 1,2 tỷ.


Diện tích đất 4mx20m với tổng diện tích sàn xây dựng gần 300m2, chi phí đầu tư xây dựng hoàn thiện 1,2 tỷ. Mặt bằng kiến trúc nhà 4mx20m với trệt là mặt bằng gara oto và phòng ăn phòng khách, bên cạnh đó theo nhu cầu gia chủ cần 1 phòng ngủ cho ông bà lớn tuổi ở trệt để tiện di chuyển đi lại cũng như có thể thư giản với khu vườn s6n thái ở sân sáu.

Sống sang xứng tầm đẳng cấp với phong cách kiến trúc nhà phố 1 trệt 2 lầu và 1 sân thượng – diện tích sàn 80m2. Với nghệ thuật sắp đặt tinh tế và bố trí hài hòa với không gian chung và riêng luôn đảm bảo các view nhà phố đón gió và sánh sáng tự nhiên. Thiết kế kiến trúc và xây dựng nhà mặt phố 4mc20m với kiến trúc thu trọn hơi thở tươi mát bởi những sân vườn nhân tạo đã tạo nên một bất tận về không gian nhẹ nhàng đưa tâm hồn phiêu lãng cùng trời mây.

Nội thất phong cách trẻ trung hiện đại – Thiết kế kiến trúc và xây dựng nhà mặt phố 4mx20m.

Nội thất phong cách trẻ trung hiện đại – Thiết kế kiến trúc và xây dựng nhà mặt phố 4mx20m.




Kiên Trúc Việt gởi đến gia chủ một Mốt mới cho các thiết kế bếp ăn của năm nay là sử dụng mẫu bàn ăn dáng dài cùng chất liệu đá công nghiệp. Nghe sơ qua thì chắc bạn thấy đơn giản và dễ làm lắm, nhưng không phải vậy đâu nhé. Cứ tùy tiện chọn một chiếc bàn dài tùy ý cùng chất liệu gạch mình thích sẽ không thể đạt được hiệu quả cao cho thiết kế nhà bếp của mình. Với kiến trúc nhà phố phong cách phòng khách và không gian bếp Bạn cần có phong cách riêng, sự kết hợp khéo léo thì mới cho ra được sản phẩm hoàn hảo.


Kiến Trúc Việt – Khơi nguồn sáng tạo ngôi nhà bạn…
Kiến Trúc nhà phố/ Biệt thự / Khách sạn mini : Mang đến những ý tưởng thiết kế đầy sáng tạo, không chỉ phù hợp với môi trường Việt Nam mà còn cập nhật xu hướng thế giới. Cung cấp những giải pháp nhà ở đúng nhu cầu, thị hiếu và ngân sách của mỗi khách hàng.
Xây dựng Nhà phố/ Biệt thự: Không ngừng tìm tòi nghiên cứu, đầu tư phát triển công nghệ và vật liệu mới phù hợp xu hướng than thiện với môi trường. Xây dựng đội ngũ nhân viên nhiệt huyết nhằm đem lại nhưng trải nghiệm tuyệt với nhất cho khách hàng.
Thi công nội thất Căn hộ/ Nhà phố/ Biệt thự/ Văn phòng: Chúng tôi tin rằng mọi người đều có tổ ấm của riêng mình, một nơi để cảm nhận chính mình. Một ngôi nhà phù hợp với cá tính của bạn và gia đình, tạo ra một không gian dễ chịu và thoải mái. Một nơi tách biệt với thế giới bên ngoài, một nơi để thể hiện cá tính và sở thích của chủ nhân ngôi nhà. Sự ấm áp sẽ lan tỏa đến mọi người, dù khả năng kinh tế như thế nào. Đó là lý do tại sao chúng tôi muốn giúp bạn “Biến ngôi nhà thành tổ ấm”.
…………………………………………………………………………………………..
CÔNG TY TNHH MTV XD & TTNT KIẾN TRÚC VIỆT
Thiết kế Nhà – Thầu Xây dựng – Thi công nội thất – Trang trí thiết kế văn phòng
VPGD: P602, Lô A1, Sunny Plaza, 110 a Phạm Văn Đồng, p3, GV, HCM
Xưởng thi công nội thất; 438/6 Nguyễn Văn Quá, Q12, HCM
Hotline: 0918 243 364 – 0914 243 364
Email: cuongarchi@yahoo.com.vn
www.kientrucviet.com.vn
Share:
















