
Gói thi công nội thất trọn gói với các hạng mục chi tiết như sau:
1. Gói nội thất phòng khách gồm có: Kệ tivi, kệ treo trang trí, vách ốp trang trí, Bộ ghế sofa do gia chủ tự túc.
2. Gói nội thất phòng bếp: tủ bếp trên, tủ bếp dưới, mặt đá, trang trí vách ốp theo mẫu bản vẽ, bàn ghế phòng ăn gia chủ tự mua tại showroom
3. Gói nội thất phòng ngủ: Giường ngủ 1,8mx2m, tag và vách ốp đầu giường, tủ quần áo sát trần, kệ tivi và vách treo, bàn trang điểm kết hợp bàn làm việc.
4. Gói trang trí phụ như: sàn gỗ, giấy dán tường, rèm, trang… gia chủ có thể tự túc theo nhu cầu và mỹ thuật của gia chủ.
5. Gói hoàn thiện: Kính cường lực, cửa nhựa nhôm kính, tay vịn cầu thang, cửa gỗ các loại… không bao gồm trong gói nội thất gỗ trang trí này. Chi tiết các hạng mục cần báo giá vui lòng gởi mail qua địa chỉ cuongarchi@yahoo.com.vn hoặc hotline 0918243364.
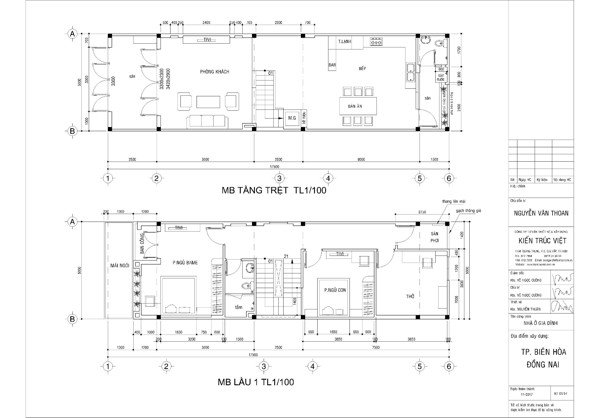
Sau đây Kiến Trúc Việt xin gởi bản vẽ chi tiết cho từng hạng mục nội thất thi công cho căn nhà phố 5×20 xây dựng 1 trệt, 1 lầu. Vớ dự trù gọi nội thất là 300 triệu cho thi công như bản vẽ, gói nội thất cho không gian 1 phòng ngủ giao động từ 20 triệu đến 50 triệu tùy vào sự lựa chọn vật tư và mức độ đầu tư từng hạng mục của gia chủ.
Bảng vẽ chi tiết cho Thi công nội thất nhà phố trọn gói 300 triệu như sau:

Thi công nội thất nhà phố trọn gói 300 triệu – Nhà phố 5×20 xây dựng 1 trệt 1 lầu với 3 phòng ngủ.

Thi công nội thất nhà phố trọn gói 300 triệu – Phòng khách thi công ốp vách

Thi công nội thất nhà phố trọn gói 300 triệu – Phòng khách thi công ốp vách, kệ treo và hốc cột trang trí

Thi công nội thất nhà phố trọn gói 300 triệu – Phòng bếp thi công gói nội thất tủ bếp, kệ vách và quầy bar

Thi công nội thất nhà phố trọn gói 300 triệu – Phòng bếp thi công gói nội thất tủ bếp, kệ vách và quầy bar

Thi công nội thất nhà phố trọn gói 300 triệu – Phòng bếp thi công gói nội thất tủ bếp, kệ vách và quầy bar

Thi công nội thất nhà phố trọn gói 300 triệu – Phòng ngủ thi công gói nội thất tủ giường, kệ vách và bàn học

Thi công nội thất nhà phố trọn gói 300 triệu – Phòng ngủ thi công gói nội thất tủ giường, kệ vách và bàn học

Thi công nội thất nhà phố trọn gói 300 triệu – Phòng ngủ thi công gói nội thất tủ giường, kệ vách và bàn học

Thi công nội thất nhà phố trọn gói 300 triệu – Phòng ngủ thi công gói nội thất tủ giường, kệ vách và bàn học

Thi công nội thất nhà phố trọn gói 300 triệu – Phòng ngủ thi công gói nội thất tủ giường, kệ vách và bàn học

Thi công nội thất nhà phố trọn gói 300 triệu – Phòng tắm thi công vách kính cường lực phòng tắm đứng, khung và mặt đá lavabor.

Thi công nội thất nhà phố trọn gói 300 triệu – Phòng tắm thi công vách kính cường lực phòng tắm đứng, khung và mặt đá lavabor.

Thi công nội thất nhà phố trọn gói 300 triệu – Phòng học và phòng thờ
Xưởng sản xuất Nội Thất Kiến Trúc Việt
Đến với chúng tôi quý khách sẽ thực sự cảm thấy hài lòng không chỉ về chất lượng sản phẩm cung cấp mà còn các dịch vụ của chúng tôi dành cho khách hàng, quý khách sẽ nhận được nhiều hơn những gì mà quý khách phải bỏ ra.
Kiến Trúc Việt luôn cố gắng xây dựng đội ngũ nhân viên, kỹ sư, kiến trúc sư năng động, nhiệt tình, giỏi chuyên môn, giàu kinh nghiệm nhằm mục tiêu cung cấp các sản phẩm và dịch vụ tối ưu, hiệu quả. Sự hài lòng của quý khách đi đôi với sự tồn tại và phát triển của Kiến Trúc Việt.
Kiến Trúc Việt “Khơi nguồn sáng tạo ngôi nhà bạn”

Share:
















