
NỘI DUNG TÓM TẮT
Sự khác biệt khi thiết kế nội thất nhà phố và nội thất căn hộ
So với chung cư thì thiết kế nội thất nhà phố có phần khác hẳn bởi cấu trúc mỗi ngôi nhà là khác nhau. Nếu nhà chung cư là một không gian rộng rãi được chung nhau thì nhà phố lại là mảnh đất hẹp về chiều ngang và sâu về chiều dài, thế nên trong quá trình thiết kế chúng ta phải nắm bắt được những đặc điểm này để có những bố trí hợp lý nhất, đáp ứng tối đa công năng sử dụng và thẩm mỹ cho ngôi nhà. https://kientrucviet.com.vn/blogs/thi-cong-noi-that/goi-thi-cong-hoan-thien-can-ho-palm-hight-quan-2
Dự án thiết kế nội thất nhà phố Bình Dương này được chúng tôi khảo sát và tính toán kỹ càng dựa trên diện tích thực tế cùng những mong muốn từ phía chủ nhà. Vì vậy, tất cả công năng hay thẩm mỹ đặc trưng đều được hài lòng và ưng ý, mời quý vị cùng tham quan ngay sau đây.

Phối cảnh mặt tiền

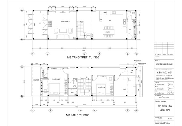
Mặt bằng bố trí – Mặt bằng thiết kế tầng 1 và tầng trệt nhà phố tại Bình Dương.

Gói thi công trang trí không gian bếp và phòng ăn.

Gói thi công trang trí không gian bếp và phòng ăn.

Gói thi công trang trí không gian bếp và phòng ăn.

Gói thi công trang trí không gian phòng khách

Gói thi công trang trí không gian bếp và phòng khách
1 – Nội thất phòng khách nhà phố Bình Dương đẹp
Với diện tích không quá rộng rãi song các kiến trúc sư đã biết cách vận dụng những nguyên tắc thiết kế vào để giảm bớt yếu điểm này và thay thế là một không gian thoáng đãng và cực kỳ ấn tượng khi bạn bước chân vào.
Phòng khách nhà phố Bình Dương đẹp với không gian hiện đại, sự hiện diện của bộ ghế sofa dạng chữ L kết hợp cùng bàn trà tròn inox mạ vàng tăng thêm độ sang trọng cho không gian. Chiếc thảm long như một mảnh ghép hoàn hảo để khu vực tiếp khách này thêm phần sang trọng.
Màu sắc hài hòa sử dụng tông màu sáng làm chủ đạo, kết hợp cùng hình khối trang trí tạo ra sự ấn tượng về màu sắc và gây thích thú với người nhìn. Tận dụng phần tường cầu thang làm nơi đựng đồ trang trí rất thông minh.
KHu vực bếp nấu ăn được phân tách với phòng khách bằng cầu thang đi lên tầng 2. Tổng thể rất rộng rãi, tiện nghi và thoáng đãng.
Nội thất bếp nhà phố Bình Dương đẹp – Đây chính là gian bếp lý tưởng mà bà nội trợ Việt nào cũng mơ ước.
2 – Nội thất phòng ngủ nhà phố Bình Dương đẹp
Phòng ngủ master của bố mẹ được sử dụng tông màu trầm là xám nhạt cùng màu xanh lam sang trọng, tạo nên một nơi nghỉ ngơi ấm cúng rất thoải mái. Đồ nội thất được bài biện ít nhường chỗ cho không gian rộng thoáng.

Gói thi công nội thất phòng ngủ cho nhà phố

Gói thi công nội thất phòng ngủ

Thi công nội thất nhà phố Bình Dương chúng tôi rất ấn tượng với chủ nhà về lối sống khá văn minh khi việc lựa chọn nội thất theo tiêu chí đơn giản và hướng tới công năng sử dụng nhiều hơn. https://kientrucviet.com.vn/blogs/thi-cong-noi-that/thiet-ke-thi-cong-noi-that-van-phong-uy-tin-chuyen-nghiep
Đây cũng là phòng ngủ chính của anh chị, khác với phòng ngủ trước thì phòng ngủ này rộng rãi hơn và sử dụng tông màu trắng làm chủ đạo. Tủ đồ đa năng thiết kế với nhiều ngăn khác nhau để có thể đựng đủ đồ quần áo của 2 vợ chồng. Bàn trang điểm và bàn làm việc kê sát khu vực cửa sổ.

Gói thiết kế thi công nội thất phòng ngủ baby

Phòng ngủ con gái như một câu chuyện cổ tích với thiết kế đáng yêu và tông màu hồng ngọt ngào.

Gói thi công nội thất trang trí phòng thờ
Tất cả đồ nội thất đều đáp ứng đầy đủ nhu cầu của bé trong quá trình sử dụng hàng ngày.


Thiết kế nội thất nhà phố Bình Dương hạng mục phòng vệ sinh
Tiêu chí thiết tối ưu diện tích và đầy đủ công năng sử dụng cho gia đình.
Thi công nội thất nhà phố Bình Dương phòng làm việc kết hợp phòng thờ gia tiên ở tầng cao nhất và lựa chọn khu vực thoáng đãng, yên tĩnh.
Một góc tiểu cảnh với thác nước, cây thủy sinh giúp ngôi nhà chan hòa hơn với thiên nhiên
Ý tưởng thiết kế không gian xanh rất hay cho những ngôi nhà phố có diện tích chật hẹp.
Công ty thiết kế nội thất nhà phố Bình Dương Kiến Trúc Việt rất vui vì giúp gia chủ có một không gian sống tuyệt vời như mình mong đợi. Chúng tôi gửi tới khách hàng chương trình khuyến mãi miễn phí thiết kế khi thi công nội thất cũng là điểm cộng quan trọng để khách hàng quyết định sử dụng dịch vụ của chúng tôi. https://kientrucviet.com.vn/blogs/thi-cong-noi-that/du-an-thi-cong-noi-that-nha-pho-tai-go-vap
Nếu bạn cũng đang có nhu cầu thiết kế thi công nội thất nhà phố Bình Dương hãy liên hệ với Kiến trúc Việt để được tư vấn và báo giá chính xác nhé. Với kinh nghiệm lâu năm trong nghề cùng đội ngũ kiến trúc sư tài năng, giàu kinh nghiệm chúng tôi tự tin sẽ giúp quý khách hàng kiến tạo nên tổ ấm hoàn hảo đảm bảo nét đẹp riêng biệt, công năng hữu ích và tối ưu giá thành đầu tư ở mức tối đa. Hãy nhấc máy lên và gọi cho chúng tôi qua Số điện thoại: 0918 243 364 tư vấn miễn phí hoặc truy cập Website: https://kientrucviet.com.vn/ để tham khảo nhiều hơn mẫu công trình thi công nội thất nhà phố Bình Dương mà chúng tôi thực hiện nhé.
Fanpage: facebook.com/kientrucviet.com.vn/
Share:
















