
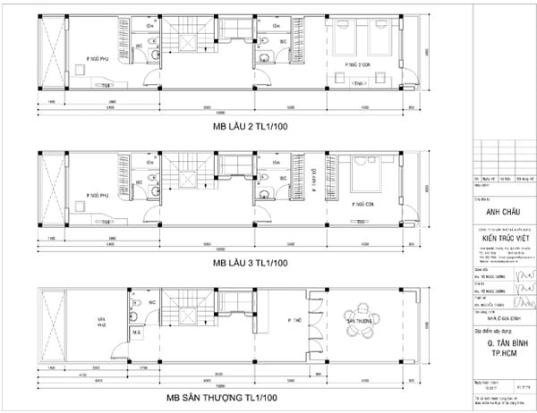
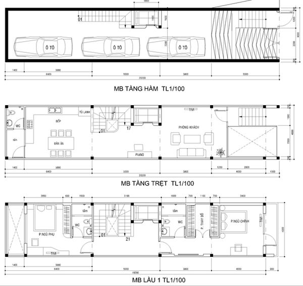
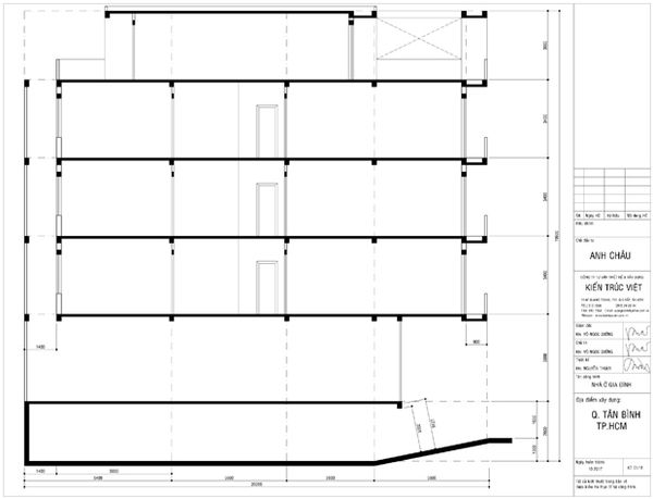
Kiến trúc nhà 4 lầu có thang máy và có hầm, diện tích nhà ngang 4m và dài 22m, xây dựng 1 hầm và 4 lầu. Nhà phố theo phong cách hiện đại trẻ trung, không gian bố trí hợp lý về sự thông thoáng không gian và đạt nhu cầu mong muốn của gia chủ. Mặt bằngg tầng hầm là gara oto với không gian hơn 80m2 là không gian cho oto và xa máy, một phần là kho chứa đồ của gia chủ. Tầng trệt là không gian sinh hoạt chung và không gian bếp, phần cầu thang máy được bố trí sát với cầu thang bộ. Tầng lầu 1, lầu 2 với bố trí 2 phòng ngủ master phong cách sang trọng và tinh tế đến từng chi tiết.



Thiết kế nhà phố 4 lầu có thang máy có hầm
Nội thất được bố trí tinh tế hiện đại, phong cách trẻ trung sang trọng Thiết kế nhà phố trẻ trung và đơn giản là một ngôi nhà trong khu quy hoạch mới, vừa vặn với nhu cầu và sinh hoạt của một gia đình 4 người. Thế nhưng đa số bạn bè, khách tham quan khi ghé đến đều gật gù khen gia chủ rằng “làm vậy chắc ăn,không mới không cũ, dễ xài dễ sửa”, nhất là sau khi họ hiểu các lý do của gia chủ cũng như bên chuyên môn phải giải quyết trước các ràng buộc về quy định, kinh phí và quan điểm khi làm nhà. Cấu trúc dạng nhà trong dự án có mẫu nhà phố liên kế ăn chắc mặc bền, đồng bộ và thống nhất về chiều cao, khoảng lùi, số tầng. Bài toán cơ bản là làm sao không gian đáp ứng đủ các nhu cầu công năng phục vụ sinh hoạt cho gia đình 4 người có hai cậu con trai đang tuổi lớn, và không phô trương hay làm gì khác lạ. Đó trở thành những điều kiện để gia chủ tìm kiếm nhà chuyên môn phù hợp, để làm việc cùng nhau, và điều chỉnh cho ngôi nhà đúng với quy định chung, hợp với nhu cầu riêng.

Không gian trệt – Phòng sinh hoạt chung – view 1

Thiết kế nhà 4 lầu có thang máy có hầm – Phòng sinh hoạt chung – view 2

Thiết kế nhà 4 lầu có thang máy có hầm – Phòng sinh hoạt chung – view 3

Thiết kế nhà 4 lầu có thang máy có hầm – Phòng sinh hoạt chung – view 3

Thiết kế nhà 4 lầu có thang máy có hầm – Không gian đệm tại tầng trệt
Vật liệu đồ nội thất chủ yếu bằng gỗ sồi kiểu dáng đơn giản nên không gian chỉ được hoàn thiện sàn – trần – tường thật gọn gàng và ít chi tiết rườm rà. Ngôi nhà nhờ vậy khi làm xong mang một diện mạo vừa đồng bộ với toàn khu, lại vừa có chút duyên riêng bởi một số nét bo nhẹ ngoài mặt tiền và đôi chỗ điểm xuyết nhẹ nhàng trong không gian nội thất, thể hiện đúng quan niệm sống của một gia đình coi trọng sự tiện dụng, sạch sẽ, gọn và thoáng.

Thiết kế nhà 4 lầu có thang máy có hầm – Không gian phòng bếp và phòng ăn

Thiết kế nhà 4 lầu có thang máy có hầm – Không gian phòng bếp và phòng ăn


Thiết kế nhà 4 lầu có thang máy có hầm – Không gian phòng ngủ với phòng thay đồ riêng biệt và cũng là không gian trang trí bộ sưu tập của gia chủ.

Thiết kế nhà 4 lầu có thang máy có hầm – Không gian phòng ngủ với phòng thay đồ riêng biệt và cũng là không gian trang trí bộ sưu tập của gia chủ.

Thiết kế nhà 4 lầu có thang máy có hầm – Không gian phòng ngủ với phòng thay đồ riêng biệt và cũng là không gian trang trí bộ sưu tập của gia chủ.

Thiết kế nhà 4 lầu có thang máy có hầm – Không gian phòng ngủ lầu 2.

Thiết kế nhà 4 lầu có thang máy có hầm – Không gian phòng ngủ lầu 2 – view 2


Thiết kế nhà 4 lầu có thang máy có hầm – Không gian phòng ngủ 3 lầu 2.

Thiết kế nhà 4 lầu có thang máy có hầm – Không gian phòng ngủ 3 lầu 2 – view 2

Thiết kế nhà 4 lầu có thang máy có hầm
Chủ đầu tư: Anh Thanh
Địa chỉ công trình: Ninh Bình
Hạng mục: Thiết kế kiến trúc, nội thất và bản vẽ xây dựng
Bản quyền tác giả: Team design KTS Kiến TRúc Việt – KTS Võ NGọc Cường ( Chủ nhiệm)
……………………………………………………………………………………….
CÔNG TY TNHH MTV XD & TTNT KIẾN TRÚC VIỆT
Thiết kế Nhà – Thầu Xây dựng – Thi công nội thất – Trang trí thiết kế văn phòng
VPGD: P602, Lô A1, Sunny Plaza, 110 a Phạm Văn Đồng, p3, GV, HCM
Xưởng thi công nội thất; 438/6 Nguyễn Văn Quá, Q12, HCM
Hotline: 0918 243 364 – 0914 243 364
Email: cuongarchi@yahoo.com.vn
www.kientrucviet.com.vn
Share:
















