.
.
.

Thi công cải tạo nhà Biệt Thự Phố, Phú Nhuận

Mặt bằng bố trí lại không gian nhưng vẫn giữ lại kết cấu của căn nhà. Bố trí sắp xếp không gian nội thất tinh tế hiện đại, đầu tư thay đổi các trang thiết bị cao cấp. Thay đổi lớp áo mới ngoại thất và cả nội thất.

Mặt bằng bố trí tầng 1: Khoảng sân khá rộng, một không gian sinh hoạt chung riêng thông phòng bếp và phòng ăn. Một phòng ngủ nhỏ tại tầng trệt. 

Mặt bằng tầng 2 với các không gian phòng ngủ master và một khoảng không gian sinh hoạt chung chính là không gian đệm để tạo sự thông thoáng và sự tách biệt của các không gian phòng ngủ. Bố trí không gian các phòng ngủ đều lấy ánh sáng và gió tự nhiên, các không gian đều mang lại cảm giác thư giản sau một ngày làm việc căng thẳng. Góc không gian đệm có thể là khu vực thư viện đọc sách hoặc là không gian chơi nhạc cụ Piano của cô chủ nhỏ.

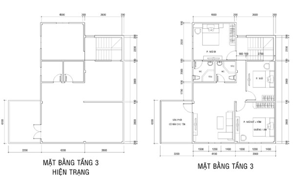
Mặt bằng tầng 3 là không gian phòng ngủ dự trù cho khách và các con đang du học ở nước ngoài. Mặt bằng tầng là 3 phòng ngủ và 1 phòng sinh hoạt chung.

Hình ảnh công trình thực tế đang thi công, Thi công cải tạo nhà Biệt Thự Phố, Phú Nhuận.

Công tác táo gạch và sơn tường cũ.

Mặt bằng hiện trạng căn biệt thự phố cũ hơn 20 năm.

Công tác thi công tháo dỡ hiện trạng và xây mới một số hạng mục.

Công tác thi công tháo dỡ hiện trạng và xây mới một số hạng mục.

Công tác thi công tháo dỡ hiện trạng và xây mới một số hạng mục.

Công tác thi công tháo dỡ hiện trạng và xây mới một số hạng mục.

Công tác thi công tháo dỡ hiện trạng và xây mới một số hạng mục.

Công tác thi công tháo dỡ hiện trạng và xây mới một số hạng mục.

Hình ảnh nội thất không gian 3D sẽ được hoàn thiện hoàn chỉnh trong vòng 3 tháng triển khai dự kiến sẽ hoàn thành vào tháng 6.2019.

Nội thất không gian phòng bếp tại tầng trệt.

Không gian nội thất hoàn thiện cho không gian phòng ăn và không gian bếp.

Nội thất không gian phòng khách tại sảnh tầng trệt.

Nội thất không gian phòng ngủ tầng 1.

Nội thất phòng trưng bày master tầng 2.

Nội thất hoàn thiện phòng ngủ master tầng 2.

Phối cảnh ngoại thất hoàn thiện mặt tiền biệt thự.

Phối cảnh ngoại thất hoàn thiện mặt tiền biệt thự.

Thi công cải tạo nhà Biệt Thự Phố, Phú Nhuận

Chủ đầu tư: Chị Hiền

Địa chỉ công trình: Nguyễn Thị Huỳnh, Phú Nhuận

Quy mô xây dựng: 1 trệt 2 lầu với diện tích sàn 550m2

Hạng mục thực hiện: Thiết kế kiến trúc, Thiết kế nội thất, thi công cải tạo và hoàn thiện nội thất theo bản vẽ.

Bản quyền tác giả: Kiến Trúc Việt – KTS. Ngọc Cường

Năm hoàn thành bản vẽ: Tháng 2  2019

Dự kiến hoàn thành cải tạo và nội thất: Tháng 6.2019

……………………………………………………………………………………..

CÔNG TY TNHH MTV XD & TTNT KIẾN TRÚC VIỆT

Thiết kế Nhà – Thầu Xây dựng – Thi công nội thất – Trang trí thiết kế văn phòng

VPGD: P602, Lô A1, Sunny Plaza, 110 a Phạm Văn Đồng, p3, GV, HCM

Xưởng thi công nội thất; 438/6 Nguyễn Văn Quá, Q12, HCM

Hotline: 0918 243 364 – 0914 243 364

Email: cuongarchi@yahoo.com.vn

www.kientrucviet.com.vn

Click to rate this post!
[Total: 0 Average: 0]

Share:

Để lại một bình luận

Email của bạn sẽ không được hiển thị công khai. Các trường bắt buộc được đánh dấu *