

Cuộc sống hiện đại thì thoảng làm ta cảm thấy bị gò bó. Chúng ta luôn mong mỏi tìm ra một cuộc sống giản dị hơn. Gần gũi với thiên nhiên, tự do là chính mình và tạm ngừng các kết nối xã hội. Thiên nhiên tượng trưng cho những gì to lớn khó đoán biết. Nó có thể tĩnh lặng và nhẹ nhàng nhưng đồng thời có thể ồn ào và hoang dã. Những biến đổi của thiên nhiên vừa làm ta vừa kính trọng vừa sợ hãi. Qua điều này chúng tôi nhận thấy một xu hướng mới của những cá nhân muốn đặc bản thân trước những thách thức để thật sự tìm ra và thấu hiểu mong muốn của bản thân

Chủ đầu tư: Chị Hạnh – Thanh Hóa
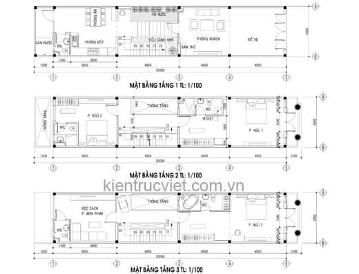
Quy mô xây dựng:nhà phố 4m với chiều dài 20m, xây dựng nhà phố 1 trệt 3 lầu.
Hạng mục thực hiện; Thiết kế kiến trúc – Tư vấn chọn vật liệu hoàn thiện
Tác giả: Team design Kiến Trúc Việt

Nội thất phòng ngủ 20m2

Nội thất phòng ngủ 16m2 với tolet trong phòng

Phòng tắm với bồm tắm nằm

Không gian nhỏ sinh họa trong phòng ngủ

Sự kết hợp giữa gỗ tự nhiên và ván MDF




Team design Kiến Trúc Việt.
…………………………………………………………………………………………………….
CÔNG TY TNHH MTV XD & TTNT KIẾN TRÚC VIỆT
Thiết kế Nhà – Thầu Xây dựng – Thi công nội thất – Trang trí thiết kế văn phòng
Hotline: 0918 243 364 – 0914 243 364
Email: cuongarchi@yahoo.com.vn
www.kientrucviet.com.vn
Share:
















