.
.
.

Nhà mặt phố 5.5m 3 tầng Biên Hòa

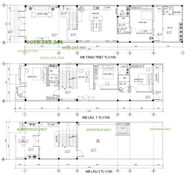
Mặt bằng bố trí tầng tham khảo cho nhà 3 tầng mặt tiền nhà 5,5m. Quy mố không gian ở được sử dụng tối đa với 4 phòng ngủ riêng biệt, 1 phòng sinh hoạt chung, 1 không gian ẩm thực và sân vườn sâu.

Mặt bằng bố trí không gian nhà phố 100m2 này khá ấn tượng và khác biệt với quy mô của một số công trình nhà phố khác. Sân trước nhà được sử dụng triệt  để cho không gian sinh hoạt, sân sau với khỏang rộng hơn 10m2 nhằm mục đích lấy sáng, lấy gió và tạo khoản đệm thông thoáng cho các không gian phòng ngủ ở trên lầu. Với nhà mặt phố giáp 3 bên là nhà phố cao tầng thì việc trừ hao diện tích ở lại để lấy không gian thoáng cho nhà là bài toán hay và khi xây dựng thực tế công trình được khách hàng rất yêu thích. Chỉ 2m chiều sâu và 5,5m bề ngang nhà đã giải quyết mọi bài toán về thông thoáng cho các không gian phòng ngủ ở trệt và lầu 1.

Mặt bằng nội thất tại tầng trệt với kiến trúc nội thất gỗ tự nhiên theo yêu cầu của gia chủ. Một số khung tranh thiên nhiên và các khoản âm tường được tạo ra nhằm làm điểm nhấn cho khu trệt thêm ấn tượng.

Mặt bằng trệt với bộ bàn phòng khách sang trọng

Ngôi nhà  mặt phố 5,5m, thiết kế nhà phố 3 tầng, tôn vinh vai trò của bếp, với rất nhiều trang thiết bị hiện đại nhưng về cơ bản giải pháp để giữ lửa cho bếp vẫn là “giảm hung tăng cát” tức là tránh để các tác động của hoả như khói – mùi – nhiệt độ lan toả sang các không gian lân cận, và đưa vào bếp nhiều sự thoải mái thuận tiện hơn. Đối với nhà phố hay biệt thự, bếp thường hay được đặt phía sau, gần giếng trời hoặc sân sau nên thuận tiện hơn cho việc nấu nướng và thoát khói tốt.

Xu hướng phòng ngủ với tông màu vàng Chanh đang là xu hướng cho tuổi trẻ với tính năng ấn tượng và mạnh mẽ. Phòng ngủ ngày nay không chỉ là nơi để ngủ mà còn là không gian để chúng ta giải trí xem bộ phim hay hay lướt web cùng bạn bè hoặc đọc một quyển sách như chúng ta đang ở thư viện. Do đó không gian phòng ngủ ngày nay được bố trí rất nhiều thiết bị thông minh để đạt được nhiều yêu cầu của gia chủ.

Một mẫu phòng ngủ khác lại mang đậm nét nữ tính nhẹ nhàng của quý cô thành đạt trong cuộc sống và công việc.

Xanh mạnh mẽ, nam tính, một không gian mạnh mẽ tươi trẻ năng động của cậu trai 10 tuổi của anh chị.

Khoản sân vườn sau

nhà mặt phố 5m

Nhà mặt phố 5,5m, thiết kế nhà phố 3 tầng 4 PN

Chủ đầu tư:  Chị Hiền

Địa chỉ công trình; Biên Hòa, Đồng Nai

Hạng mục thực hiện: Tư vấn thiết kế kiến trúc

Quy mô công trình; 5,5m x 18m, xây dựng 1 trệt 1 lầu và 1 sân thượng.

Kiến Trúc Việt.
…………………………………………………………………………………………………….

CÔNG TY TNHH MTV XD & TTNT KIẾN TRÚC VIỆT

Thiết kế Nhà – Thầu Xây dựng – Thi công nội thất – Trang trí thiết kế văn phòng

Hotline: 0918 243 364 – 0914 243 364

Email: cuongarchi@yahoo.com

Click to rate this post!
[Total: 0 Average: 0]

Share:

Để lại một bình luận

Email của bạn sẽ không được hiển thị công khai. Các trường bắt buộc được đánh dấu *