
Kiến trúc nhà phố 4mx9m, Nhà 4×9, nhà phố nhỏ xinh 4 tầng có lửng

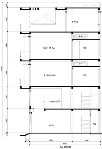
Mặt bằng kiến trúc trệt là gara oto, tầng lửng là bếp và phòng khách, tầng 2 là phòng ngủ, tầng 3 là phòng ngủ và sân thượng, với diện tích chiều dài 9m nên việc bố trí mỗi tầng là một không gian phòng ngủ riêng biệt.

Giải pháp tối ưu cho không gian nhà nhỏ 36m2 trong khu đô thị sài thành, Kiến Trúc Việt không chỉ mang lại những giải pháp tối ưu không gian thật hoàn hảo mà còn giúp bạn có được những ý tưởng để làm sao trang trí cho ngôi nhà nhỏ thành một không gian đẹp và trang nhã. Mặt bằng kiến trúc sơ bộ cho nhà nhỏ 36m2 với diện tích nhà phố 4×9 thì không gian phân khu rất quan trọng về mặt kiến trúc thông thoáng và cách bố trí không gian nội thất sao cho thật hợp lý vừa đạt thẩm mỹ vừa đạt tính tiện dụng cao.

Mặt bằng phòng khách và bếp ở tầng lửng cho nhà phố nhỏ 36m2, nhà 4×9
Ngôi nhà nhỏ đẹp này có diện tích chỉ 39m2, nhưng nó sẽ mang đến cho bạn một không gian trẻ trung và cá tính với thiết kế hiện đại cùng những tông màu trắng và đen tương phản tạo nên những điểm nhấn cho không gian.

Không gian liên thông phòng bếp và phòng ăn 30m2. Không gian phòng khách và nhà bếp được tách biệt bằng một chiếc bàn ăn nhỏ dành cho 4 người, một sự bố trí thông minh khi kết hợp cả 3 không gian phòng khách, phòng ăn và nhà bếp trong một diện tích nhỏ

Phòng khách tại tầng lửng

Không gian phòng khách, bếp và phòng ăn tại tầng lửng liên thông khá ấn tượng cho nhà phố nhỏ 36m2


Phòng ngủ master tại tầng 2 với diện tích phòng 30m2, dành trọn 1 không gian tầng 2 cho phòng ngủ master với tolet riêng biệt



Phòng ngủ baby cũng khá sinh động và đáng yêu cho các cô công chúa nhỏ, hệ tủ quần áo và kệ sách được kết hợp tạo điểm nhấn cho không gian bé thật đáng yêu



Phòng ngủ dành cho bé trai với tông màu xanh cá tính mạnh mẽ
Mẫu thiết kế nhà phố nhỏ 36m2 với khối mặt tiền cao sang trọng, nội thất bài trí trẻ trung là giải pháp đánh lừa thị giác người nhìn về không gian ngoại thất và nội thất, kiến trúc nhà phố nhỏ 36m2, nhà 4 tầng có lửng này đã mang đến cho gia chủ một không gian mở rộng rãi và thông thoáng cho các ngôi nhà có diện tích nhỏ. Tận dụng lợi thế khi có một ban công rộng, các nhà thiết kế đã cho thay những bức tường thành những khung cửa kính để lấy thêm ánh sáng vào trong nhà giúp cho ngôi nhà không có cảm giác ngột ngạt. Tuy tất cả các khu vực chức năng được bố trí trên cùng một không gian nhưng bạn vẫn thấy được sự gọn gàng và rõ ràng của từng khu vực nhờ vào sự bố trí hợp lý. Với 10 năm kinh nghiệm trong lĩnh vực nhà ở dân dụng, nhà phố 4m, nhà phố 5m, nhà phố cao tầng, nhà Biệt thự sang trọng, Kiến Trúc Việt là nợi giúp gia chủ kiến tạo nên không gian sống theo cách riêng của mình

Mặt tiền ngoại thất nhà phố 36m2, nhà phố 4×9 với 1 trệt, 1 lửng và 2 tầng lầu
Chủ đầu tư; A Hạnh, Gò Vấp
Tác giả: Chủ quyền tác giả Kiến Trúc Việt
Hạng mục thực hiện; Thiết kế kiến trúc và hoàn thiện nội thất theo bản vẽ
Năm hoàn thành: Dự kiến T8.2017
—————————————————————————————–
CÔNG TY TNHH MTV XD & TTNT KIẾN TRÚC VIỆT
Thiết kế Nhà – Thầu Xây dựng – Thi công nội thất – Trang trí thiết kế văn phòng
Hotline: 0918 243 364 – 0914 243 364
Email: cuongarchi@yahoo.com.vn
www.kientrucviet.com.vn
Share:
















