.
.
.

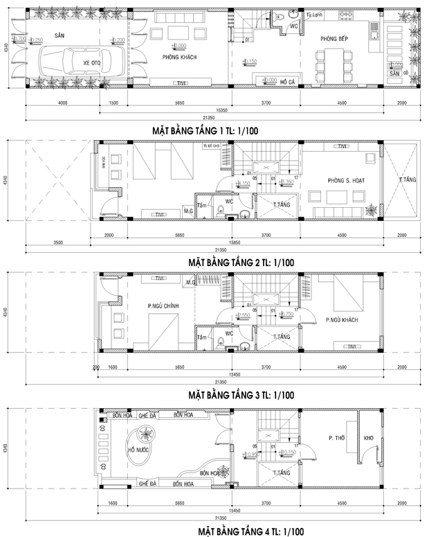
Nhà 3 lầu có Gara oto

Diện tích nhà 4,5m *20m, xây dựng nhà 1 trệt 2 lầu và 1 sân thượng. Tại tầng trệt với sân trước 4,5 m *5m được kiến trúc sư tư vấn dành cho sân gara trong nhà và một khu vực cho xe máy khoảng 3 chiếc. Với nhu cầu cuộc sống tăng cao việc mỗi gia đình đều có xu hướng sở hưởng 1 xe Oto để giải quyết vấn đề đi lại cho gia đình là một nhu cầu thiết thực. Với diện tích nhà phố chật và hẹp, nên giải pháp cho một  gara trong nhà kết hợp với không gian để ở là một bài toán để các KTS tư vấn đưa ra một không gian sống và sinh hoạt hợp lý.

Tại tầng trệt là không gian phòng sinh hoạt chung được nâng cao cốt nền so với sân là 3 bậc, nhằm cách biệt và tạo một không gian sinh hoạt thoáng và rộng hơn.

 

Sân trước gara oto cũng được thiết kế mái che di dộng có thể lấy sáng tự nhiên khi cần một không gian cho tiệc ngoài trời.

 

Kiến trúc nội thất phòng khách và phòng bếp

nhà 3 lầu có gara oto

Một góc sân sau nhà bếp được thiết kế 1 sân vườn khô và thác nước 

nhà 3 lầu có gara oto

Góc nhìn cho phòng ăn và nhà bếp

nhà 3 lầu có gara oto

nhà 3 lầu có gara oto

Không gian phòng ngủ tại tầng 1 rất sang trọng và trẻ trung

nhà 3 lầu có gara oto

nhà 3 lầu có gara oto

Không gian phòng ngủ cho hai cậu con trai nhỏ của anh chị

nhà 3 lầu có gara oto

Không gian phòng ngủ kêt hợp không gian học tập trong phòng

nhà 3 lầu có gara oto

Sân vườn khô cho tầng thượng, nơi có thể tổ chức tiệc vào dịp cuối tuần.

 

Chủ đầu tư : Chị Ngân – Một doanh nhân trẻ

Địa chỉ công trình: Tân Bình, HCM

Diện tích: 4,5m *20 m, xây dựng 2 lầu 1 sân thượng

 

Team design Kiến Trúc Việt.
…………………………………………………………………………………………………….

CÔNG TY TNHH MTV XD & TTNT KIẾN TRÚC VIỆT

Thiết kế Nhà – Thầu Xây dựng – Thi công nội thất – Trang trí thiết kế văn phòng

Hotline: 0918 243 364 – 0914 243 364

Email: cuongarchi@yahoo.com.vn

www.kientrucviet.com.vn

Click to rate this post!
[Total: 0 Average: 0]

Share:

Để lại một bình luận

Email của bạn sẽ không được hiển thị công khai. Các trường bắt buộc được đánh dấu *