
Để xây dựng được một ngôi nhà thì đó không phải là chuyện đơn giản, đó là cả quá trình dài với nhiều công đoạn khác nhau. Là chủ đầu tư thì ai cũng mong muốn có được một ngôi nhà hoàn hảo như ý với chất lượng và vẻ đẹp thẩm mỹ. Nhưng để làm việc đó không hề đơn giản, bạn hãy nhờ tới một công ty xây dựng nhà 3 tầng ở thủ đức uy tín và giàu kinh nghiệm để có thể “chọn mặt gửi vàng” nhé. Dưới đây xin được giới thiệu công trình xây dựng nhà 3 tầng ở thủ đức do Kiến Trúc Việt đảm nhiệm.


Công trình này được chúng tôi đảm nhiệm từ A – Z tức bao gồm các công đoạn gồm: thiết kế xây dựng nhà 3 tầng, thiết kế thi công nhà 3 tầng, trang trí nội thất nhà 3 tầng. Từ phần thi công xây dựng thô cho tới khi hoàn thiện phần nội thất là cả một quá trình dài đã để lại cho chúng tôi rất nhiều kỷ niệm. Và chúng tôi nhận thấy rằng, việc hoàn thiện một tổ ấm không phải là chuyện đơn giản, bởi là những người trong nghề mới nhận ra rằng, mỗi giai đoạn mỗi hạng mục đều là nhân tố quan trọng góp phần tạo nên chất lượng vượt trội cho dự án về sau này. Do vậy, chúng tôi có một lời khuyên cho khách hàng đó là nên lựa chọn dịch vụ xây dựng trọn gói để có thể đạt được chất lượng công trình cao nhất.
1 – Hình ảnh phối cảnh ngoại thất xây dựng nhà 3 tầng ở thủ đức

Hình thi công thực tế công trình

Công trình xây dựng nhà 3 tầng ở thủ đức

Công trình xây dựng nhà 3 tầng ở thủ đức

Công trình xây dựng nhà 3 tầng ở thủ đức

Công trình xây dựng nhà 3 tầng ở thủ đức

Công trình xây dựng nhà 3 tầng ở thủ đức
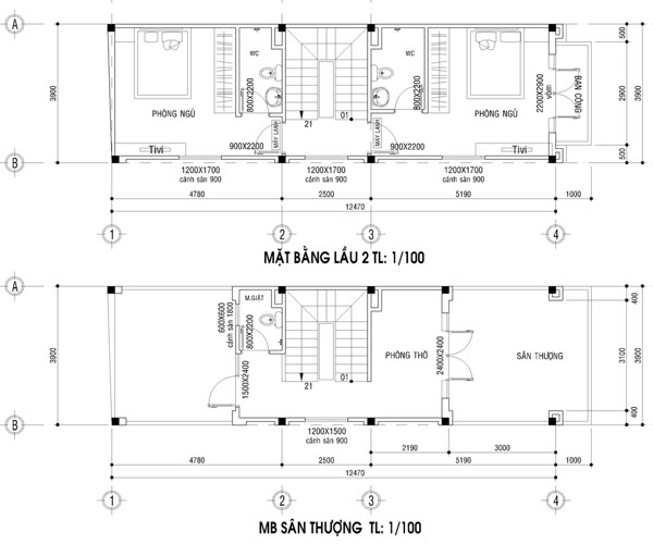
Quy trình thi công xây thô nhà 3 tầng tại Quận Thủ Đức
Là một công ty xây dựng nhà phố có tiếng tại Hồ Chí Minh nói riêng và toàn miền nam nói chung, Kiến Trúc Việt không chỉ gây ấn tượng với các chủ nhà bởi cách làm việc chuyên nghiệp của các kiến trúc sư, kỹ sư xây dựng giàu kinh nghiệm, mà chúng tôi còn sở hữu đội ngũ thợ thi công bài bản vì vậy, các công trình đều đảm bảo tiến độ chính xác theo như dự toán ban đầu, tránh làm sai lệch quy trình mà dẫn tới việc sai tiến độ về sau. Đội ngũ kỹ sư của chúng tôi được tuyển chọn kỹ càng từ các trường cao đẳng, đại học chính quy, vững chuyên môn và rất khỏe mạnh. Đây là thế mạnh mà chúng tôi rất tự hào khi tư vấn cho khách hàng.
List hình ảnh thực tế xây dựng nhà 3 tầng ở quận thủ đức từ đầu tới khi hoàn thiện:

Công trình nội thất nhà 3 tầng ở thủ đức

Công trình nội thất nhà 3 tầng ở thủ đức

Công trình nội thất nhà 3 tầng ở thủ đức

Công trình nội thất nhà 3 tầng ở thủ đức

Công trình nội thất nhà 3 tầng ở thủ đức
2 – Quy trình hoàn thiện Nội thất nhà 3 tầng
Vẻ ngoài đẹp thôi chưa đủ, nội thất bên trong cần phải tương xứng với vẻ ngoài đó. Nội thất cũng là một phần được chủ nhà rất quan tâm và chúng tôi cũng có nhiều kinh nghiệm trong việc thiết kế nội thất nhà phố.
Phòng khách nhà phố
Hiện diện với không gian rất thoáng đãng và sang trọng. Kiến trúc sư sử dụng 2 tông màu chính là trắng và đen để tạo điểm nhấn cho không gian. Chủ nhà là người đơn giản, không cầu kỳ vì vậy ý tưởng thiết kế nội thất cũng thỏa mãn sở thích của anh. Nhưng đơn giản không có nghĩa là đơn điệu, chúng tôi ưu tiên dùng ít nội thất nhưng đồ nào “chất” đồ đó. Cụ thể là bộ sofa theo thiết kế truyền thống ngày xưa, rất sang trọng và thể hiện sự quyền quý của người sở hữu.
Trên tường điểm những bức tranh treo tường ấn tượng và hài hòa với không gian tổng thể.
Khu vực phòng bếp ăn được thiết kế riêng một khu vực để không làm ảnh hưởng tới không gian chung. Phòng bếp hiện đại đáp ứng đầy đủ nhu cầu nấu nướng của bà nội trợ hiện đại. Một đảo bếp nhỏ xinh để thỏa mãn nhu cầu gia đình khi cần ăn tiệc đứng hoặc uống rượu.
Mọi thứ trong không gian ngôi nhà rất đúng vị trí và ăn khớp với nhau, vẫn tạo được sự thoáng đãng, dễ chịu cho người sử dụng không như nhiều khách hàng thường nghĩ rằng nhà phố sẽ rất chật chội.
Phòng ngủ master

Nội thất phòng ngủ master

Nội thất phòng ngủ master
Phòng ngủ master cũng tuân thủ theo ý tưởng thiết kế đơn giản mà công năng. Phòng ngủ sử dụng tông màu ấm áp kết hợp cùng nội thất thông minh tiết kiệm diện tích căn phòng, giúp giấc ngủ chủ nhân ngon hơn.
Phòng ngủ con trai

Nội thất phòng ngủ master cho con trai lớn

Ưu tiên cậu con trai bé bỏng, cha mẹ dành một diện tích khá rộng rãi để thiết kế nơi nghỉ ngơi học tâp cho bé. Phòng được phân ra làm nơi nghỉ ngơi, nơi học tập với diện tích vừa đủ, tông màu sáng kết hợp cùng ánh sáng tự nhiên giúp phòng của bé tràn ngập sinh khí.
Phòng ngủ bé gái

Phòng ngủ con gái đẹp nhẹ nhàng và rất ấm áp. Con gái lớn cũng khá đơn giản và chúng tôi đã thỏa mãn những yêu cầu về một không gian phòng ngủ lý tưởng cho bé.

Nhà vệ sinh với sự gọn gàng, sạch sẽ sử dụng màu trầm để giúp phòng vệ sinh luôn thoáng đãng và sang trọng.


Như vậy Kiến Trúc Việt đã giới thiệu tới quý vị công trình xây dựng nhà 3 tầng ở thủ đức với các hạng mục thiết kế thi công nhà 3 tầng, trang trí nội thất nhà 3 tầng. Chúng tôi thật vui vì gia chủ hoàn toàn hài lòng với Bảng thiết kế nhà 3 tầng này. Và đây chắc chắn sẽ là bản thiết kế mẫu cho những ai đang có ý định thiết kế nhà phố để an cư lạc nghiệp.
Công ty thiết kế nhà 3 tầng ở thủ đức Kiến Trúc Việt với năng lực vững vàng và hàng trăm dự án thành công chắc chắn sẽ là sự lựa chọn đáng tin cậy cho các gia đình Việt tại Hồ Chí Minh. Hãy liên hệ với chúng tôi để được tư vấn hoàn toàn miễn phí:
Công ty kiến trúc Việt
Share:















