Nhà biệt thự phố 2 tầng 1 hầm ngang 6,5m dài 13m. Phong cách Tân Cổ Điển kết hợp hiện đại trẻ trung phá cách đường nét cho mặt tiền. Công trình nhà chị Thảo, Quận 9.

Mẫu nhà phố hiện đại với ngang 6,5m và xây dựng 13m. Kiến trúc thiết kếtrẻ trung với mái ngói cách điệu giúp cho ngôi nhà có chiều cao hơn. Với chiều ngang nhà 6,5m được chia không gian làm hai phần chính và phụ. Như lớp cửa cổng chó lớp cửa nhỏ phụ cho xe máy và lớp cửa lớn cho xe hơi.

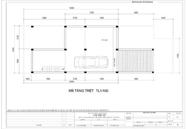
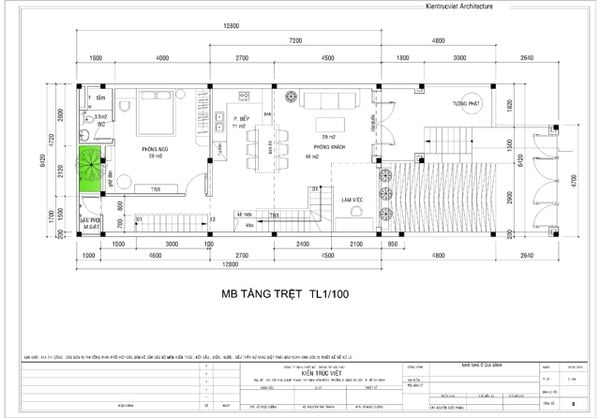
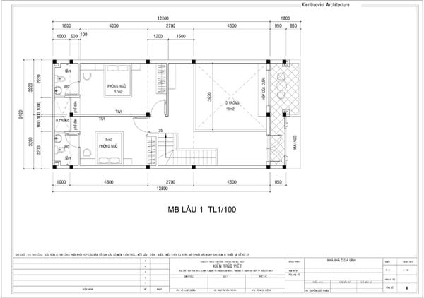
Mặt bằng bố trí kiến trúc Nhà phố 2 tầng 1 hầm 6,5×13

Mặt bằng trệt là hầm xe hơi và khoản sân trước nhà

Mặt bằng sảnh trệt, tầng 1 bao gồm 1 phòng sinh hoạt chung, không gian liên thông bếp và phòng ăn, phòng ngủ cho ông bà và các khoản thông tầng, giếng trời và khoản sân vườn sau.

Mặt bằng nhà phố 2 tầng 1 hầm với ngang nhà 6,5m dải 13m, tầng 2 với 2 phòng ngủ master và không thông tầng.

Nhà phố 2 tầng 1 hầm 6,5×13

Mẫu nhà phố hiện đại phong cách biệt thự phố 2 tầng ngang nhà 6,5m và dài 13m

Bản thiết thiết kế Kiến Trúc Việt

Công trình: Biệt thự phố 2 tầng 1 hầm 6,5mx13m
Diện tích đất: 6,5mx18m
Diện tích xây dựng: 6,5mx13m
Quy mô:! trệt 1 lầu và 1 hầm với 3 phòng ngủ, 3 nhà vệ sinh, 1phòng khách, bếp và phòng ăn liên thông.
Team Thiết kế: KTS. GĐ Võ Ngọc Cường và Cộng sự.
KIẾN TRÚC VIỆT
Hơn 12 NĂM HÌNH THÀNH VÀ PHÁT TRIỂN
Doanh nghiệp chúng tôi thuộc sở hữu gia đình của chúng tôi có một đội ngũ nhân viên dày dạn với chuyên môn chưa từng có trong việc giúp gia chủ, các nhà xây dựng và chủ nhà tìm thấy các kế hoạch nhà phù hợp với nhu cầu và ngân sách của mình với nhiều ýtưởng thiết kế được chúng tôi đầu tư rất kỹ.
DỰ ÁN HIỆN TẠI
Danh mục đầu tư của chúng tôi bao gồm Thiét kế kiến trúc/ Thiết kế nội thât đến Xây dựng Chúng tôi thường xuyên cập nhật nhiều dự án kiến trúc mới mẻ phùhợp vóithị hiếu và nhu cầu của từng gia chủ
KẾ HOẠCH VÀ NHẬN DỰ ÁN NGOẠI TỈNH
Đội ngũ thiết kế của chúng tôi có thể đáp ứng yêu cầu củagia chủ không chỉ tại Hồ Chí Minh mà còn có thể tư vấn và hoàn thành các dự án ngoại tỉnh xa. Diển hình trong hơn 12 năm qua chúng tôi đã hoàn thành và bàn gia thiết kế cho gia chủ tại Gia Lai, Daklak, Quy Nhơn, Cần Thơ, Thanh Hóa, Quảng Bình, Cam Ranh…dù lớn hay nhỏ, để làm cho nó hoàn hảo cho nhu cầu của bạn Kiến Trúc Việt không ngừng mở rộng để Biến những ước mơ về ngôi nhà Việt Tinh tế- Đẹp – Sang trọng và Đẳng cấp hơn.
Share:
















