
Từ một căn hộ có quy mô hai phòng ngủ còn ở dạng thô, diện tích 110m2 và hiện trạng ban đầu khá bít bùng bởi các bức tường ngăn cách không gian, nhiệm vụ của nhóm thiết kế là xử lý lại mọi thứ, trang bị nội thất, tiện nghi để tạo nên không gian sống mới cho một gia đình trẻ gồm bốn thành viên. Gia chủ làm trong lĩnh vực tổ chức sự kiện, sống hướng ngoại và muốn căn hộ của mình cũng có thể là nơi tiếp đón bạn bè thân thiết. Xem ra, có khá nhiều việc để làm với căn hộ này. vÌ gia chủ làmột bạn trẻ không có nhu cầu nhiều phòng ngủ, nên với 110m2 chỉ dùng đến 2 phòng ngủ chủ yếu không gian phòng khách rộng và thoáng phá vỡ nhưng lớp tường bê tông.
Tham khảo nội thất căn hộ Palm Heights Mai Chí Thọ Quận 2. https://kientrucviet.com.vn/blogs/thi-cong-noi-that/noi-that-palm-heights-voi-goi-350-trieu-hoan-thien-phan-tho-va-noi-that

Vì gia chủ nhận nhà là căn hộ thô, nên rất dễ để có thể thay đổi bố cục theo mục đích của mình. Phòng ngủ chính với nới rộng phòng tắm master và thay bằng váchkính lớn.

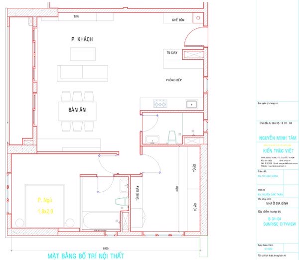
View tổng thề không gian căn hộ 105m2 Sunrise city, Quận 7.Kiến trúc không gian được táchbiệt hai không gian bếp và phòng khách.

Phòng khách và bếp hưỡng trọn ban công dài hơn 2m

Điểm nhấn chính đó chính là việc tận dụng hai màu trắng và vàng gỗ để làm điểm nhấn chotừng không gian. Không gian không quá nổi nhưng lại không đơn điệu.

Chia sẻ về ý tưởng, nhóm thiết kế cho biết mọi thứ xuất phát từ chính loại hình công trình mà họ đang làm – chung cư. Thường thì khi ngước lên các tòa nhà chung cư, người ta đều nhìn thấy những ô cửa sổ và bên trong những ô cửa đó là hoạt động của từng gia đình sẽ khác nhau, với những câu chuyện sống khác nhau. Nếu ví căn hộ này như một chung cư thu nhỏ thì mỗi không gian riêng sẽ được kể qua những ô cửa.

Có thể nhận ra ý tưởng ấy đã được thể hiện qua cách tổ chức không gian ở căn hộ này. Qua những ô cửa, các không gian trở nên linh hoạt, vừa đóng, vừa mở và khoảng cách giữa cha mẹ và con cái được kết nối tùy theo chuỗi hoạt động diễn ra theo nhu cầu hằng ngày. So với hiện trạng ban đầu, thiết kế mới bỏ bớt một toliet để nới rộng gian phòng của hai đứa trẻ. Lối vào từng phòng được xử lý để trở nên khác biệt, tựa như một con hẻm nhỏ bên trong nhà với những góc đóng, mở tạo nên bởi đường dẫn vào từng căn phòng. Bếp và toliet chung được nới rộng ra, chiếc bàn ăn linh hoạt có thể gấp, mở để tăng số lượng chỗ ngồi từ sáu đến tám người.

Phòng ngủ phụ được anh chủ đầu tư với bộ tủ trưng bày hàng hiệu của mình.

Khi làm việc với nhóm thiết kế, chủ đầu tư mong muốn căn hộ cần phải có điểm nhấn thú vị và họ đặc biệt thích màu vàng và trắng đen. Và điều ấy đã được triển khai không chỉ với sự duyên dáng của các đường cong đóng, mở không gian mà còn thông qua cách lựa chọn phòng cách nội thất và màu sắc căn hộ. Style sử dụng trong ngôi nhà mang hơi hướng Bắc Âu, chất bêtông được lựa chọn để tăng cá tính cho ngôi nhà. Tính tương phản vốn là một trong cách tạo nên dấu ấn xuyên suốt trong các công trình của red5 – nhóm thiết kế căn hộ này – cũng được vận dụng. Bêtông thô kết hợp cùng những màu điểm nhấn tạo nên nét sinh động và vui vẻ cho tổng thể. Ở căn hộ này, dấu ấn của chủ đầu tư thể hiện rõ nhất thông qua việc lựa chọn màu sắc. Đồ đạc đều đơn giản, ít chi tiết và nhấn mạnh về hình khối. Đa phần các đồ trong nhà đều có hình khối cong nhẹ, để tương đồng và hài hóa với những đường cong của không gian.


Việc sử dụng ánh sáng nhận tạo trong căn hộ cũng được tính toán. Hệ đèn trần sử dụng dimmer để dễ dàng điều chỉnh cho mọi hoạt động theo nhiều hướng khác nhau Riêng những chiếc đèn tường được lựa chọn như những artword để thay thế cách trang trí bằng tranh trên tường theo cách thông thường.
Một căn hộ nhỏ hay lớn nhưng khi thiết kế được chăm chút tới nơi tới chốn luôn đem lại hiệu quả lớn.

Nhận cănhộ giao thô chưa sàn và trần, chưa vách tường phòng.

Công tác điện âm và tháo phá vở vách để mở rộng.

Hoàn thiện trần thạch cao.

Nhân công hoàn thiện lát sàn vá vách.

hoàn thiện ốp vách trang trí

Đã hoàn thành vách và tường như bản vẽ.

Bảng báo giá tham khảo cho hoàn thiện phần thô và nội thất cho cho căn hộ Sunrise City Quận 7.
Tham khảo nội thất căn hộ Palm Heights Mai Chí Thọ Quận https://kientrucviet.com.vn/blogs/thi-cong-noi-that/noi-that-palm-heights-voi-goi-350-trieu-hoan-thien-phan-tho-va-noi-that
Hạng mục phần thô gồm có: Cán nền, hoàn thiện lát gạch sàn, hoàn thiện trần thạch cao, hoàn thiện hệ thống điện, hệ thống lạnh, hoàn thiện sơn, cửa phòng ngủ cách loại.
Phong cách màu sắc trẻ trung cũng được Kiến TRúc Việt hoàn thành tại Palm Heights theo link bàiviết bạn cóthể tham khảo


Thi công hoàn thiện căn hộ giao thô 65m2, Saigon South Residences
Thi công hoàn thiện căn hộ giao thô 65m2 – Saigon South Residences

Thi công hoàn thiện căn hộ giao thô 65m2 – Saigon South Residences

Nội thất căn hộ Thi công hoàn thiện căn hộ giao thô 65m2 – Saigon South Residences

Nội thất tủ bếp , phòng ăn, tủ giầy kết hợp vách tủ ngăn với phòng bếp

Không gian nội thất phòng khách với phong cách tân cổ điển sang trọng

Thi công hoàn thiện căn hộ giao thô 65m2 – Saigon South Residences

Phòng ngủ với chủ đạo tông trắng theo sở thích gia chủ, gói thi công 33 triệu

Tủ quần áo sát trần và góc bàn học tập

Thi công hoàn thiện phòng ngủ master – Saigon South Residences

Hoàn thiện phòng tắm cho căn hộ giao thô
Cam kết: Chỉ thanh toán hết khi bản vẽ hoàn công được duyệt!
…………………………………………………………………………………………..
CÔNG TY TNHH MTV XD & TTNT KIẾN TRÚC VIỆT
Thiết kế Nhà – Thầu Xây dựng – Thi công nội thất – Trang trí thiết kế văn phòng
VPGD: P602, Lô A1, Sunny Plaza, 110 a Phạm Văn Đồng, p3, GV, HCM
Xưởng thi công nội thất; 438/6 Nguyễn Văn Quá, Q12, HCM
Hotline: 0918 243 364 – 0914 243 364
Email: cuongarchi@yahoo.com
Share:
















