
XEM THÊM: Các mẫu nhà ống 5 tầng hiện đại

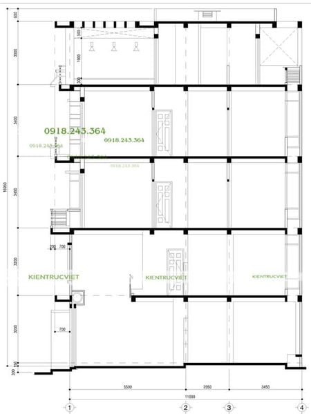
Thiết kế và xây nhà 1 trệt 1 lửng 2 lầu, nhà phố 56m2 – mặt bằng trệt và lửng và lầu 1

Thiết kế và xây nhà 1 trệt 1 lửng 2 lầu, nhà phố 56m2 – mặt bằng lầu 2 và sân thượng.

Thiết kế và xây nhà 1 trệt 1 lửng 2 lầu, nhà phố 56m2 – mặt bằng mặt đứng
Ở khu vực phòng khách – phòng ăn , bếp rộng rãi và thoáng nhờ tầm nhìn ra không gian bên ngoài, điểm nhấn là những mảng gỗ tường trang trí vách trưng bày, với bộ bàn ăn và khung cửa kính.


Mặt bằng thông giữa khu vực phòng khách và không gian bếp

Không gian bếp và quầy bar liên thông

Thiết kế và xây nhà 1 trệt 1 lửng 2 lầu và 1 sân thượng , nhà phố 56m2 Phong cách hiện đại trẻ trung luôn được ưu chuộng nhất của nhiều gia chủ. Sự kết hợp giữa cái cũ với nét hiện đại đã tạo nên một kiến trúc vừa xinh lại vừa gần gũi. Với diện tích không quá lơn của ngôi nhà, các kiến trúc sư Kiến Trúc Việt đã tạo nên một kiến trúc mặt tiền khá ấn tượng. Đây chính là thế mạnh của đội ngũ kiến trúc sư Kiến Trúc Việt.


Phòng ngủ bé trai với tông màu xanh sáng tươi trông sáng như các trẻ thơ hồn nhiên

Phòng ngủ 2 của ông bà đơn giản ấm áp

Phòng ngủ của cô con gái lớn với màu sắt tươi trẻ với một góc học tập làm việc trong phòng

view nội thất phòng ngủ 2

Không gian phòng làm việc kết hợp phòng đọc sách tại gia


phòng thờ tổ tiên tại tầng thượng

Sân thượng

Thiết kế và xây nhà 1 trệt 1 lửng 2 lầu, nhà phố 56m2
Bản quyền tác giả: Cty TNHH MTVT Xây Dựng & TTNT Kiến Trúc Việt
Mọi hành vi sao chép bản quyền phải được sự đồng ý cho phép của Kiến Trúc Việt.
Hotline tư vấn kiến trúc và báo giá thiết kế, nội thất: 0918243364 – 0914243364
………………………………………………………………………………………..
Kiến Trúc Việt – Khơi nguồn sáng tạo ngôi nhà bạn…
Kiến Trúc nhà phố/ Biệt thự : Mang đến những ý tưởng thiết kế đầy sáng tạo, không chỉ phù hợp với môi trường Việt Nam mà còn cập nhật xu hướng thế giới. Cung cấp những giải pháp nhà ở đúng nhu cầu, thị hiếu và ngân sách của mỗi khách hàng.
Xây dựng Nhà phố/ Biệt thự: Không ngừng tìm tòi nghiên cứu, đầu tư phát triển công nghệ và vật liệu mới phù hợp xu hướng than thiện với môi trường. Xây dựng đội ngũ nhân viên nhiệt huyết nhằm đem lại nhưng trải nghiệm tuyệt với nhất cho khách hàng.
Thi công nội thất Căn hộ/ Nhà phố/ Biệt thự/ Văn phòng: Chúng tôi tin rằng mọi người đều có tổ ấm của riêng mình, một nơi để cảm nhận chính mình. Một ngôi nhà phù hợp với cá tính của bạn và gia đình, tạo ra một không gian dễ chịu và thoải mái. Một nơi tách biệt với thế giới bên ngoài, một nơi để thể hiện cá tính và sở thích của chủ nhân ngôi nhà. Sự ấm áp sẽ lan tỏa đến mọi người, dù khả năng kinh tế như thế nào. Đó là lý do tại sao chúng tôi muốn giúp bạn “Biến ngôi nhà thành tổ ấm”.
…………………………………………………………………………………………………….
CÔNG TY TNHH MTV XD & TTNT KIẾN TRÚC VIỆT
Thiết kế Nhà Phố – Thầu Xây dựng – Thi công nội thất – Trang trí thiết kế văn phòng
Hotline: 0918 243 364 – 0914 243 364
Email: cuongarchi@yahoo.com.vn
www.kientrucviet.com.vn
XEM THÊM CÁC DỰ ÁN NHÀ PHỐ 5 TẦNG CỦA KIẾN TRÚC VIỆT
Hồ sơ thiết kế nhà 5 tầng 95m2
Nhà ống 5 tầng 4mx12m Quận 3 có hầm và thang máy
Mẫu nhà phố 5 tầng 5×20 có thang máy Long Thành
Tư vấn chi tiết bố trí nhà 5 tầng 60m2 có thang máy dân dụng
Nhà ống 5 tầng 4×11 Quận 7
Tư vấn thiết kế nhà phố chữ L ngang 6,6m và dài 20m hợp lý mọi không gian
Kiến trúc nhà phố văn phòng 4 lầu có thang máy 8×11
Mẫu nhà phố 5 tầng ngang 6m và dài 9m
Kiến trúc nhà 5 tầng 6×18
Gói thiết kế và xây dựng nhà 5 tầng 4×15 với 1,5 tỷ
Giải pháp nhà 5 tầng 4mx20m có thang máy
Mẫu nhà phố 5 tầng ngang 6m và dài 9m
Tư vấn kiến trúc nhà 5 tầng 8×6 Quy Nhơn
Nhà 5 tầng 5mx20m phong cách hiện đại
Thiết kế thi công xây dựng nhà phố 5 tầng quận 2
Thiết kế nhà 5 tầng 5×20 dự án shophouse KDC An Sương Quận 12
Thiết kế nhà 5 tầng góc hai mặt tiền
Thiết kế Nhà 5 lầu làm văn phòng
Thiết kế và xây nhà phố 5 tầng 56m2
Kiến trúc khách sạn 5 tầng ngang 8m
Nhà ống 5 tầng ngang 4m và dài 26m có tầng hầm và thang máy
Share:
















