
Diện tích đất 4.5m mặt ngang và dài 16m, nhà hiện hữu cũ và được gia chủ đập để xây mới, đất xây dựng tại thành phố Quy Nhơn. Đối với khách hàng ở xa Kiến Trúc Việt vẫn có thể cung cấp dịch vụ hoàn hảo và đầy đủ nhất từ khâu thiết kế cho đến tư vận chọn vật liệu hoàn thiện. Sự đồng hành của khách hàng trong thời gian qua chính là sự thành công của chúng tôi trong hôm nay. Sau đây là chi tiết về dự án thiết kế nhà 4.5mx16m 4 tầng trọn gói từ thiết kế Kiến Trúc đến thiết kệ nội thất và kỹ thuật bản vẽ để thi công.

Thông tin công trình
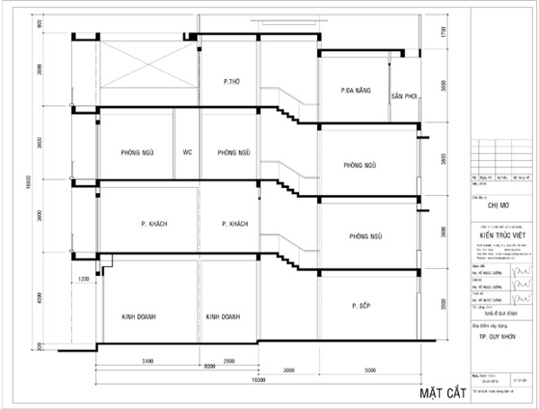
Chủ đầu tư: Chị Mơ
Địa chỉ công trình: TP Quy Nhơn
Diện tích nhà: 4,5m x16m
Quy mô xây dựng: Nhà lệch tầng 1 trệt 2 lầu và 1 sân thượng
Hạng mục thiết kế: Thiết kế kiến trúc/ Thiết kế nội thất/ Triển khai hồ sơ kỹ thuật thi công.
Năm thực hiện: Tháng 3. 2019
Thời gian dự kiến xây dựng: 5 Tháng
Tác giả bản quyền: wwww.kientrucviet.com.vn – KTS Võ Ngọc Cường
Thiết kế nhà 4.5mx16m 4 tầng Quy Nhơn
Bản vẽ thiết kế
- Mặt bằng bố trí nhà lệch tầng 4,5m x16m với 1 trệt 2 lầu và 1 sân thượng.
- Tầng trệt là không gian để kinh doanh tại mặt tiền và 1 phòng bếp phía sau.
- Tầng lầu 2 với 1 Phòng Khách và 1 phòng ngủ master.
- Lầu 2 với 3 phòng ngủ nhỏ với 2 Wc.
- Tầng thượng 1 phòng đa năng , 1 phòng thờ và 1 sân vườn BBQ Ngoài trời cho những bữa tiệc của gia đình.

Thiết kế nhà 4,5mx16 3 lầu, Thiết kế nhà lệch tầng Quy Nhơn

Thiết kế nhà 4,5mx16 3 lầu, Thiết kế nhà lệch tầng Quy Nhơn

Thiết kế nhà 4,5mx16 3 lầu, Thiết kế nhà lệch tầng Quy Nhơn
Nội thất
Với phong cách nội thất hiện đại màu sắc trẻ trung theo yêu cầu gia chủ, và sau đây là bộ nội thất cho thiết kế nhà 4.5mx16m 4 tầng Quy Nhơn

Không sảnh sảnh tầng trệt – Thiết kế nhà 4,5mx16 3 lầu, Thiết kế nhà lệch tầng Quy Nhơn.

Không gian phòng bếp – Thiết kế nhà 4,5mx16 3 lầu, Thiết kế nhà lệch tầng Quy Nhơn

Sảnh trệt với mặt bằng trống không gian phía trước để cho thuê kinh doanh.

Thiết kế nhà 4,5mx16m nhà 3 lầu, Thiết kế nhà lệch tầng Quy Nhơn – Không gian phòng khách tại tầng lầu 1.

Thiết kế nhà 4,5mx16m nhà 3 lầu, Thiết kế nhà lệch tầng Quy Nhơn – Không gian phòng khách tại tầng lầu 1.

Mặt bằng nội thất tầng lầu 1 không gian phòng khách với 2 không gian đó là 1 phòng trưng bày và đọc sách và 1 không gian sinh hoạt chung của gia đình.


Phòng ngủ master lầu 1 – Đơn giản tinh tế.

Phòng ngủ nhỏ lầu 2.

Góc trang trí học tập và tủ quần áo kết hợp kệ tivi.

Nội thất phòng ngủ lầu 2 cho hai cậu con trai và phòng ngủ nhỏ cho ông bà.

Góc trang trí bàn làm việc kết hợp tủ quần áo cho phòng ngủ master.

Phòng ngủ 4 tại lầu 2, tinh tế trẻ trung với hai tông màu chính là Trắng và gỗ.

………………………………………………………………………………………..
Hotline tư vấn kiến trúc và báo giá thiết kế, nội thất: 0918243364 – 0914243364
Kiến Trúc Việt – Khơi nguồn sáng tạo ngôi nhà bạn…
Kiến Trúc nhà phố/ Biệt thự : Mang đến những ý tưởng thiết kế đầy sáng tạo, không chỉ phù hợp với môi trường Việt Nam mà còn cập nhật xu hướng thế giới. Cung cấp những giải pháp nhà ở đúng nhu cầu, thị hiếu và ngân sách của mỗi khách hàng.
Xây dựng Nhà phố/ Biệt thự: Không ngừng tìm tòi nghiên cứu, đầu tư phát triển công nghệ và vật liệu mới phù hợp xu hướng than thiện với môi trường. Xây dựng đội ngũ nhân viên nhiệt huyết nhằm đem lại nhưng trải nghiệm tuyệt với nhất cho khách hàng.
Thi công nội thất Căn hộ/ Nhà phố/ Biệt thự/ Văn phòng: Chúng tôi tin rằng mọi người đều có tổ ấm của riêng mình, một nơi để cảm nhận chính mình. Một ngôi nhà phù hợp với cá tính của bạn và gia đình, tạo ra một không gian dễ chịu và thoải mái. Một nơi tách biệt với thế giới bên ngoài, một nơi để thể hiện cá tính và sở thích của chủ nhân ngôi nhà. Sự ấm áp sẽ lan tỏa đến mọi người, dù khả năng kinh tế như thế nào. Đó là lý do tại sao chúng tôi muốn giúp bạn “Biến ngôi nhà thành tổ ấm”.
…………………………………………………………………………………………..
CÔNG TY TNHH MTV XD & TTNT KIẾN TRÚC VIỆT
Thiết kế Nhà – Thầu Xây dựng – Thi công nội thất – Trang trí thiết kế văn phòng
VPGD: P602, Lô A1, Sunny Plaza, 110 a Phạm Văn Đồng, p3, GV, HCM
Xưởng thi công nội thất; 438/6 Nguyễn Văn Quá, Q12, HCM
Hotline: 0918 243 364 – 0914 243 364
Email: cuongarchi@yahoo.com
XEM THÊM CÁC DỰ ÁN NHÀ PHỐ 4M CỦA KIẾN TRÚC VIỆT
Mặt tiền nhà ống 4m đẹp
Nhà phố 4mx15m lệch tầng
Thiết kế nhà phố góc mặt tiền 4.6mx18m
Nhà phố 4mx11m 3 tầng
Kiến trúc nhà phố 4mx12m 48m2 4 phòng ngủ
Thiết kế nhà 4mx16m có lửng nhỏ xinh
Thiết kế nhà phố 4mx14m Cam Ranh
Thiết kế nhà phố 4mx12m Thủ Đức
Nhà phố mặt ngang 4m sau 16m 1 tỷ
Nhà phố 4mx16m 900 triệu
Nhà phố 4mx9m 4 tầng 900 triệu phần thô
Nhà phố 4m mặt phố 4 tầng hiện đại
Nhà phố 4×18 70m2 5 tầng quận Tân Phú
Nhà phố 4×14 3 tầng ở An Giang
Nhà phố mặt tiền 4mx13m 1 trệt 1 lầu Bình Dương
Nhà phố mặt tiền 4m lệch tầng 4 tầng quận Tân Phú
Nhà phố 4mx20m 1 trệt 1 lầu
Thiết kế nhà phố 4m*13m lệch tầng 4 tầng
Thiết kế nhà 4.5×16 nhà phố 3 tầng có gara oto
Share:
















