Giải pháp bài toán thiết kế nhà thóp hậu 4 tầng. Kiến trúc nhà phố nhỏ xinh với ngang 4m, chiều sâu 15m và thop hậu dài sâu. Với yêu cầu 3 phòng ngủ, 1 phòng thờ và phải có 1 phòng ngủ dưới trệt cho ông bà lớn tuổi. Nội thất theo phong cách hiện đại trẻ và đơn giản, kệ vách và các không gian chết được tậng dụng tối đa công năng

Theo lý thuyết nhà “thóp hậu” thường không tốt
Nhà thóp hậu thường có kích thước phía sau nhỏ hơn kích thước mặt tiền. Theo lý thuyết chung của xã hội thì nhà thóp hậu không tốt. “Thóp hậu” được hiểu nôm na là “không có hậu”.
Theo khoa học phong thủy, ngôi nhà tốt hay xấu là do hình thế của nó gây ra. Với nhà trước rộng, sau hẹp thì nội khí bên trong dễ phát tán ra ngoài, không tụ hội được. Về thẩm mỹ, thì sắp xếp nội thất trở nên khó khăn. Tuy nhiên, với cuộc sống đô thị “tấc đất tấc vàng”, thì những ngôi nhà nở hậu – thóp hậu xuất hiện càng nhiều.
NỘI DUNG TÓM TẮT
Thực chất, nhà “thóp hậu” không hoàn toàn xấu
kiến trúc là sự tổng hòa của các cảm giác mỹ quan, là ứng dụng nhu cầu sống của con người trong một không gian…vv… Hay nói cách khác, kiến trúc là khoa học dựa trên cơ sở cảm thụ của con người. Nếu đứng ở vị trí này, thì mảnh đất có hình thù ra sao cũng chỉ là kích thước hình học, quan trọng là người thiết kế dựa trên đó, tạo ra một không gian bên trong và bên ngoài hài hòa, phù hợp với thói quen, với nhu cầu sống của họ.
Xử lý cho nhà “thóp hậu” không khó
“Gặp đất xéo thì làm phòng vuông”. Quan trọng là không gian có được sự thuận tiện, thông thoáng và thẩm mỹ.
Để xử lý phần thóp hậu gợi ý là cần tận dụng dáng xéo của mảnh đất nội tiếp ngôi nhà cho các không gian phụ như sân vườn, tiểu cảnh, Wc, sân phơi, vv… Sau đó là bài toán sắp đặt các không gian chính. Các phòng này càng vuông vức càng tận dụng thiên nhiên, ánh sáng chan hòa càng tốt, bằng việc chọn một bên ít xéo để làm chuẩn giữa chính và phụ. Bố trí cân đối vừa tiện ích, vừa dễ dàng, nắn lại để cảm giác thóp hậu là ít nhất.
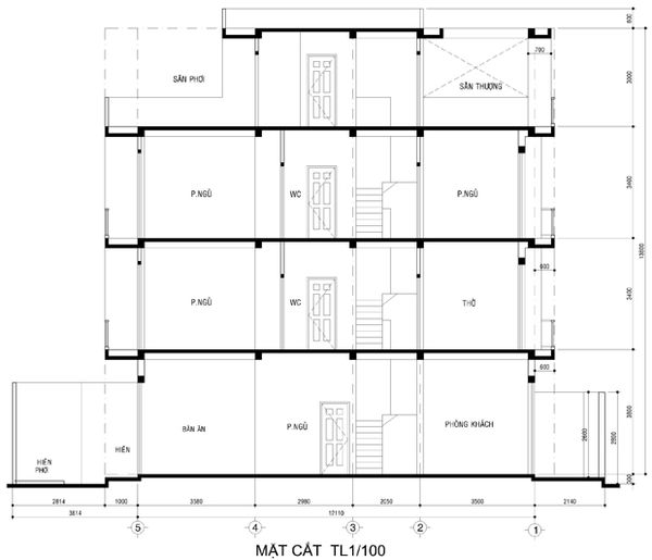
Thiết kế nhà phố 4m 4 tầng thóp hậu. Mặt bằng bố trí

Thiết kế nhà phố 4m 4 tầng thóp hậu

Thiết kế nhà phố 4m 4 tầng thóp hậu

Hồ sơ hoàn thiện nội thất không gian cho nhà ngang 4m, thóp hậu.

Thiết kế nhà phố 4m 4 tầng thóp hậu – Nội thất phòng ngủ 1

Thiết kế nhà phố 4m 4 tầng thóp hậu – Nội thất phòng ngủ 1

Thiết kế nhà phố 4m 4 tầng thóp hậu – Nội thất phòng ngủ 2

Thiết kế nhà phố 4m 4 tầng thóp hậu – Nội thất phòng ngủ 2

Thiết kế nhà phố 4m 4 tầng thóp hậu – Nội thất phòng thượng trước

Thiết kế nhà phố 4m 4 tầng thóp hậu

Thiết kế nhà phố 4m 4 tầng thóp hậu – Nội thất phòng ăn và bếp

Thiết kế nhà phố 4m 4 tầng thóp hậu – Nội thất phòng khách trệt

Thiết kế nhà phố 4m 4 tầng thóp hậu – Nội thất phòng khách phương án 2

Thiết kế nhà phố 4m 4 tầng thóp hậu – Nội thất phòng khách view 2

Thiết kế nhà phố 4m 4 tầng thóp hậu – Mặt bằng tổng quan

Thông tin chủ đầu tư dự án ở Gò Vấp
Chủ đầu tư: Anh Dức
Địa chỉ công trình; Cây trầm, Gò vấp
Diện tích: 4×15
Hạng mục: Tư vấn thiết kế
Team design Kiến Trúc Việt.
…………………………………………………………………………………………………….
CÔNG TY TNHH MTV XD & TTNT KIẾN TRÚC VIỆT
Thiết kế Nhà Phố – Thầu Xây dựng – Thi công nội thất – Trang trí thiết kế văn phòng
Hotline: 0918 243 364 – 0914 243 364
Email: cuongarchi@yahoo.com.vn
www.kientrucviet.com.vn
XEM THÊM CÁC DỰ ÁN CỦA KIẾN TRÚC VIỆT
100+ Mẫu nhà ống 4 tầng đẹp của Kiến Trúc Việt
Nhà phố 4 tầng 8mx18m
nhà phố 4 tầng 6mx25m
nhà phố 4 tầng ngang 4m
nhà ống 4 tầng 4.5mx16m
nhà phố 4 tầng ngang 6m Thủ Đức
Nhà phố 4 tầng 5m×16m quận 3
Nhà ống 4 tầng 4.5mx15m
Mẫu nhà 4 tầng 5mx16m quận 12
Mẫu nhà 4 tầng 2 mặt tiền
Mẫu nhà ống 4 tầng 4mx16m
Nhà 4 tầng 4mx12m Bình Thạnh
Mẫu nhà 4 tầng 4mx20m
Mẫu nhà 4 tầng mái ngói 4.5×16
Mẫu nhà phố 4 tầng 100m2 5mx20m
Mẫu nhà đẹp 4 tầng 4mx15m
Mẫu nhà 4 tầng 5mx2m0 Đắk Lắk
nhà phố đẹp 4 tầng Bình Tân
nhà phố 4 tầng 4.5mx16m Tân Phú
Nhà phố 4 tầng 4mx12m Thủ Đức
Nhà phố 4 tầng 4mx14m quận 2
Mẫu thiết kế 4 tầng 36m2 nhỏ có lửng
Mẫu nhà 4 tầng ngang 10×16 2 mặt tiền
Mẫu nhà phố 4 tầng 5mx20m hiện đại
Thiết kế nhà 4 tầng 5mx20m Hà Tĩnh
Mẫu nhà ống 4 tầng ngang 4.5m dài 16m
Nhà phố 4 tầng 5×18 kiến trúc vòm cong
Nhà 4 tầng diện tích 72m2
Nhà 4 tầng vát chéo 30m2
Nhà phố 4 tầng 4mx15m
Share:
















